当前位置:首页 > 设计圈
  • 王丹丹 / 设计师

    2024-02-24 10:40


    #办公智造#

    些许着墨点睛于大面积的留白,使得空间简洁宽阔而又别有一番禅意。和缓流畅的线条中和了金属质感带来的锐气,多元包容的气质于无声处由内而外尽情彰显。
    张弛有度方能恒久,以跳跃的色彩和生机勃勃的绿植以及沙发组群营造温馨舒适的视觉效果,打造出兼具多重功能性与设计感的休憩空间,不论是自我放松还是接待宾客都是极佳的场所选择。
    木格屏风的选择让空间隐而不藏,在不隔断视线的同时创造出相对安静独立的区域以供随性交谈。天高任鸟飞,海阔凭鱼跃的自由畅想随时可以起航。        

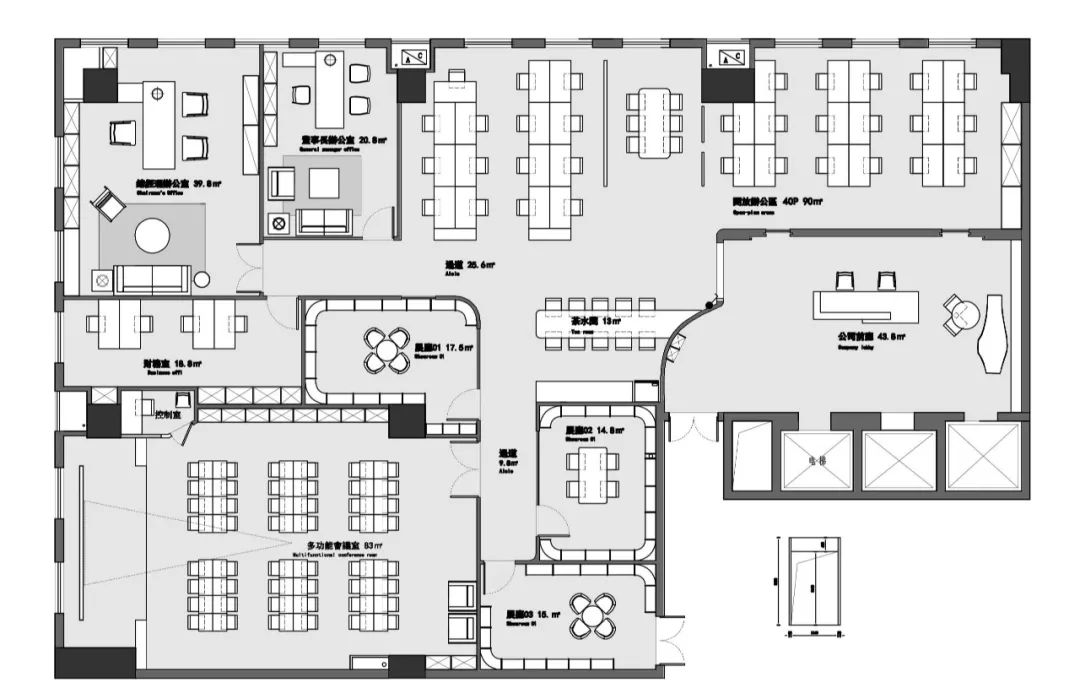
  • 王丹丹 / 设计师

    2024-02-24 10:37


    #办公智造#

    井然有序的布局成就高效简练的工作可能,书桌隔板在不影响邻座交流的同时为员工缔造独立创作的空间,为集中专注的工作氛围添一份外力助援。半透明玻璃幕墙的巧妙设计划分不同的功能区间,既增加了私密性又维持了空间整体轻盈开阔的氛围。        

  • 格格巫 / 设计师

    2024-02-24 10:23


    #办公智造#

    办公空间设计        


  • 汤圆很甜,岁岁团圆...        

  • 饶阳 / 设计师

    2024-02-24 09:54


    #办公智造#

    踏出电梯间的那一刻起,瑞思的品牌标语即映入眼帘。全新的办公第三空间正是以人为核心,以空间为载体,从而促进人际交流、分享、互动。
    人们不会再急匆匆地擦身而过,而会在生动多样化的独特空间里交谈和互动,沐浴着柔和光线下,沉浸在平等、开放与自由的氛围中
    设计以商务美式为基调,色彩以大面积自然原木为主调,引用轻松活力的软装搭配,为空间注入充满生机和希望的活力颜色,整体年轻有趣又不乏精致细节。
    对企业而言,如何在有限的办公区域内,合理规划功能分区是一个关键难题,这能够直接帮助优化企业资产组合,节约办公成本。可持续的设计为空间赋能,“重叠”是关键的突破点。设计师融入设计了多元、灵活、敏捷的多样化办公生活功能,涵盖办公区、会议区、Lobby、读书角、运动区、吧台、饮品长廊、电话间等,应对未来团队更多的用户行为需求。员工可以在这里专注工作,也可以自由互动、社交,释放潜能,颠覆传统办公空间的单一功能,不断创造更多活力场景。        

  • 饶阳 / 设计师

    2024-02-24 09:49


    #办公智造#

    标准大会议室是集团沟通的重要空间,使用时间长,使用频次高,对环境要求高。设计通过更加人性、优雅、沉浸的方式呈现空间,让此处不再单纯地为“会议”而设计,带给空间使用者更明亮放松的氛围。
    一边是不设边界的开放式办公区确保光线通透,另一边是大量正式和非正式的与会空间,既可以是帮助个人专注于工作和保护隐私的空间,也可以是团队开展协作和头脑风暴的多样会议空间,这也是设计师对可持续的憧憬和响应。        

  • 饶阳 / 设计师

    2024-02-24 09:44


    #办公智造#

    设计师充分利用空间的空闲面积,在各个角落设置了多样化的开放休闲讨论区、读书角,穿过走廊还可以留意到精致的摆件和样板陈列,让商务空间多了一抹不经意的艺术氛围。
    在帮助瑞思规划灵活空间的同时,也更强调办公空间里的“软环境”,例如光线、空气等与员工健康息息相关的方面,人性化的办公空间让员工在工作中感受到更多舒适和自在,以激发员工的创新与创造力。        

  • 王丹丹 / 设计师

    2024-02-24 08:51


    #办公智造#

    现代主义 × 艺术叠加 × 时尚办公        

发直播

公开