当前位置:首页 > 设计圈
  • 王倩 / 设计师

    2024-02-24 13:07


    #办公智造#

    前台接待处用企业品牌色——绿色点缀,加上通透自然的背景墙面肌理,呈现出“健康、绿色”的主题装饰风格。
    空间的大小并不会制约会议洽谈的进行,每一次畅所欲言的交流,都应该搭配相应风格的会议桌。        


  • #办公智造#

    走出电梯,首入眼帘的是珠江数码宽敞且具有空间感的过道,加上别致的多边形创意组合凳的点缀,艺术设计感十足。        


  • #办公智造#

    精心打造的产品让每一个高级管理人员都拥有最舒适的办公环境。珠江数码的简约搭配,尽显时下风靡的轻奢风格,低调而不失风范。        

  • 筑先生 / 客服

    2024-02-24 12:46


    春风近 好事来!        

  • 木子李 / 设计师

    2024-02-24 12:45


    #办公智造#

    在空間上化繁為簡,保留最原始的白色,大面積的白色運用,放大空間的視覺,但如果只有白色则显得过于单调,因此设计师調入個性鮮明的檸檬黃打破空間的僵硬,完全開放的佈局給了人們更多的想象。
    獨立的辦公間區域相對狹小,設計師選用綠色和藍色加以點綴,同時再搭配簡單的綠植,由此整個辦公室看去已是生機勃勃,活力十足。
    會議區是個相對隱私的空間,也是員工暢所欲言的區域,利用透明的落地玻璃進行隔斷,保證空間的采光性,而白色的桌椅搭配綠色的地毯則呈現出整體的輕鬆感和柔和感。        

  • 晓歌 / 设计师

    2024-02-24 12:17


    #办公智造#

    “狂野分子”办公室        

  • 毛均峰 / 设计师

    2024-02-24 11:20


    #办公智造#

    联合银行空间设计        

  • 王建 / 设计师

    2024-02-24 11:08


    #办公智造#

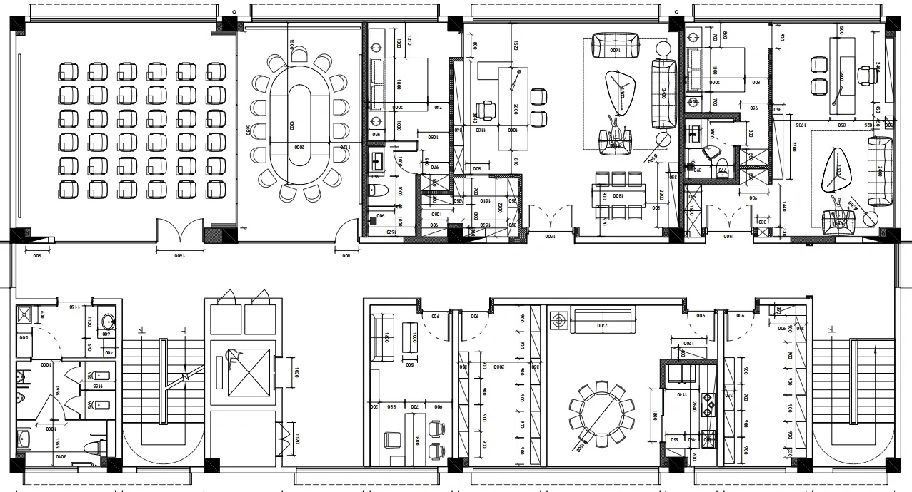
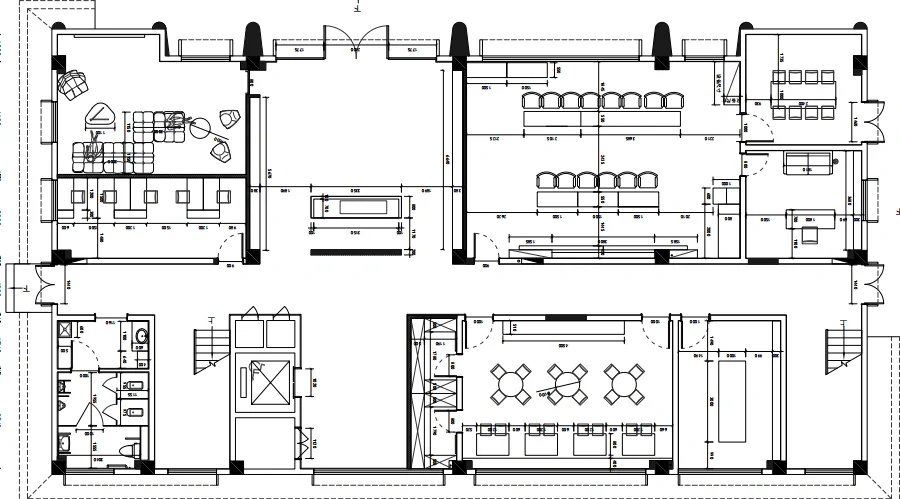
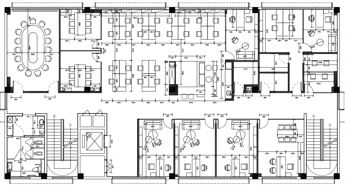
    平面图        

发直播

公开