当前位置:首页 > 设计圈
  • Ellen / 设计师

    2024-02-24 22:07


    #办公智造#

    天花無吊頂,裸露的電線、風管、消防管道都會影響空間的視覺。於是使用平行的吊燈做照片,形成光平面,用光線來切割空間。
    開放式辦公區域,既方便大家在工作中的日常交流,也傳遞出創思企業文化,開放平等。在這裡我們只是一群有著共同價值觀的人,一起為未來而努力。        

  • MING / 设计师

    2024-02-24 22:00


    #办公智造#

    办公空间设计        

  • 小海 / 设计师

    2024-02-24 21:27


    #标准施工#

    办公室简装图纸        


  • #标准施工#

    玻璃隔断...        

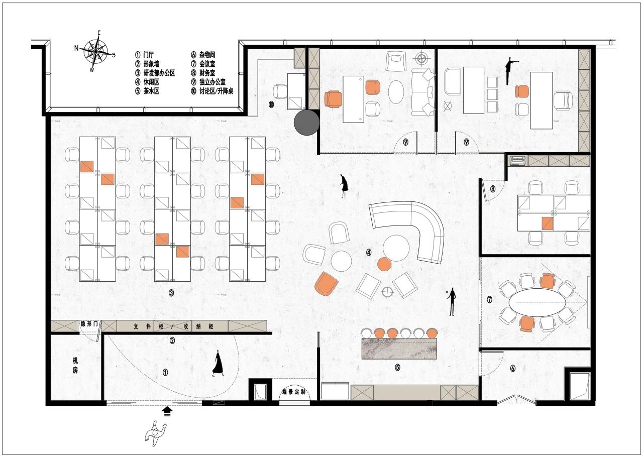
  • 小麦庆 / 设计师

    2024-02-24 20:10


    #办公智造#

    感应玻璃门内,白色与玫瑰金流畅交织出一面悦目的背景,链环球企业logo与名称置于其中,无声却淌入心扉的开场白由此达成。
    移步入内,最先进入视野的便是办公区与休闲区。白色基调赋予空间纯粹之感,地面使用灰色地毯进行大面积通铺,简洁又不失气质。开放式的布局打破了封闭的空间限制,更加凸显个性、自由、舒适的氛围,在人与人之间、工作与放松之间形成微妙平衡,从而达到更高效的工作状态。
    原始顶面结构进行了浅灰色喷漆处理,保持层高的同时更好地融入空间整体,高低参差的管道在灯光交错中油然生出独特美感。
    休闲区与办公区自然衔接,由样式和大小不一的沙发、茶几围合而成,橙色与灰色碰撞出张扬又克制的场景性格,使得空间气氛变得生动而有趣。宇航员摆件落于其间,内外呼应中形成空间特色,产生视觉韵律。        

  • 小麦庆 / 设计师

    2024-02-24 20:08


    #办公智造#

    会议室是空间合理规划的产物。在最初的需求沟通中,因为空间顾虑,业主原本打算牺牲这个功能场景。
    延续整体空间的色调和风格,会议室结合使用场景剥离了些许跳脱,以简明的手法进行打造。推拉玻璃门将空间区隔,桌椅均采用极简样式,天花上的灯膜为空间提供均匀明亮的光环境,一抹绿意融入黑白灰色调中,简洁高效又不失蓬勃朝气。
    财务室独立成间,并沿用了开放式办公区的设计手法,地面铺设地毯,整体色调在灰白中以隔板的蓝色点睛,营造简洁舒适的空间形象。除了满足基本办公所需,设计师还在入户门靠墙一侧设置了边柜,让各类文件均能得到合理的安置。
    立足于场景需求,独立办公室设置了办公区和品茶洽谈区。区域内延续了整体的灰白调主题,以一抹跳跃的黄色注入明快氛围,搭配桌椅之间不同的弧度呈现,简洁中透着质感与细节。
    相邻的另一间办公室同样对场景进行了细化,规划有办公区和休闲区,并在色彩呈现上更趋于多元:与品牌相关联的蓝色调落笔于办公桌上,白色开放格中点缀黑、红两色,碰撞融合中呈现积极的视觉互动和自如的空间节奏。        

  • 杜飞 / 设计师

    2024-02-24 17:14


    #办公智造#

    孤独办公室 ‖ 设计师尝试处理历史遗产和城市更新的议题。整个空间中保留了已建成30多年的梁柱结构,以及部分砖墙,让它与新材质对话。设计师想创造一个怀旧、孤独、安静的工作室。怀旧不是活在过去,而是面向更远的未来。那种古朴、老旧、逃避、朋克、颓废、粗糙的反美学气质,却营造出一种年轻、现代且充满创意的灵魂。        


  • #标准施工#

    吊顶立面图        

发直播

公开