当前位置:首页 > 设计圈

  • #办公智造#

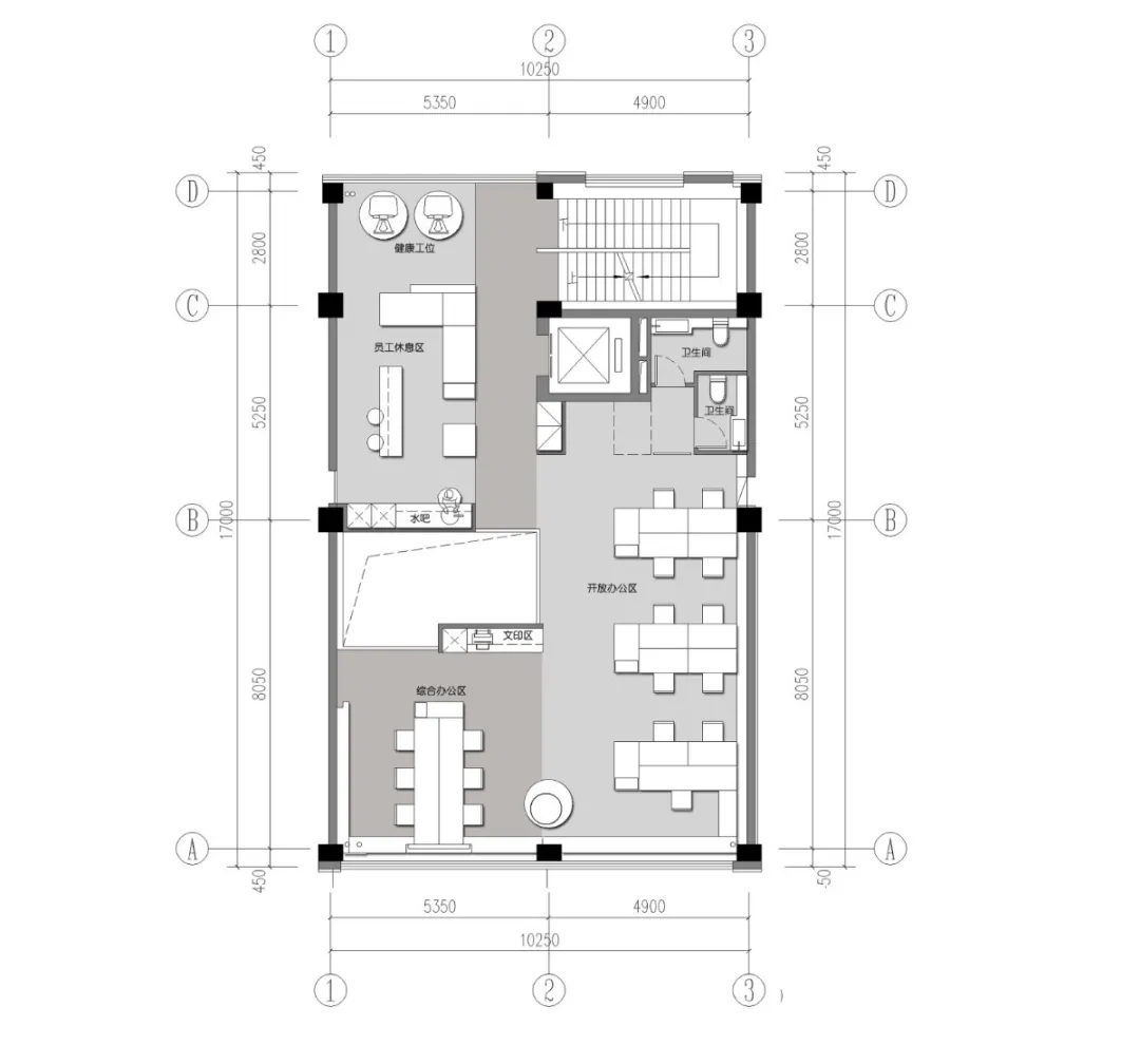
    二层为敞开办公区,休息区健康办公工位的植入也点明我们愉悦办公的设计理念;
    在办公家具的设计上我们考虑满足日常功能的基础上,尽量拓展其在不同使用状态下的更多可能性。工位吊灯的研发我们把磁吸灯灯槽进行改良与工位结合形成了现在的工位吊灯,内嵌的泛光源和点光源可根据不同使用者的喜好来进行更换。        


  • #办公智造#

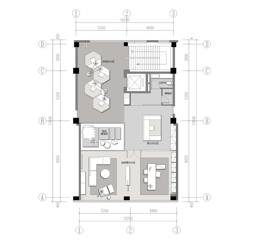
    三层将原露台进行封闭,延展出景观区和总经理室休息区,顶面自然光线的引入将在室内形成不同的光影效果。        


  • #办公智造#

    前台与楼梯间        

  • 丽旻 / 设计师

    2024-02-24 00:12


    #办公智造#

    本次设计为多品牌美妆企业注入新的活力,对品牌的办公空间进行全方位升级,为企业带来健康、安全、绿色的工作场所。同时升级社交空间场景,对内外满足企业所需要的办公流程和工作方式。设计团队将企业旗下橘朵、酵色两个品牌的产品符号融入空间内,结合明亮欢快的色调,体现橘宜集团创造美丽、分享快乐的企业愿景。        

  • 丽旻 / 设计师

    2024-02-24 00:09


    #办公智造#

    全新的办公空间为橘宜集团提供了更优质的办公环境,焕发企业新的活力,设计实现了多功能办公与体验集合为一体的办公愿景,将产品体验、品牌展示、客户接待、远程互动、办公研发集中并融合为一体,助力企业迈向更广阔的舞台!        

  • Mr.Wang / 设计师

    2024-02-24 00:04


    #办公智造#

    办公室设计        

  • 凌凌易 / 设计师

    2024-02-24 00:02


    #办公智造#

    办公室实景图        

  • 格格巫 / 设计师

    2024-02-23 23:56


    #标准施工#

    深色隔断...        

发直播

公开