当前位置:首页 > 设计圈
  • 小筑 / 设计师

    2024-03-21 16:21


    #标准施工#

    红色的弧        


  • #办公智造#

    设计工作室        

  • 饶阳 / 设计师

    2024-03-21 10:50


    #办公智造#

    本案的设计以船运航线为设计主题,整体设计打破了传统工作环境的氛围,打造出一个“以人为本”的办公、休闲和生活的个性空间,助力客户的进一步发展、创新和团队凝聚力。
    在前台的设计中,我们以船体为灵感,融合铝板和石材的材质,巧妙地雕塑出一艘独特的航行之舟。灯光犹如明亮的航线,巧妙勾勒着前台空间,仿佛指引着前来的旅者。这不仅是一个接待区域,更是一段充满航运氛围的引领之所,为每位访客描绘出一幅精彩而独特的航程。
    茶水间也提供多元化的工作场所选择:有时员工需要换个环境来进行头脑风暴、创意思考或者独立工作。水吧休闲空间提供了一个不同于传统办公区域的选择,不仅可以用餐,员工也可以根据需要进行工作模式的切换。
    不同的员工可能有不同的工作方式和偏好。灵活性的设计可以提供多样化的工作区域,如开放式工作区、
    独立工作室、会议室和休闲区等,以满足员工的不同需求。这可以促进员工的个人效率和创造力,并提高工作满意度。        

  • 饶阳 / 设计师

    2024-03-21 10:47


    #办公智造#

    这里设有会议室空间,为建设对话和不间断的专注提供了宁静的环境。特地选用的声学材料可以确保每次互动都不受干扰,能够持续深入研究或进行有意义的小组讨论。这些声学产品与整体美学和谐融合,将工作环境提升到一个新的高度。People Make The
    Difference 是企业的目标,也是这次设计师要在空间里体现的主题。        

  • 喀秋莎 / 设计师

    2024-03-21 06:45


    #办公智造#

    简洁的门头效果和LOGO,用简洁的线条描绘出空间的形态,半透明的材质引导视线向内,黑与白的相互碰撞,虚与实的交汇融合,在影影绰绰间瞥见空间的语言。
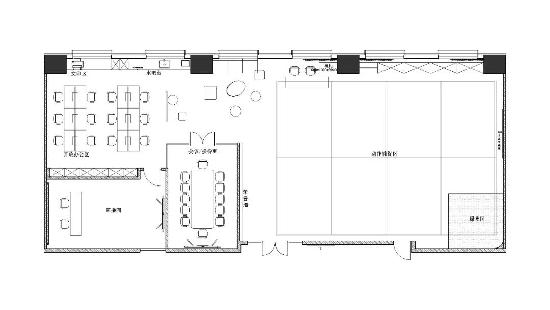
    在黑白空间中探寻行动的轨迹,入口左侧设置个性化展示柜,在边缘处用灯带打亮,营造出一块明亮的空间氛围。由于场地设备的特殊性,大部分空间都在地板之上另设地毯,窗帘也采用深灰色不透光的材质,在场地一角设置绿幕无影墙,以满足场地工作过程中的需求。入口右侧转角的墙面制作成品牌形象墙,与左侧的展示墙面相互呼应,提升整体空间的完整度。
    将场景内相对开放的空间顶部漆黑,在一定程度上划分功能区域,以灰色为主色调,个性化的现代沙发茶几造型简洁流畅,材质柔和。会客区和办公区之间仅使用镂空方形隔断,纤细线条的LOGO与其装饰自成一体,减少了整体空间的拥挤感,使各个小空间相互共通。
    办公区桌面与电脑配件选用白色系,在灰黑色的空间里独树一帜,减少深色系所带来的沉闷感。柜面和部分空间与墙面相互结合,节省空间的同时,又准确地进行了区域分割,营造出办公空间的秩序感。
    直播间属于整个空间内的私密空间,故而在整体装潢上有别与外部区域。在吊顶之上装置软膜天花,以提高室内的明亮度,墙面除LOGO外不再添加任何装饰,使视线重点集中于直播人员之上,满足直播效果需求。
    会议室以白色为基调,仅地毯为深色,不规则透明玻璃门减少房间封闭感,增加活力,同时与邻近休息区的圆形座椅和边线柔和的logo相互呼应,使整个场地形成一个完整有联系的空间。        

  • 刘君雅 / 设计师

    2024-03-20 21:02


    #办公智造#

    办公室效果图        


  • #办公智造#

    汉司办公室        

  • 戴宁 / 设计师

    2024-03-20 20:58


    #办公智造#

    会计事务所        

发直播

公开