当前位置:首页 > 设计圈
  • 木子李 / 设计师

    2024-03-22 10:40


    #办公智造#

    「从平面规划、材质选取、到视觉落点,细致思考每一处的使用体验和视觉感官。设计师将现代格调、人文风貌与品牌格调、企业文化相融合,形成一个功能完善且富有层次感的办公空间,展现出独特韵律与风格。」
      目之所及,墙面木色格栅的设计与地面大理石相互辉映,石材与木质的结合更显雅致。灯带巧嵌格栅中,前台的设计独具匠心,悬空的效果将繁复化为简洁,空间的通透干练得以充分展现。
       顶面浅色格栅一体铺陈,与立面呼应,通透干练,又具开放性和流动性,探索空间的叠加层次感。
          灯带沿着线性观赏路径,带领访客一览企业技术发展与战略规划,深入品牌故事内核。墙面以企业标志色为主,内嵌智慧大屏兼具实用功能与优雅审美,提升此空间的交互性和渗透性。
          开放办公区以木质饰面为主,展现出规整干练的质感。透明的玻璃隔断延展视野,为员工提供了清晰有序的动线,同时营造出开放明亮的氛围。整体布局简洁精致,为员工创造了舒适高效的工作环境。        

  • 木子李 / 设计师

    2024-03-22 10:38


    #办公智造#

    会议室采用暖色调、质朴极简的原木饰面,形成了空间留白,使员工沉浸在一种更加专注的氛围中。大片落地窗可窥见窗外景色,自然光线温和地倾泻进室内,专业感与温度并存。
    茶水间,可作为非正式互动和社交的场所。设计师特意选用蓝色沙发,符合品牌色调的同时,为空间增添了一抹清新与舒适。宽敞明亮的落地窗为空间带来极佳的视野与采光,员工可在此沐浴阳光,补充身心能量。
       设计师在餐厅设计中融入了趣味、随机性与艺术氛围。独特的球状灯饰为空间增添了一份别样的活力,墙面采用了亮色拼接,为整个环境注入了一抹活泼与跳脱的气息。        

  • 小筑 / 设计师

    2024-03-22 07:39


    #标准施工#

    口袋门详解        


  • #办公智造#

    办公室实景图        


  • #办公智造#

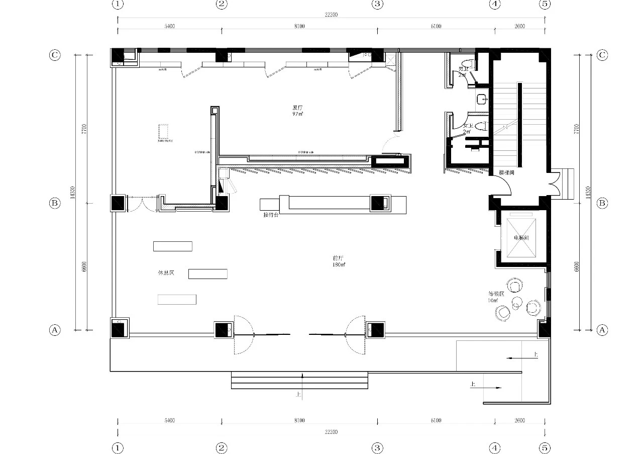
    大厅与接待空间                


  • #办公智造#

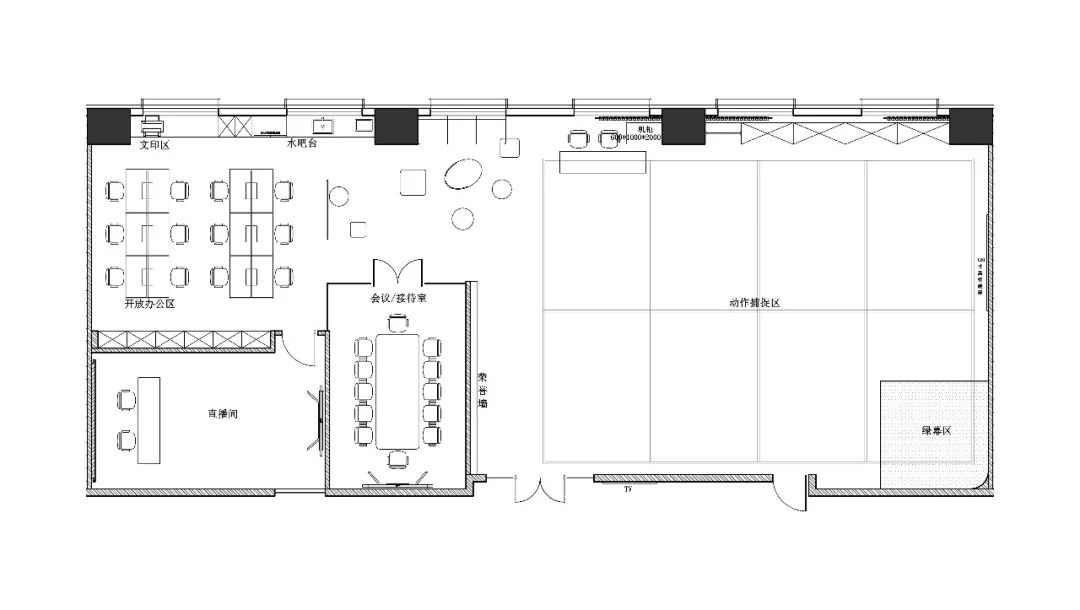
    动作扑捉工作室办公室        

  • 宋闲 / 设计师

    2024-03-21 16:37


    #办公智造#

    大气...        

  • 小筑 / 设计师

    2024-03-21 16:21


    #标准施工#

    红色的弧        

发直播

公开