装修案例
灵感美图
找设计
找工长
看工地
记住密码
我已阅读并同意注册协议
发直播
副总部办公室以原木色木饰面点缀墙面,营造自然与品质融合的氛围。天花无主灯,线性灯条和筒灯交相辉映,照明柔和明亮。空间装饰着字画与陶瓷摆件,彰显文化底蕴与品位。
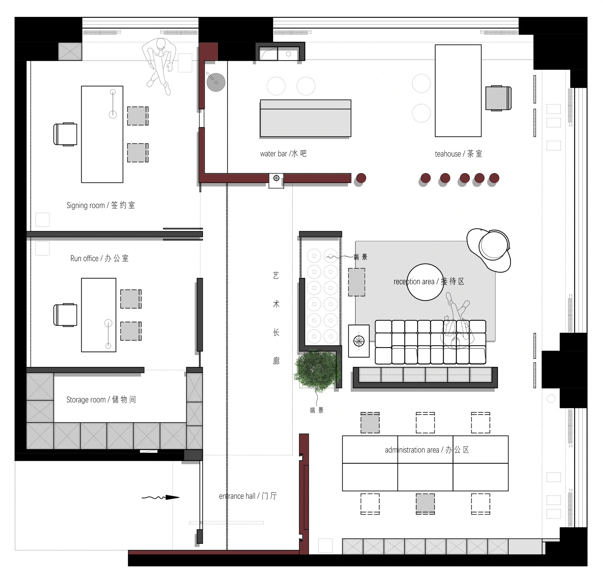
现代风格办公空间设计
独立办公室
收口(1)
收口(2)
木质本色办公空间
办公空间设计
无框钢化玻璃隔断