装修案例
灵感美图
找设计
找工长
看工地
记住密码
我已阅读并同意注册协议
发直播
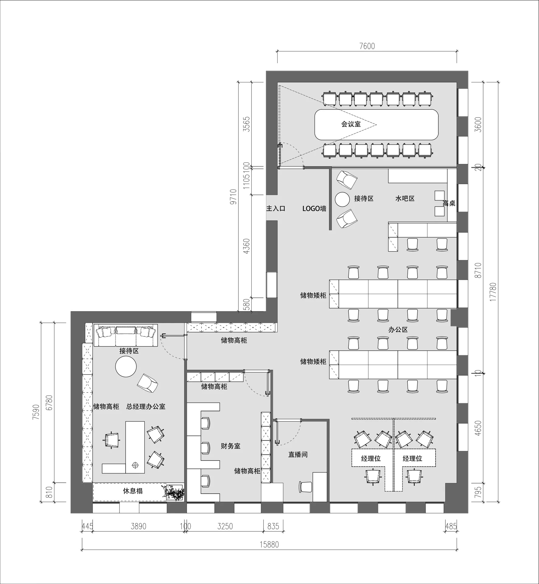
医疗公司办公室(1)
医疗公司办公室(2)
开放办公空间
学校办公室
商务风办公空间设计
教育机构局改设计图
办公室实景图
矮墙剖面