当前位置:首页 > 设计圈
  • 小麦庆 / 设计师

    2024-04-02 10:03


    #办公智造#

    包含了两个主要功能,一楼主要是18人的工作空间,二楼是一个可以容纳200个座位的大厅。然而,该公司同时关注位于一楼的、将会与二楼通过走廊相联系的主大厅的设计。
    一楼和二楼正对着花园和邻近的树林,这有助于创造人们与自然之间的牢固的纽带。这个建筑有着双重屋顶,以此创造出了让源源不断的风流通的空间。它同时有着两层的墙面,外层墙面为葡萄藤,从而降低了东西部热度。
    同时希望能建立一个有着优越区位、高生活质量和人与人、人与自然以及自然与建筑的紧密联系的完美建筑。并且,他们通过创造在荣市的这个模范办公建筑来证明他们对此的渴望。        

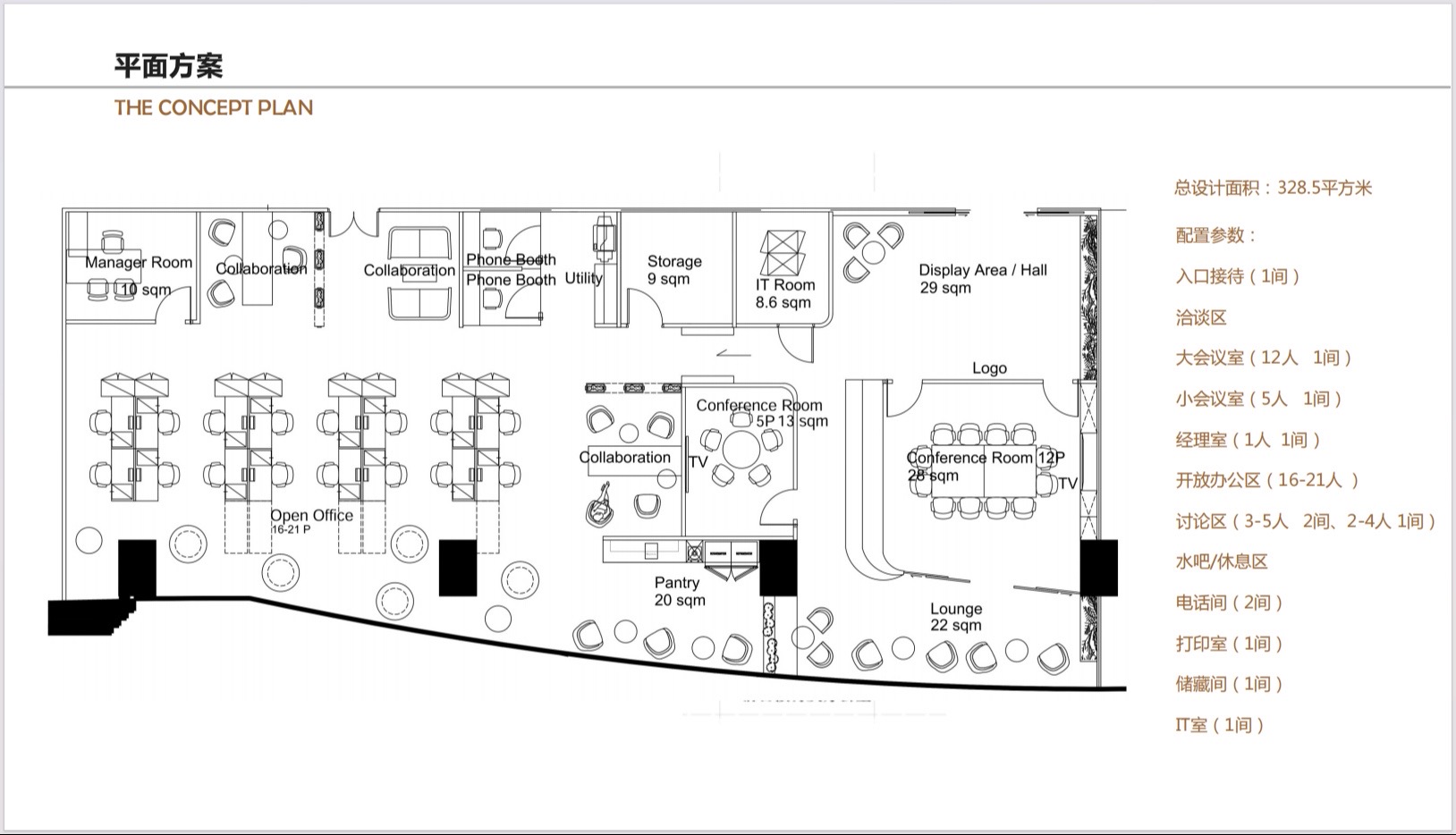
  • 小麦庆 / 设计师

    2024-04-02 10:00


    #办公智造#

    办公平面图        

  • 蓦兰 / 设计师

    2024-04-02 09:56


    #醉美庭院#

    中式小格调        

  • 魏馨琪 / 设计师

    2024-04-02 07:25


    #办公智造#

    设计提案(1)        

  • 魏馨琪 / 设计师

    2024-04-02 07:24


    #办公智造#

    设计提案(2)        

  • 魏馨琪 / 设计师

    2024-04-02 07:22


    #办公智造#

    设计提案(3)        

  • 椿楸 / 设计师

    2024-04-02 06:51


    #办公智造#

    大成...        

  • 吕行者 / 设计师

    2024-04-01 23:02


    #办公智造#

    HKS办公室        

发直播

公开