当前位置:首页 > 设计圈
  • 毛均峰 / 设计师

    2024-04-03 12:02


    #办公智造#

    圆润的木作柜体架构,与透明的玻璃隔离,透过光线,搭配纹理时尚的大理石,使得办公的空间既温润又严谨。        

  • 小海 / 设计师

    2024-04-03 11:35


    #办公智造#

    大面积的运用落地玻璃,通过透明玻璃的隔断,清晰地看见外部的员工区,使得办公区域时尚、精简!        

  • 饶阳 / 设计师

    2024-04-03 09:20


    #办公智造#

    工作环境频繁变化,让办公室的概念,从单一提供办公的场所,到如今进化出了新的身份——关照人的空间办公室作为家之外人们待得最久的地方,正积极做到“向内设计”,并关注人的情感与需求。
    办公室的设计和美学理念也发生了变化,为员工在各个层面提供舒适与安全,让他们感到放松中享受工作。不只是将工作与休闲区按标准分开,而是将两者结合成空间的动态装饰元素,引入自然,打造安静、舒适的办公生态。

  • 饶阳 / 设计师

    2024-04-03 09:19


    #办公智造#

    使用大胆的色彩和形状的家具,并用温暖的天然材料点缀其中。除此之外,开放式式的咖啡吧、植物盎然的室内景观池,都大大提高了员工的幸福指数。
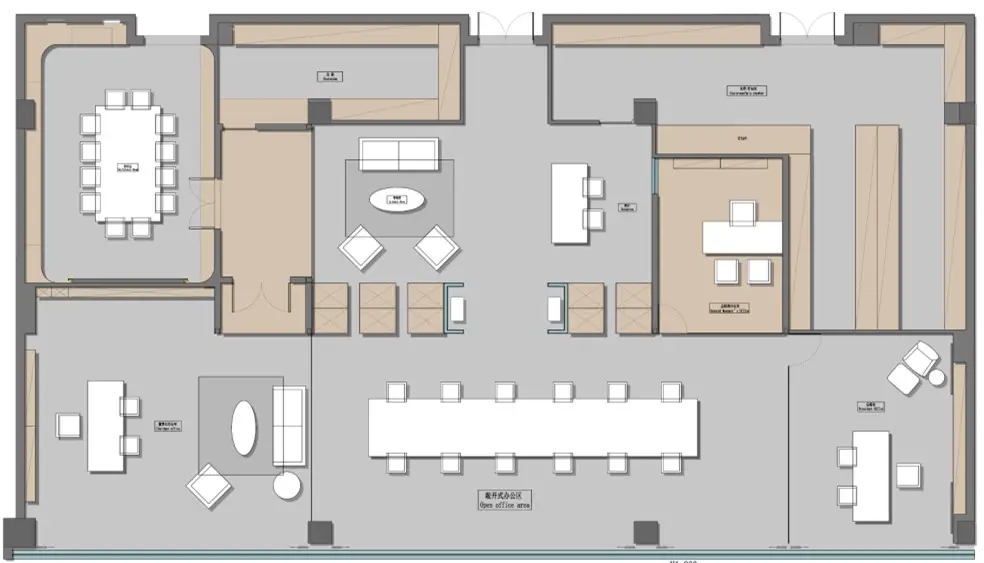
    办公区空间、文印室、较小的接待室被木制屏风隔开,既保证了视野通透,又增加各自的私密性。        

  • 杨梅酱 / 设计师

    2024-04-03 07:43


    #办公智造#

    在300㎡的有限空间之内,遵循“绿色、生态、节能、智慧”的设计理念,做“无限”的设计。
    设计充分体现了人与建筑、自然的和谐统一,整体环境中还灌输了亲和、优雅、随意、舒适的个性化设计理念,颠覆了传统办公的设计思路,不仅能够满足办公的多维功能发展,更将公司产品与现代化办公环境相融合。
    在色彩应用上,选择了简洁的黑色,白色,灰色作为空间的主色调,同时采用了富含自然纹理的木材,以及绿色系为空间增添活力。在软装搭配上,选用由深圳其美家具提供的现代、简洁、干净的办公家具,围绕本案的主题,构筑个性化空间。


  • #办公智造#

    工作室住宅
    见其颜而知其色,闻其声而知其和,赋予区域内最大的自由度与展品自我言说的可能性。
    一隅留给向内的思索和丰盈充沛的内在。经典原木色系主笔,留白与木色两相悦。


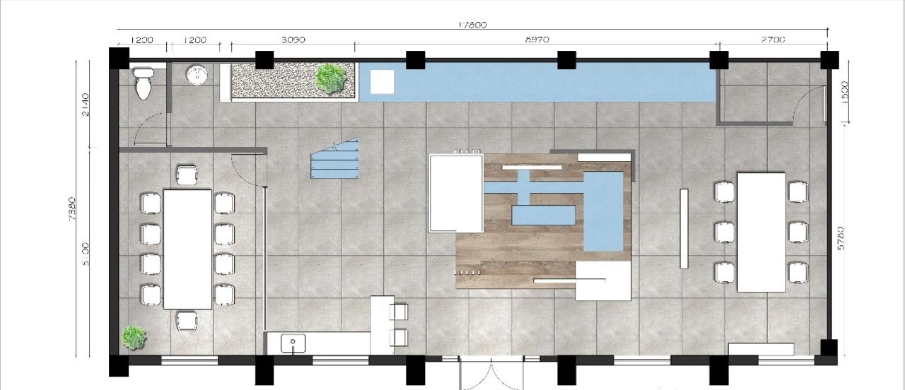
  • #办公智造#

    平面图        

  • 王建 / 设计师

    2024-04-03 06:35


    #易筑展陈#

    兴华包装集团员工活动中心及企业展厅        

发直播

公开