当前位置:首页 > 设计圈

  • #办公智造#

    设计采用了象牙白高光漆面,灰色地毯,以浅色的自然木纹为主要材料,局部略有色彩的变化,透明玻璃隔断、空间的巧妙划分,让整体感观更具开放性,整个室内达到简洁、明亮、通透的效果!        

  • 刘君雅 / 设计师

    2024-03-31 15:51


    #办公智造#

    办公室效果图        

  • 刘君雅 / 设计师

    2024-03-31 15:46


    #办公智造#

    办公室效果图        

  • 毛均峰 / 设计师

    2024-03-31 13:45


    #办公智造#

    一个安静舒适的会客区域,不需要硬邦邦的桌椅,只需随意坐在沙发上。自由、开放的闲适的沟通,形成了城市客厅的概念,成为会客和休闲讨论的舒适公共开放空间。
    多样的分隔和沙发组合,形成完美的独立空间,既有着视觉的美感又兼备声学的处理。半封闭的空间,既可以作为独立的工作及思考区域,又可以作为开放区与其他人协作办公,满足不同工作形态。
    采用极简的设计风格,通过精致的整体勾勒,让整体呈现简约而不简单!每天与世界各地的伙伴进行商业联系或者一个必要的面对面会议,会让联系更紧密,由此诞生无数个聚集和讨论、合作和产生新想法的机会。        

  • 毛均峰 / 设计师

    2024-03-31 13:42


    #办公智造#

    在会议空间里,吸音墙饰在减少空间噪音具有很长时间的效率。它们具有良好的声音屏障特性,且可以在一个空间范围里广泛的应用并得到实现。
    休息放松、交流娱乐区域,是办公空间人性化标志设计之一。这正是生活与工作的完美融合。        

  • 毛均峰 / 设计师

    2024-03-31 13:39


    #办公智造#

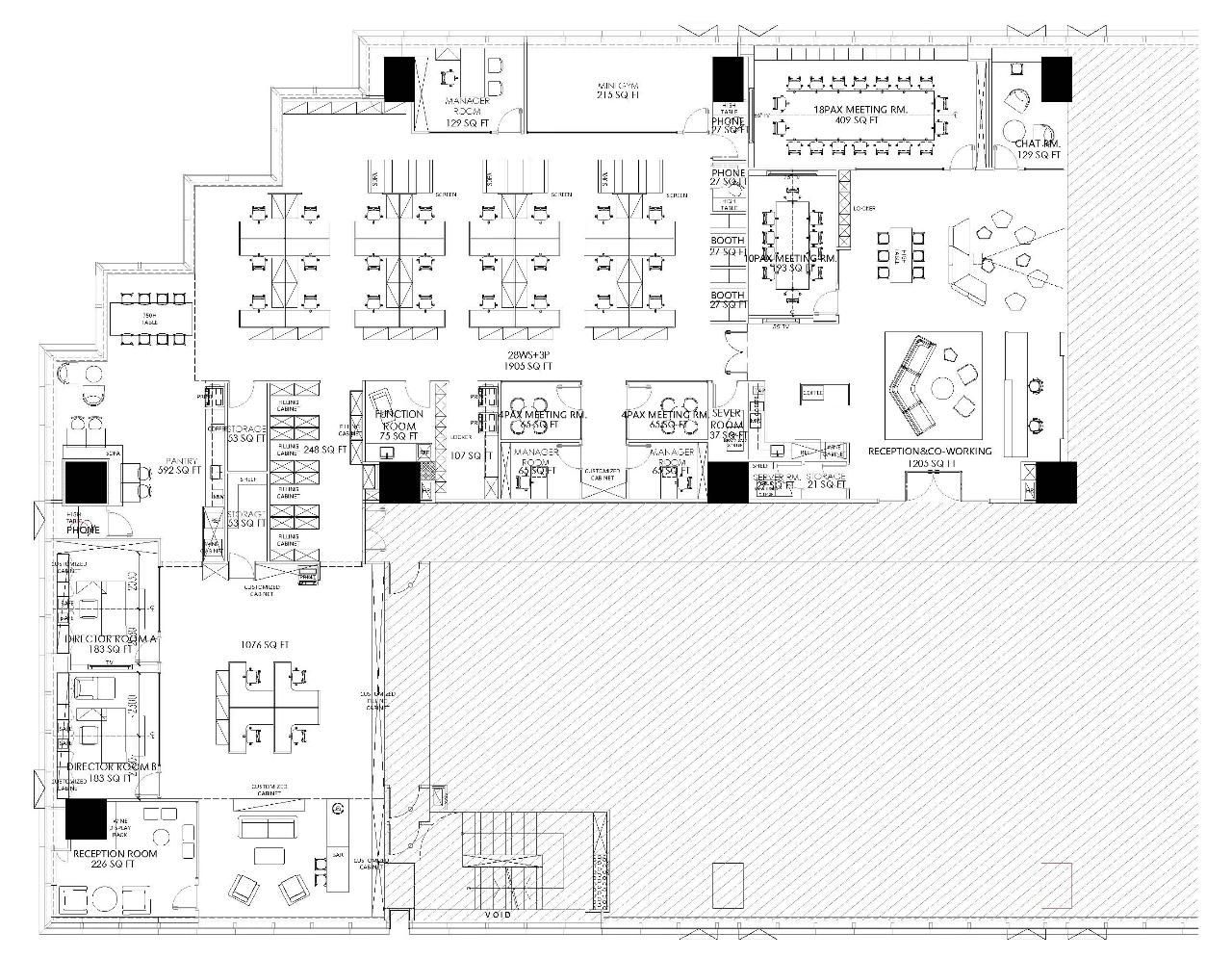
    项目平面图        

  • Diana / 设计师

    2024-03-31 13:31


    #办公智造#

    顺着道路往内深入,走廊的尽头是一面红色背景墙。墙上CHASE与顶部灯光交错排布,在墙面形成温馨的暖光,适当地延长了空间视觉,亦给人一种向前的指引感。
    橱窗设计,把队服展示橱窗里,既代表了团队精神,又使墙面增加了设计感。
    在整体的家具配置设计与材料上,设计师摒弃了一切过于复杂、繁冗的铺陈,以蓝色为主题色贯穿在产品的细节上,没有大面积使用。椅子靠背是PP,椅脚是钢制的,做到了不同材质却保证同一个颜色的效果。
    会议桌台面选择了拼色拼接处理,两侧是白色,中间是木纹,充满设计感的造型及结构,为的就是把精益求精的一面呈现给使用者。        

  • 宋闲 / 设计师

    2024-03-31 10:12


    #办公智造#

    办公室实景图        

发直播

公开