装修案例
灵感美图
找设计
找工长
看工地
记住密码
我已阅读并同意注册协议
发布话题
电线功率表
筒灯开孔及高度适用的大小
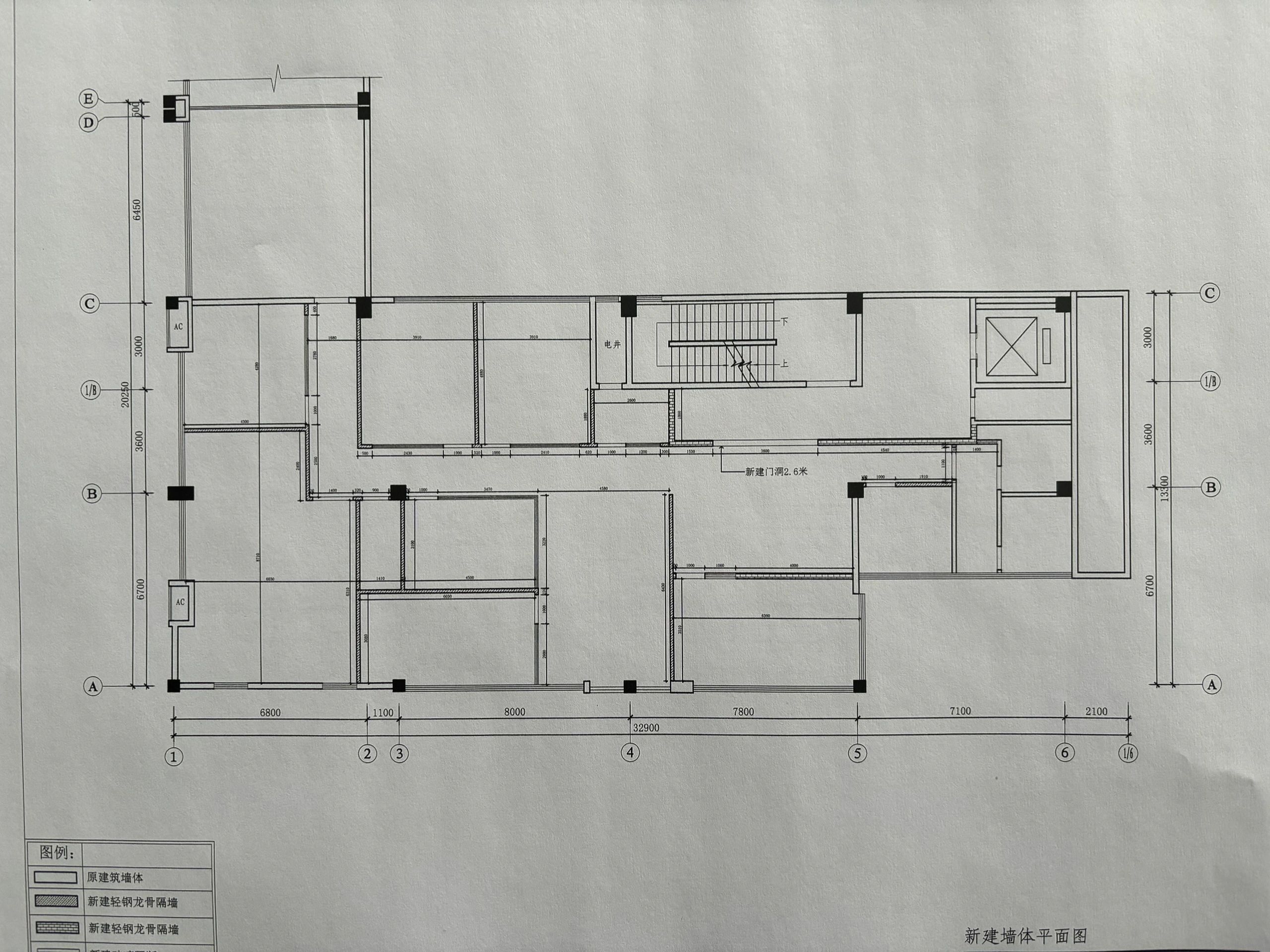
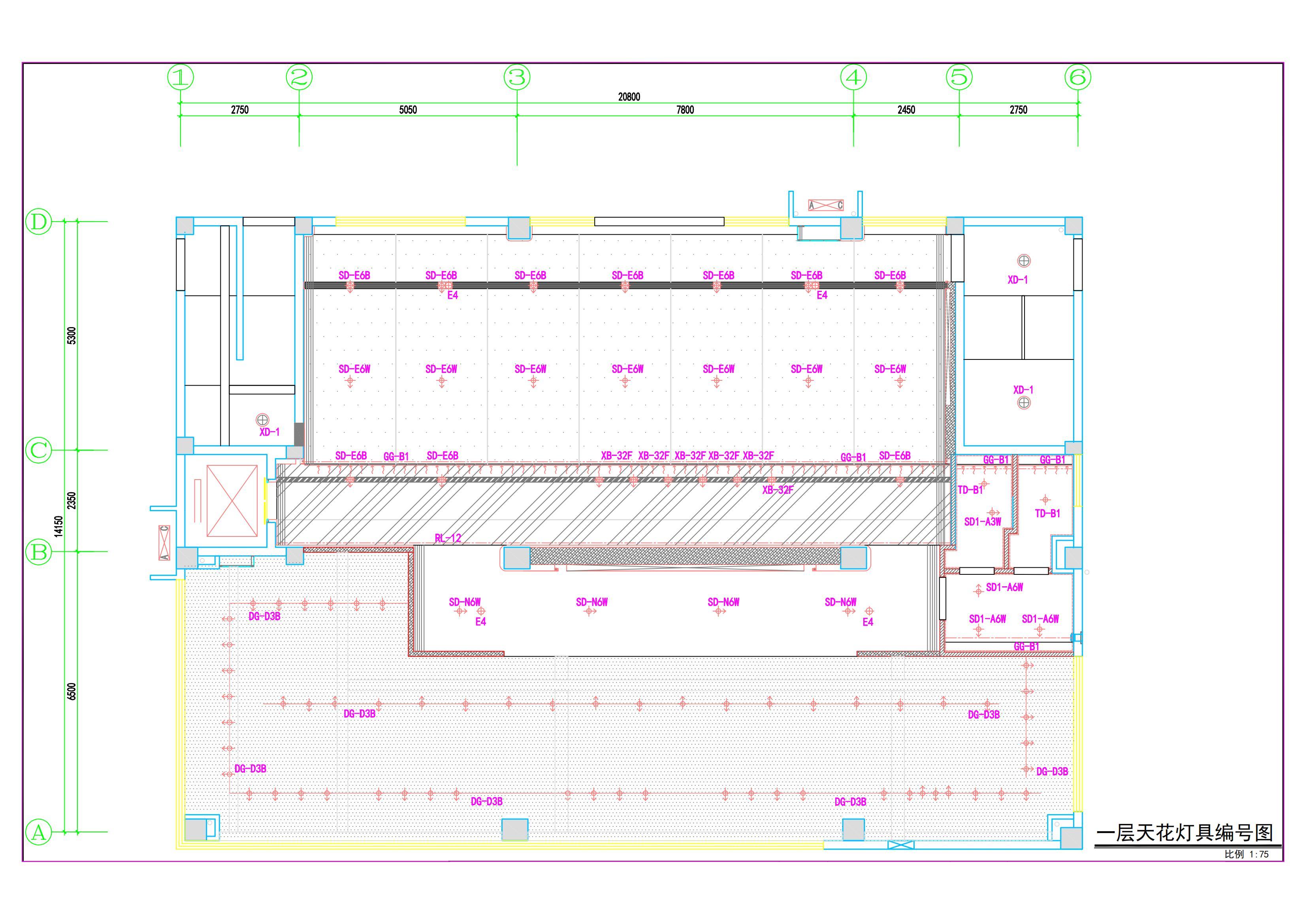
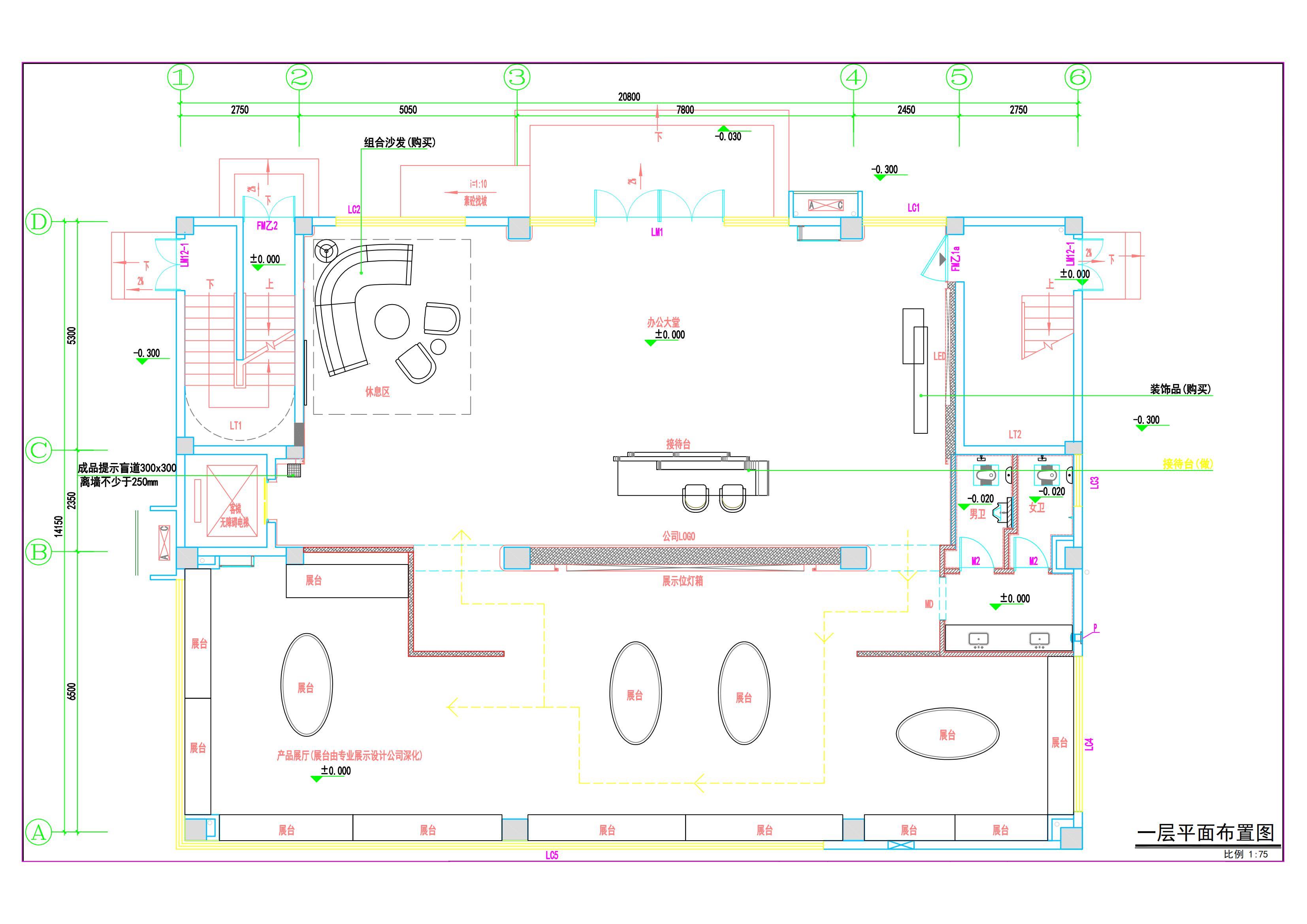
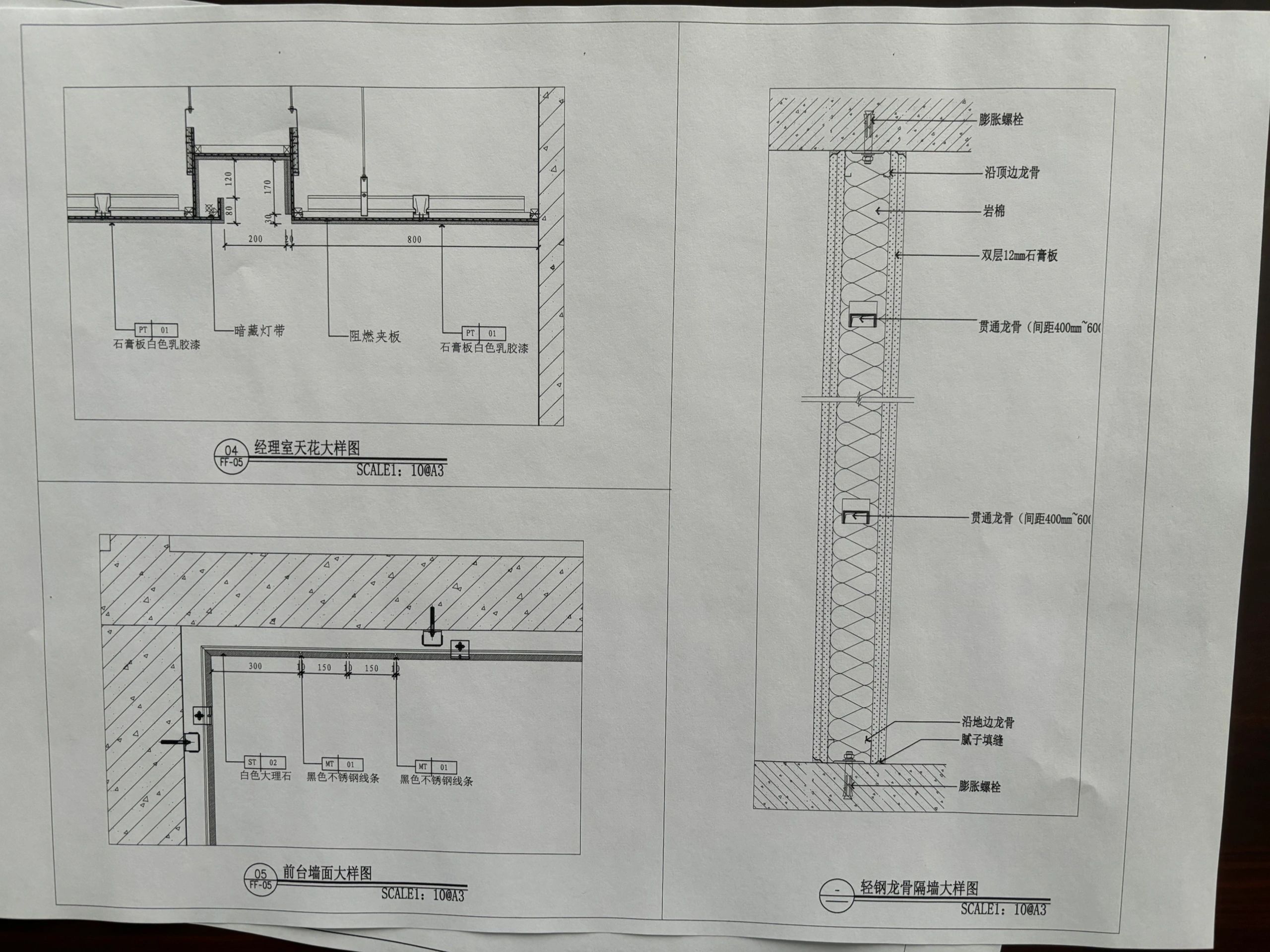
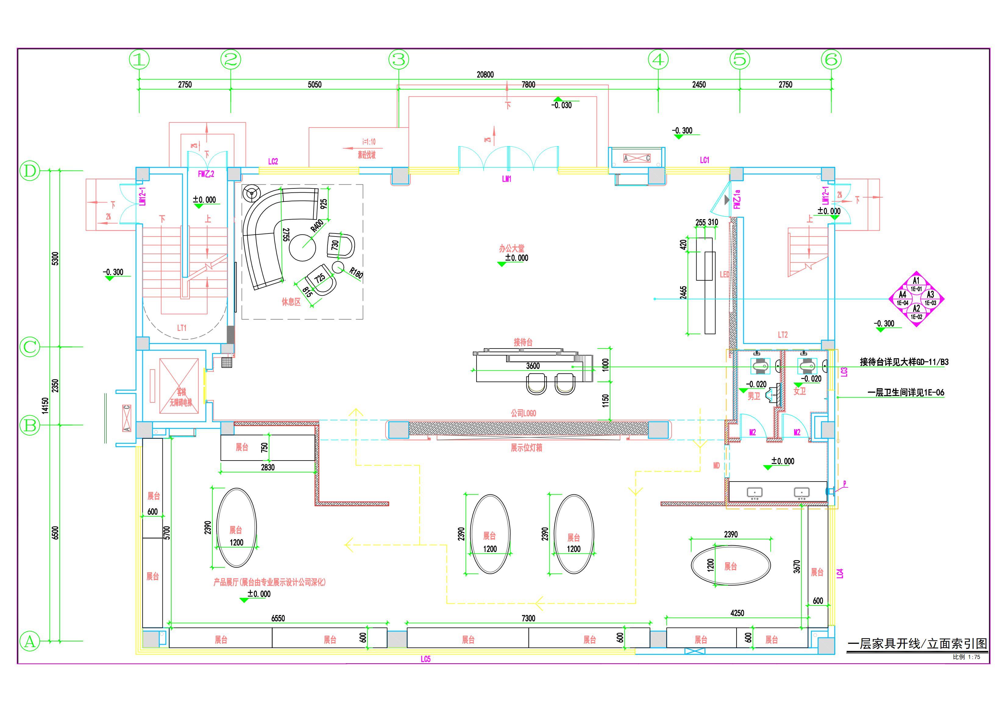
百平办公空间 | 一层施工图
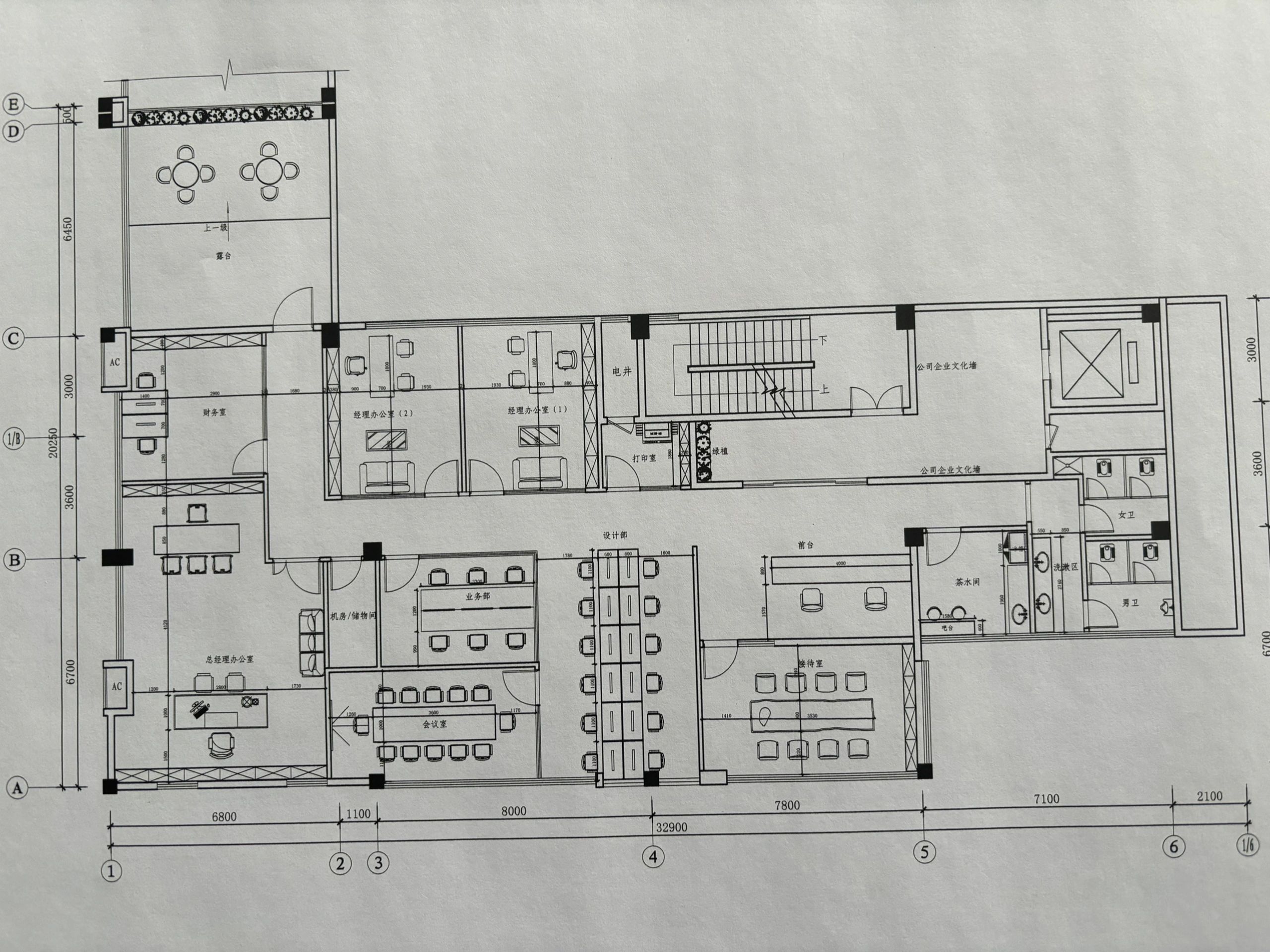
百平办公空间 | 二层施工图
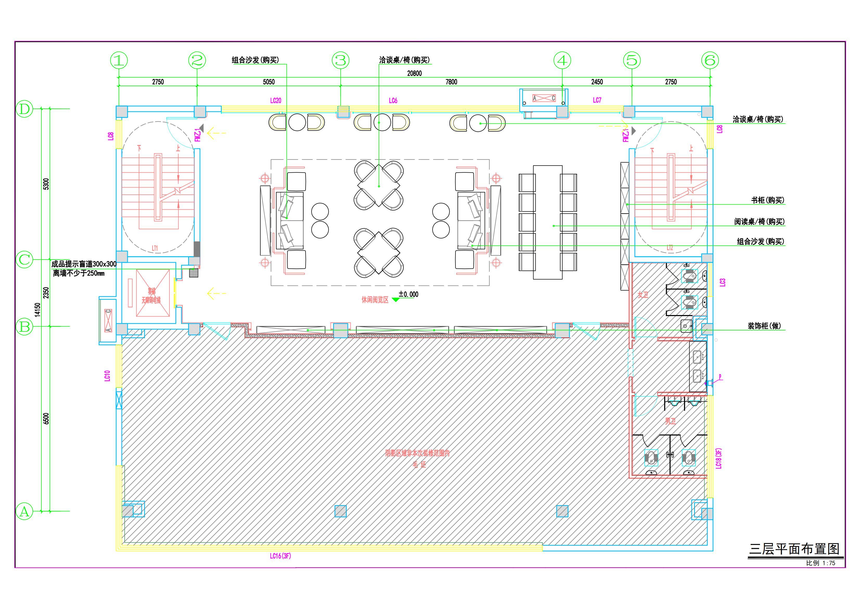
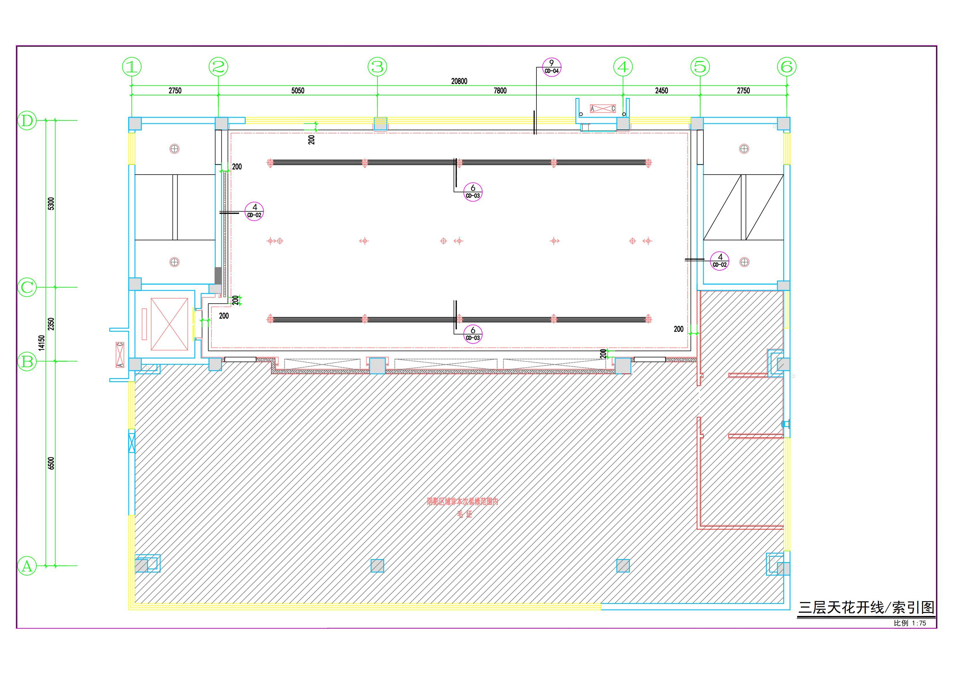
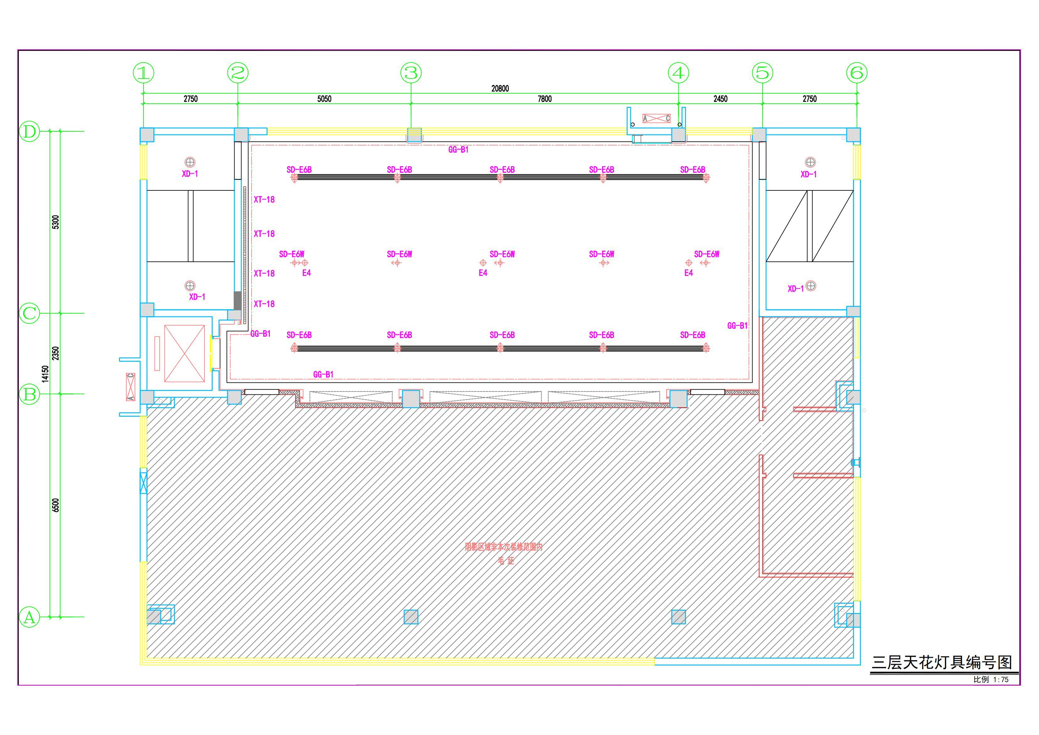
百平办公空间 | 三层施工图
办公空间设计图纸
水景泛碱
水电篇