装修案例
灵感美图
找设计
找工长
看工地
记住密码
我已阅读并同意注册协议
发布话题
研发中心(1)
研发中心(2)
研发中心(3)
插座接线小知识
100工艺做法 | 002收口
无缝干挂铝板做法解析
保姆级,选射灯!
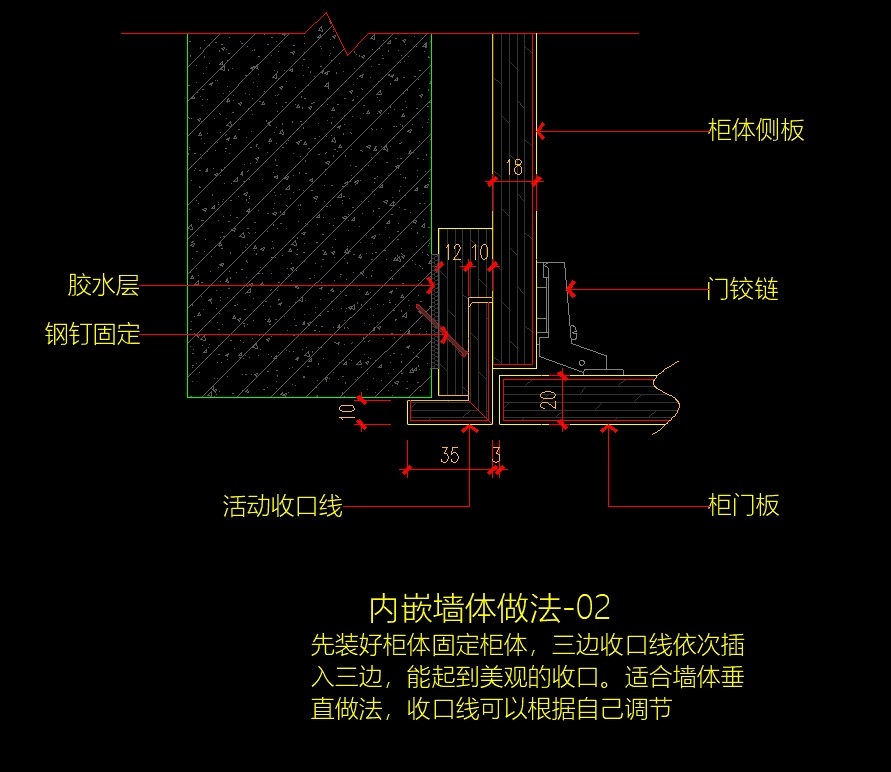
柜体与墙面收口节点图