装修案例
灵感美图
找设计
找工长
看工地
记住密码
我已阅读并同意注册协议
发布话题
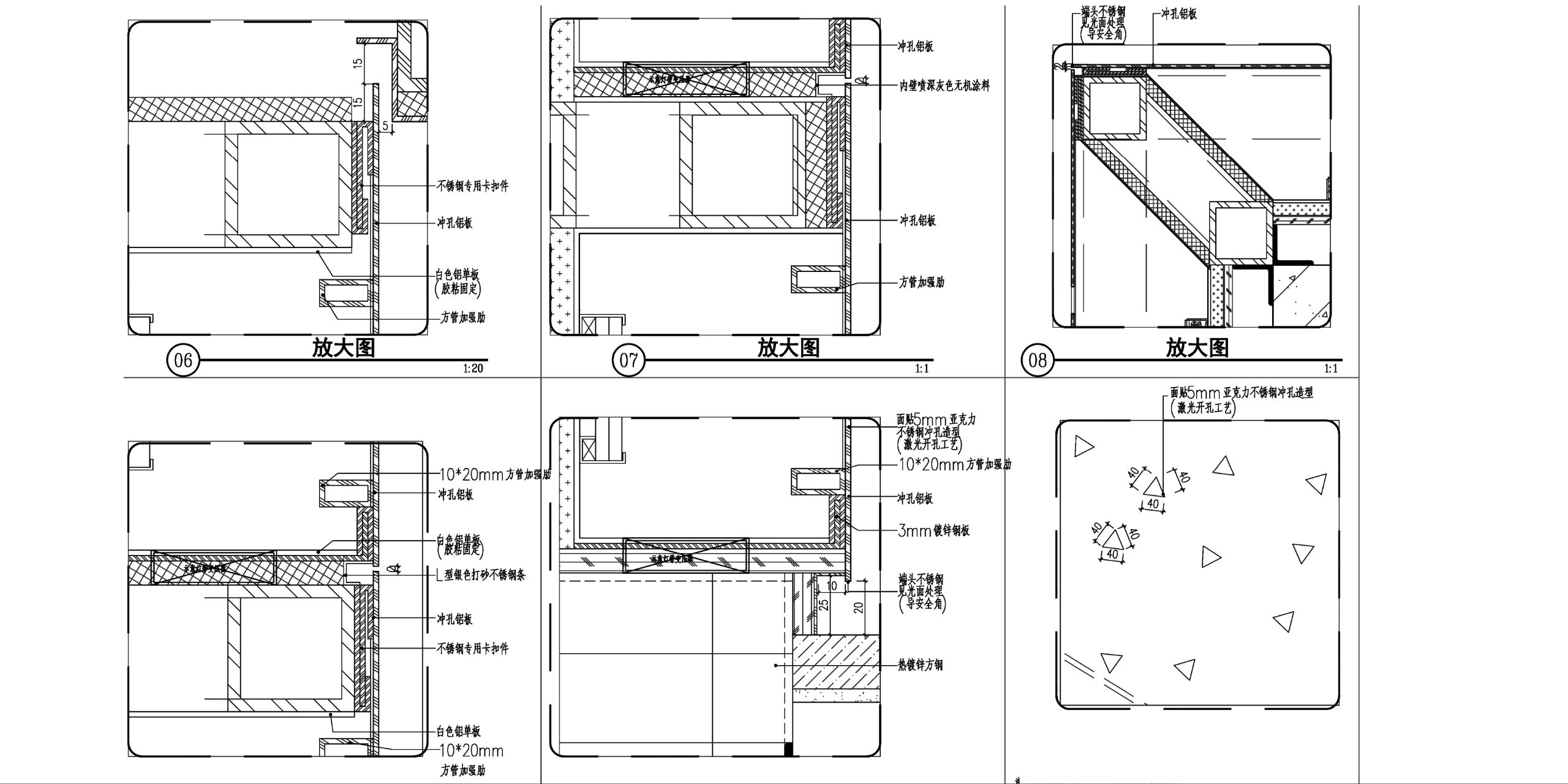
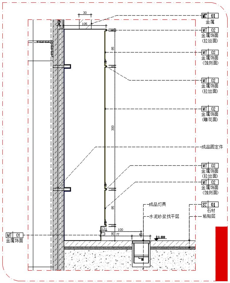
冲孔铝单板施工节点
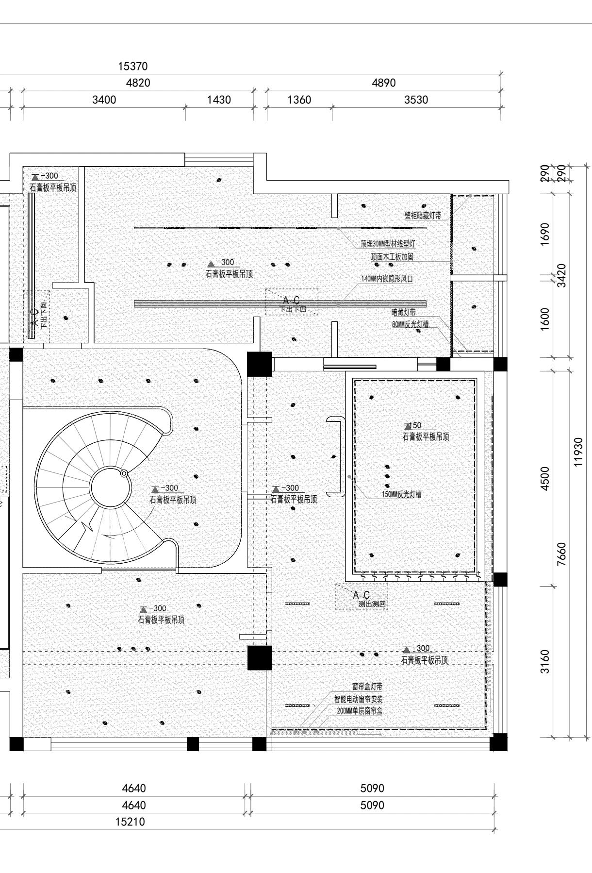
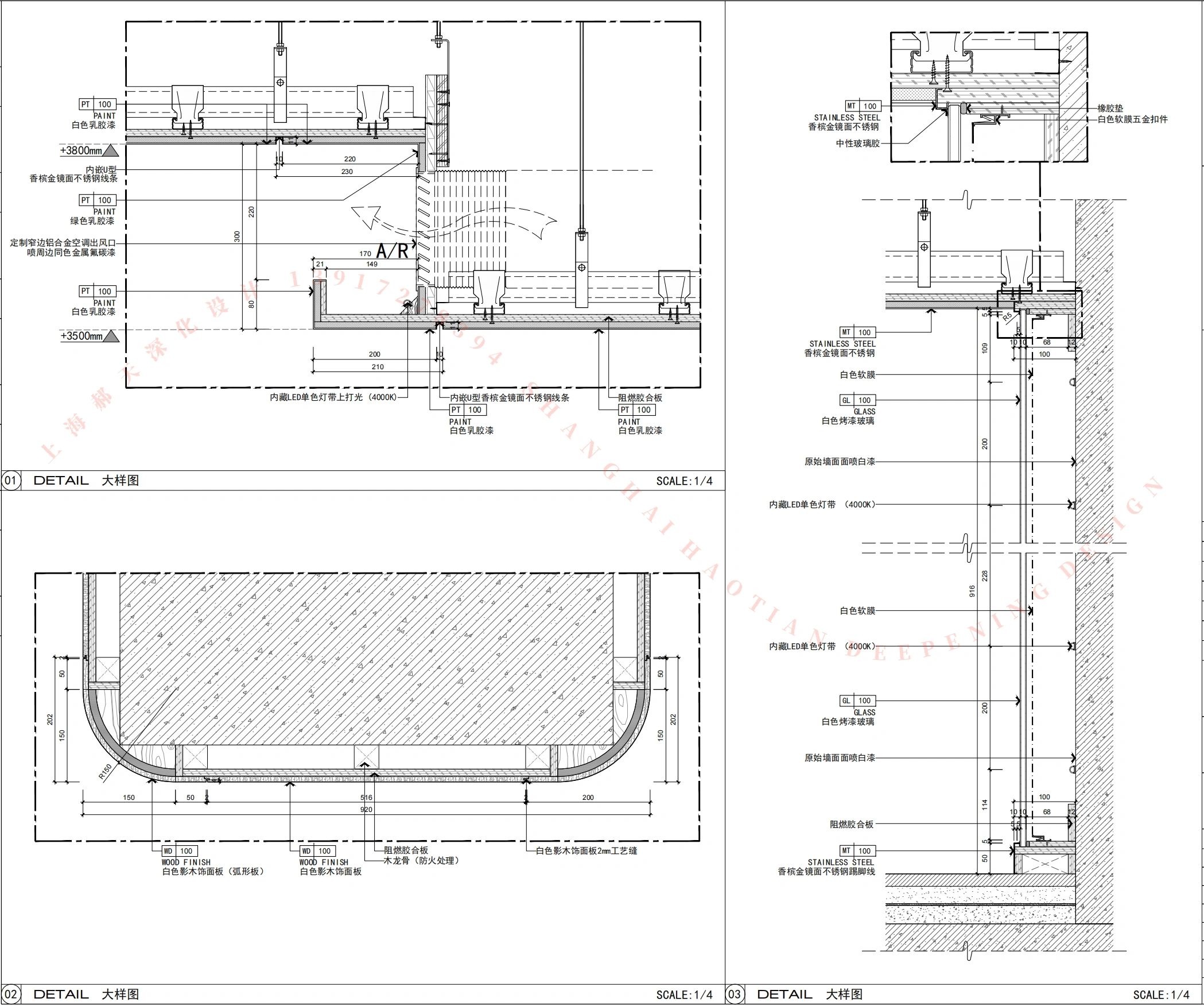
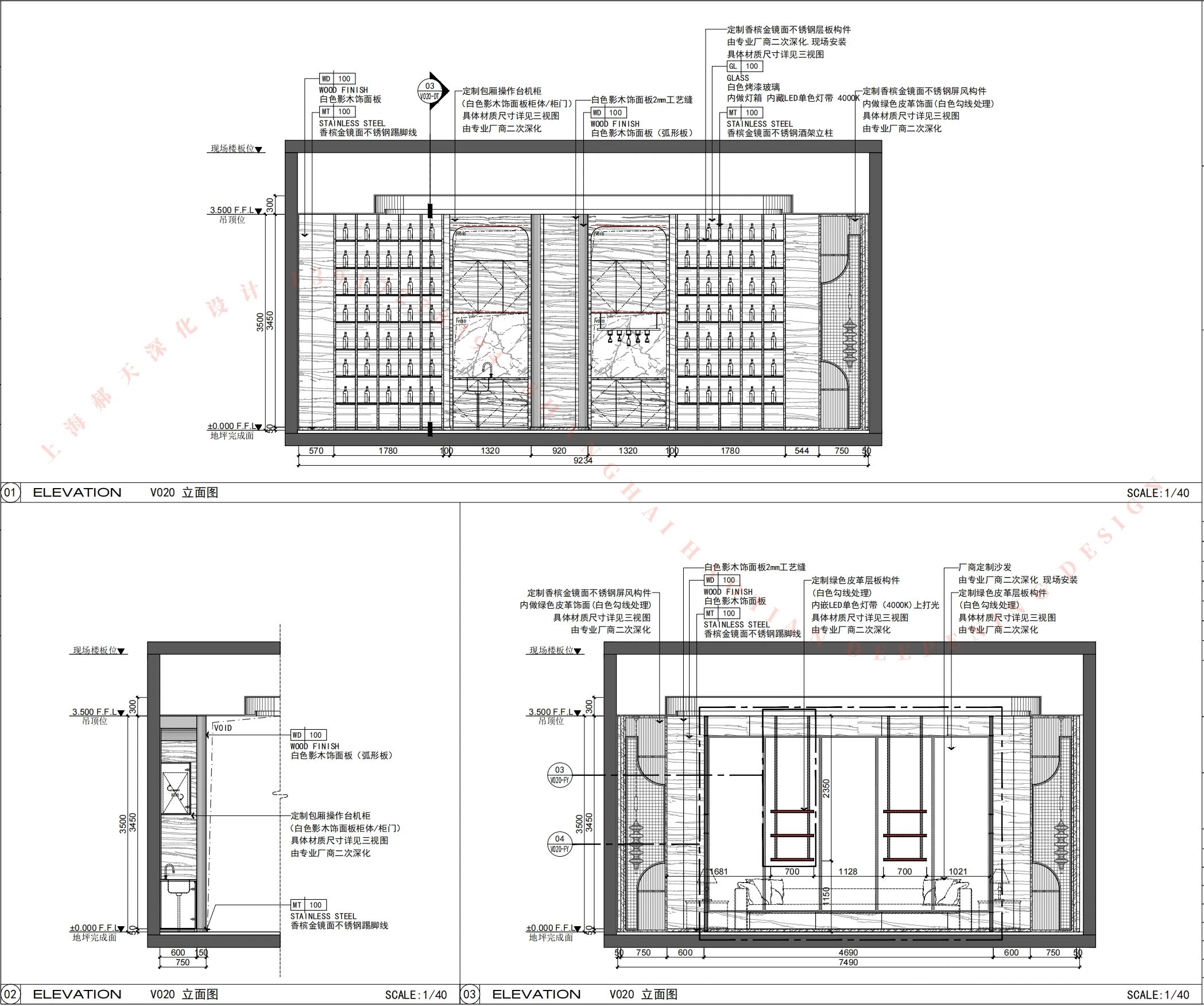
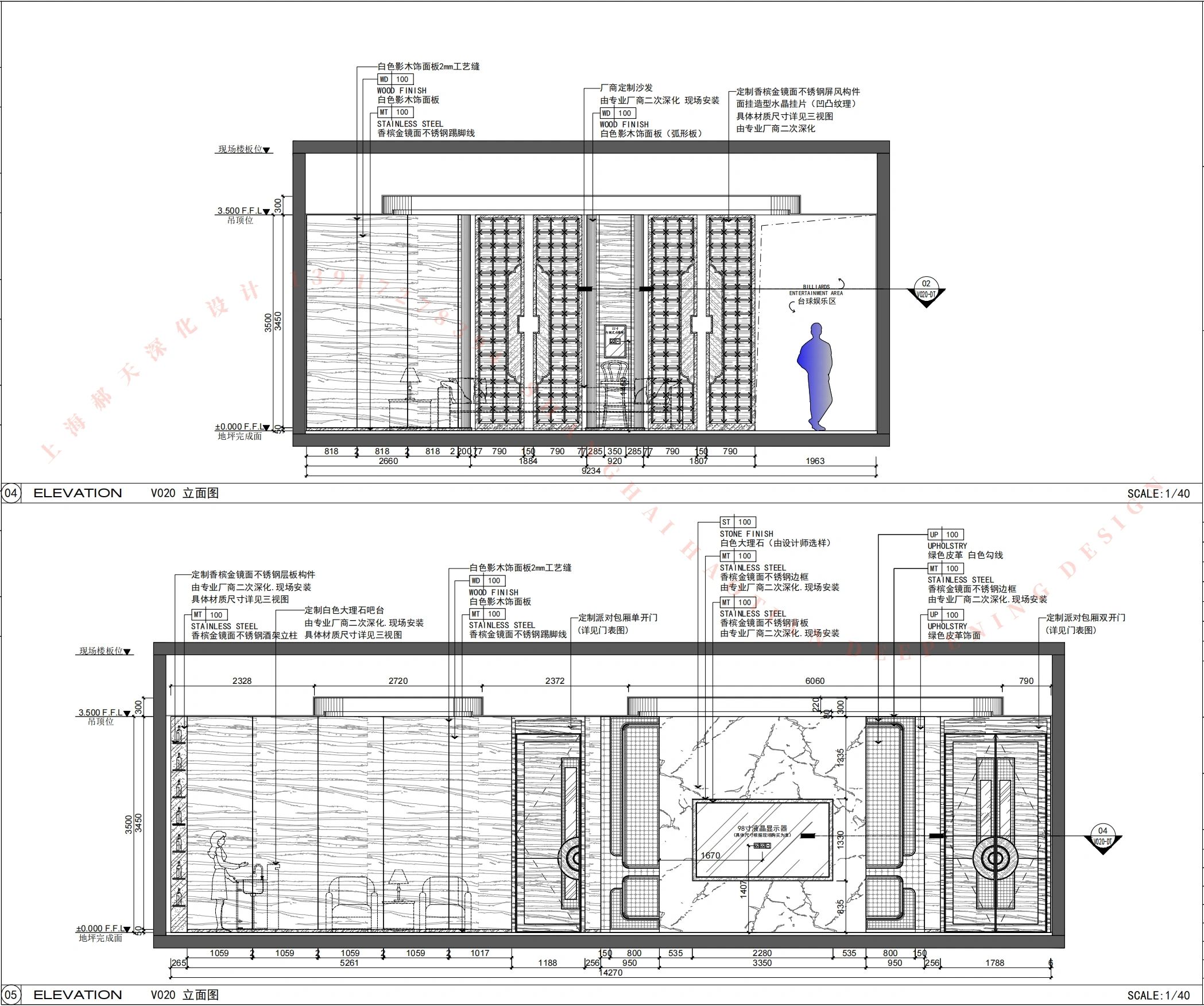
深化设计图纸赏析
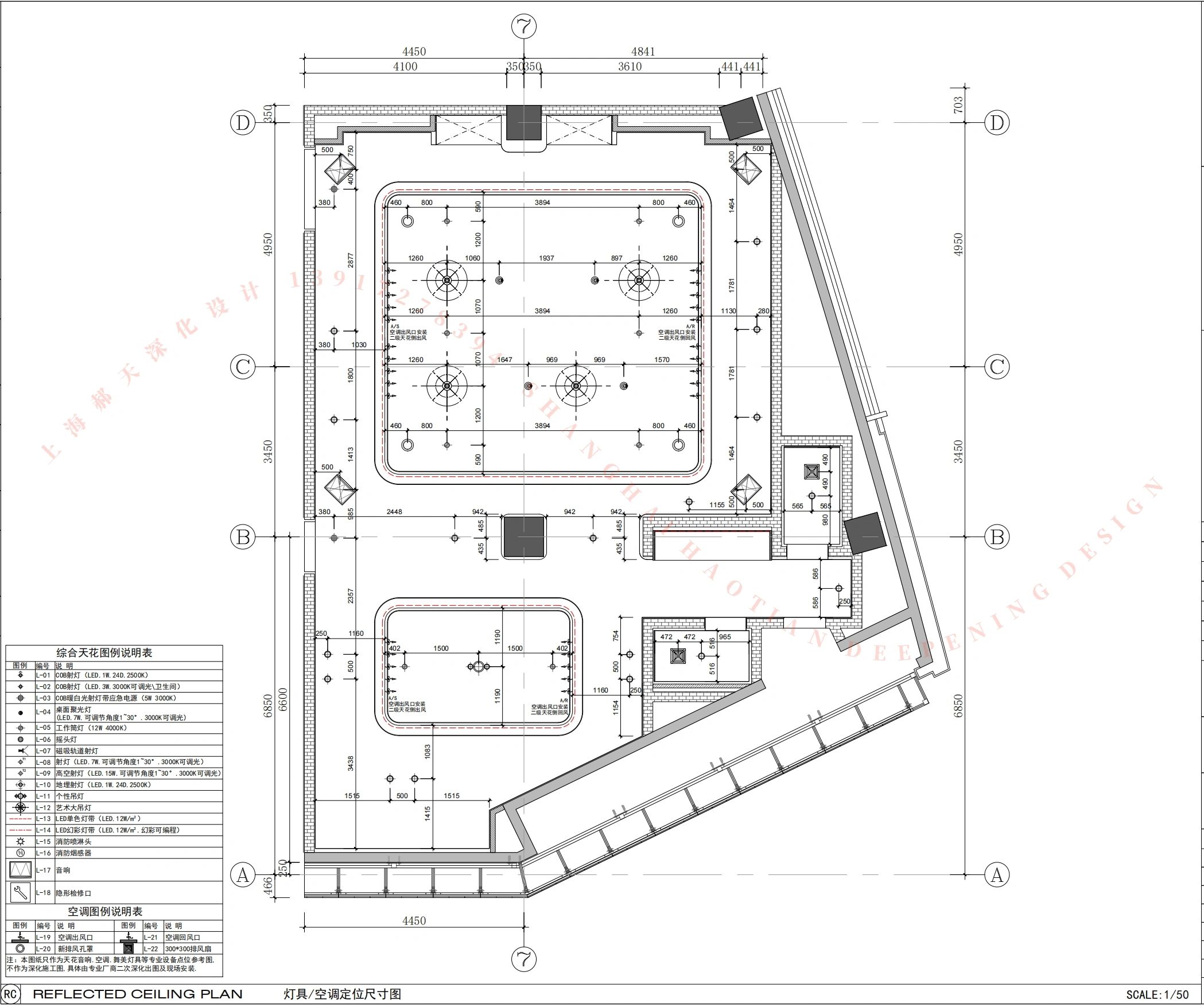
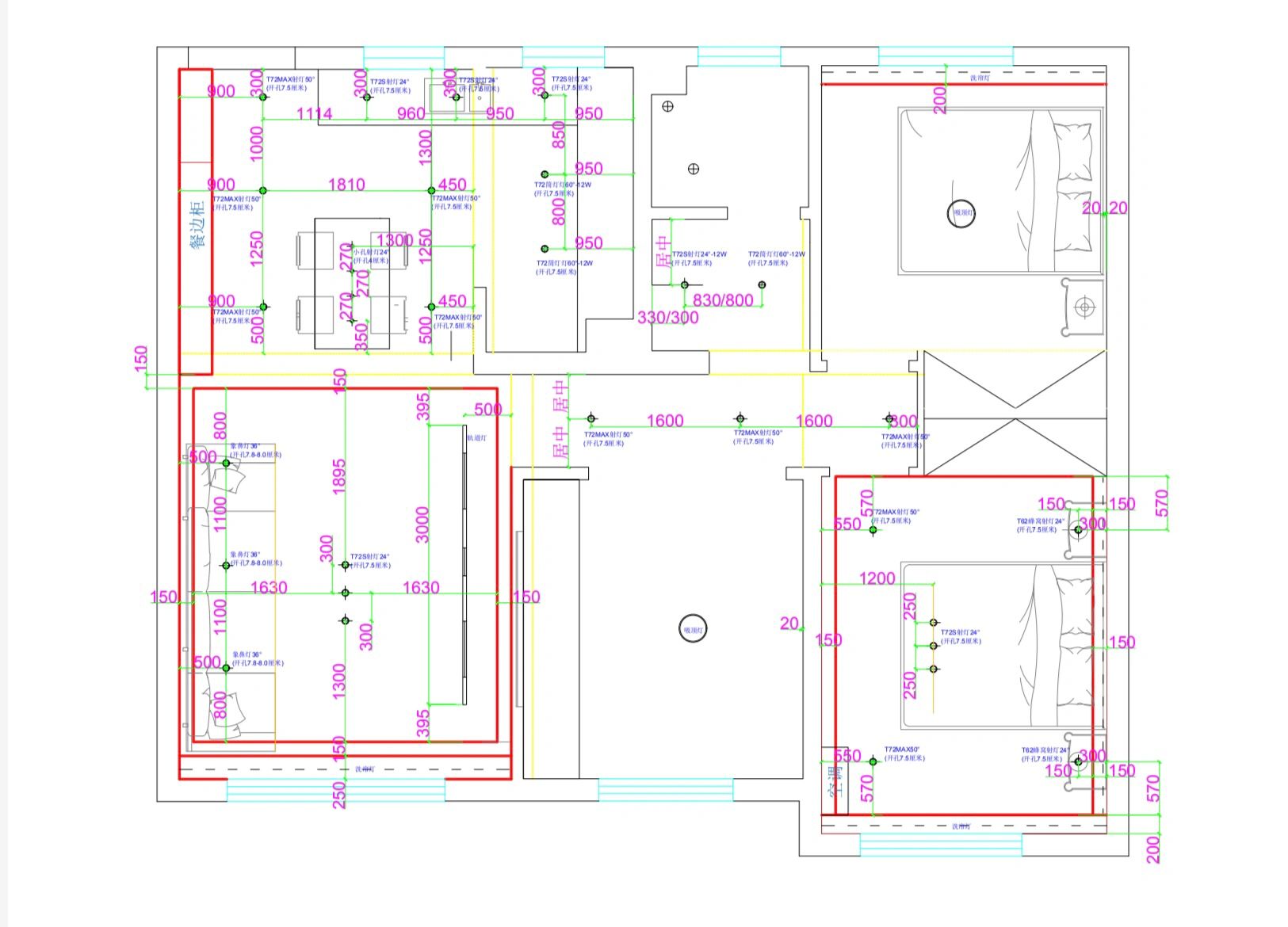
灯具尺寸图
软膜与不锈钢收口
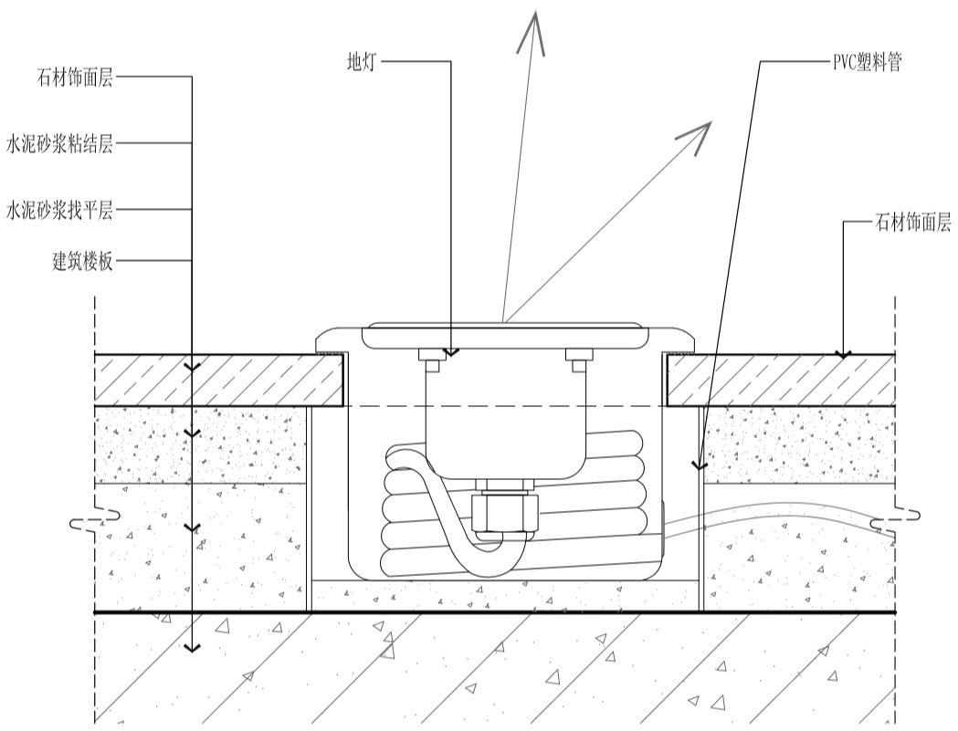
地面线型灯 磁吸轨道灯 阴影缝灯节点图
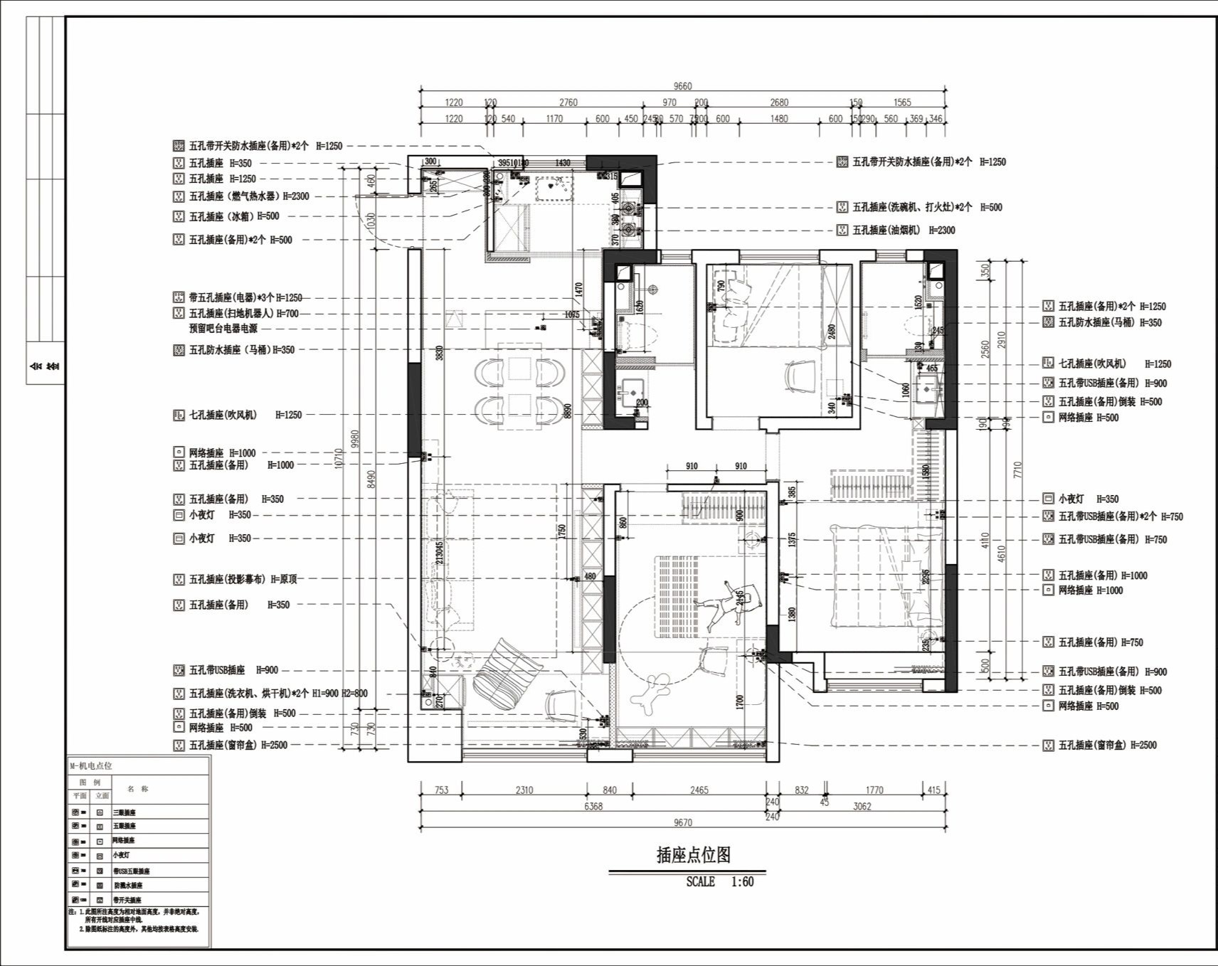
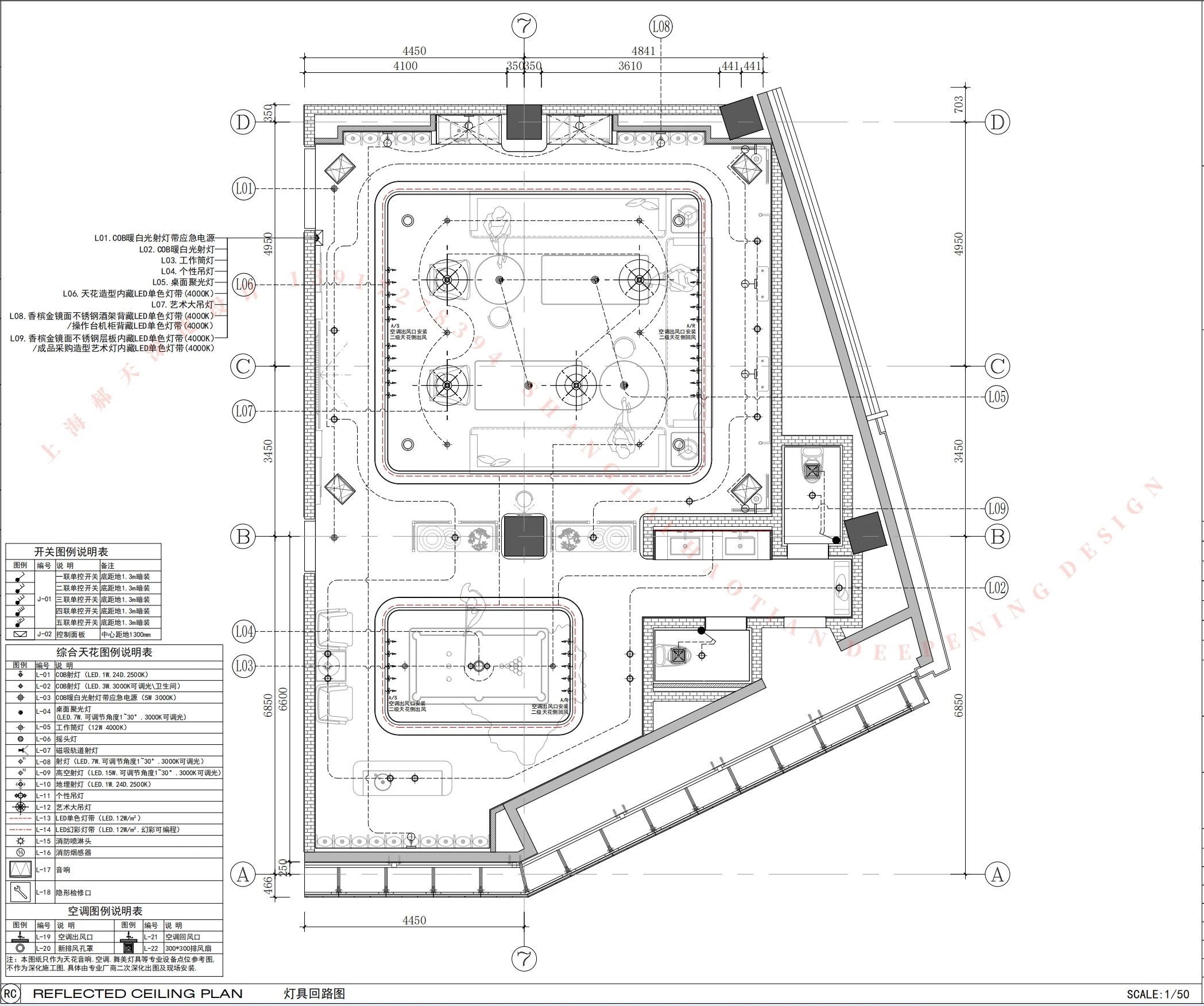
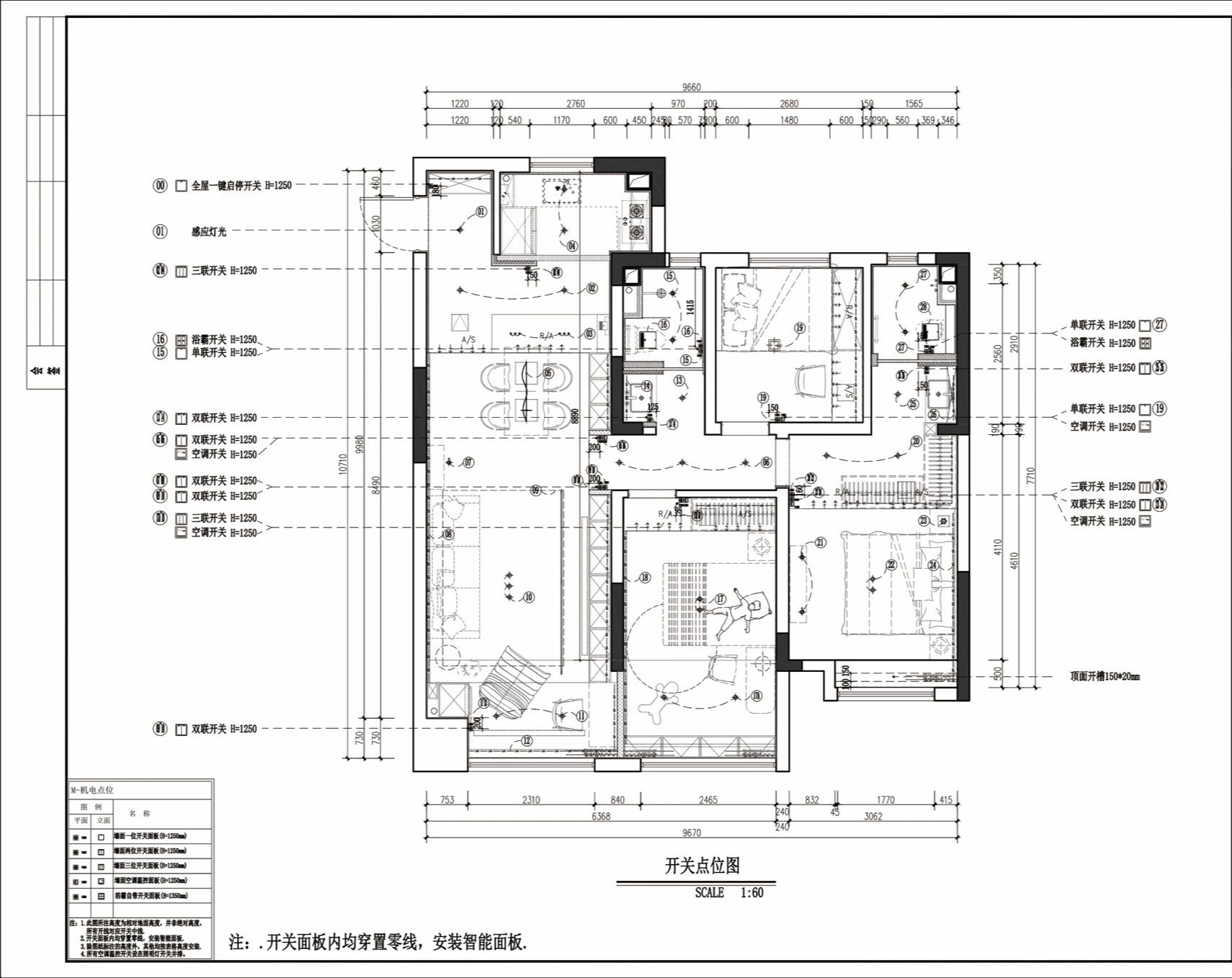
灯具点位图
磁吸轨道灯安装方法
黑色乳胶漆灯槽装射灯,侧面看就是见光不见灯宽度120 深度40 灯开孔75吊顶的时候做个凹槽,宽度深度根据自己选的灯留,后期刷漆的时候灯槽里刷成黑色的,选用防炫光的黑杯杯边36射灯