装修案例
灵感美图
找设计
找工长
看工地
记住密码
我已阅读并同意注册协议
发布话题
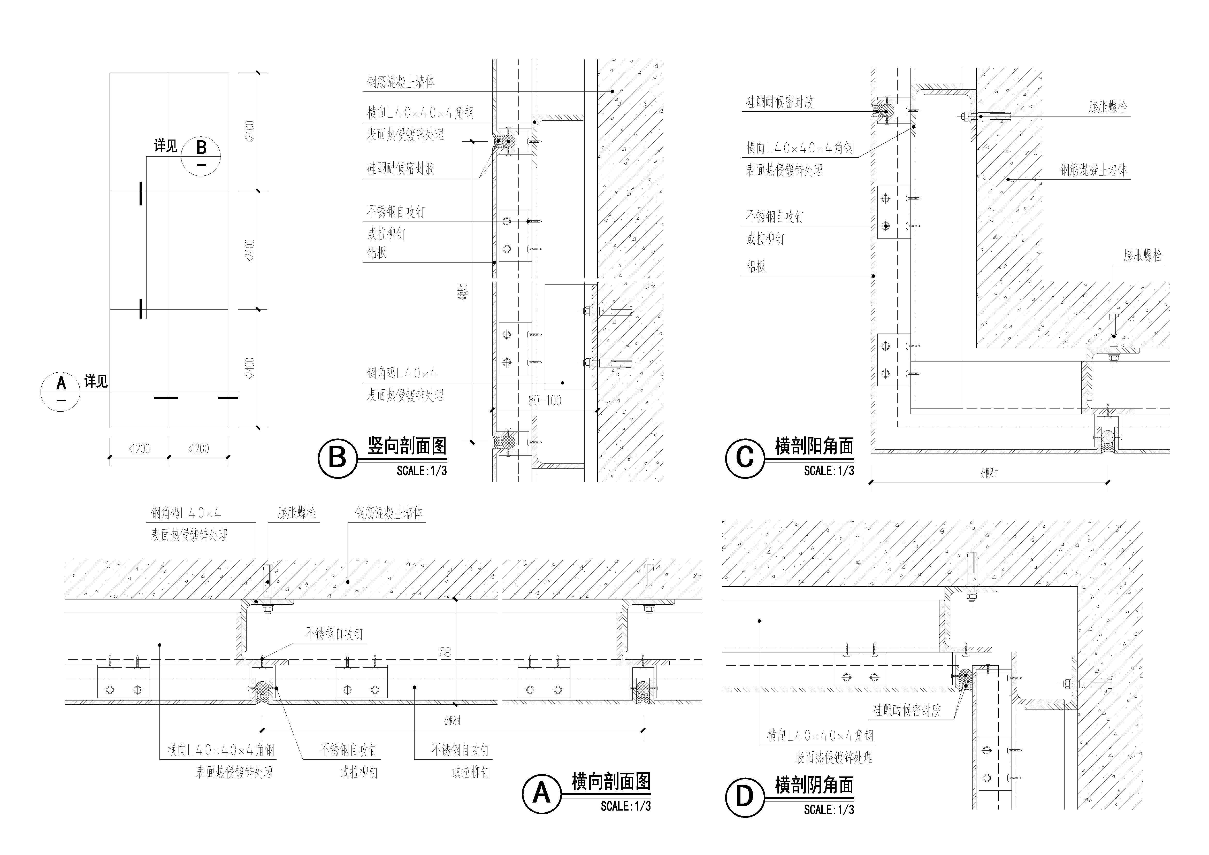
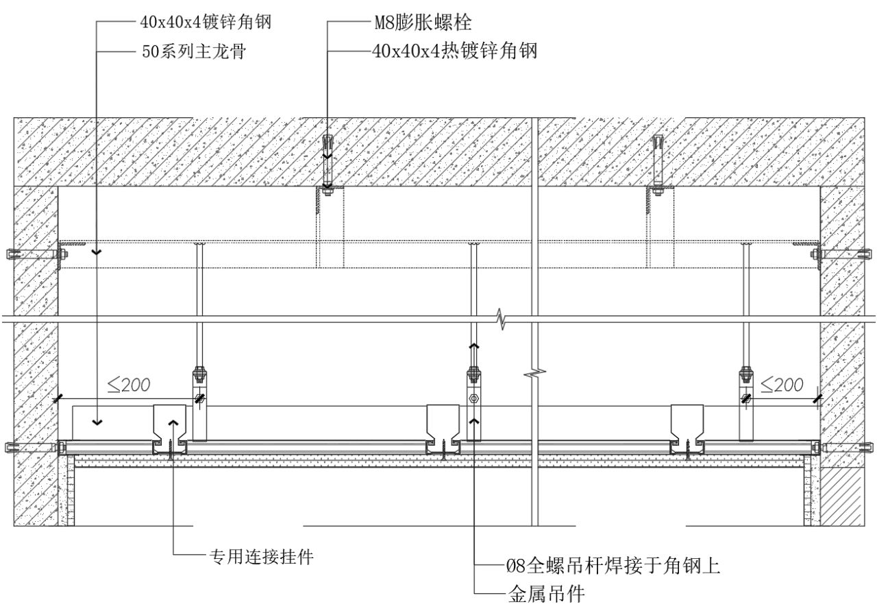
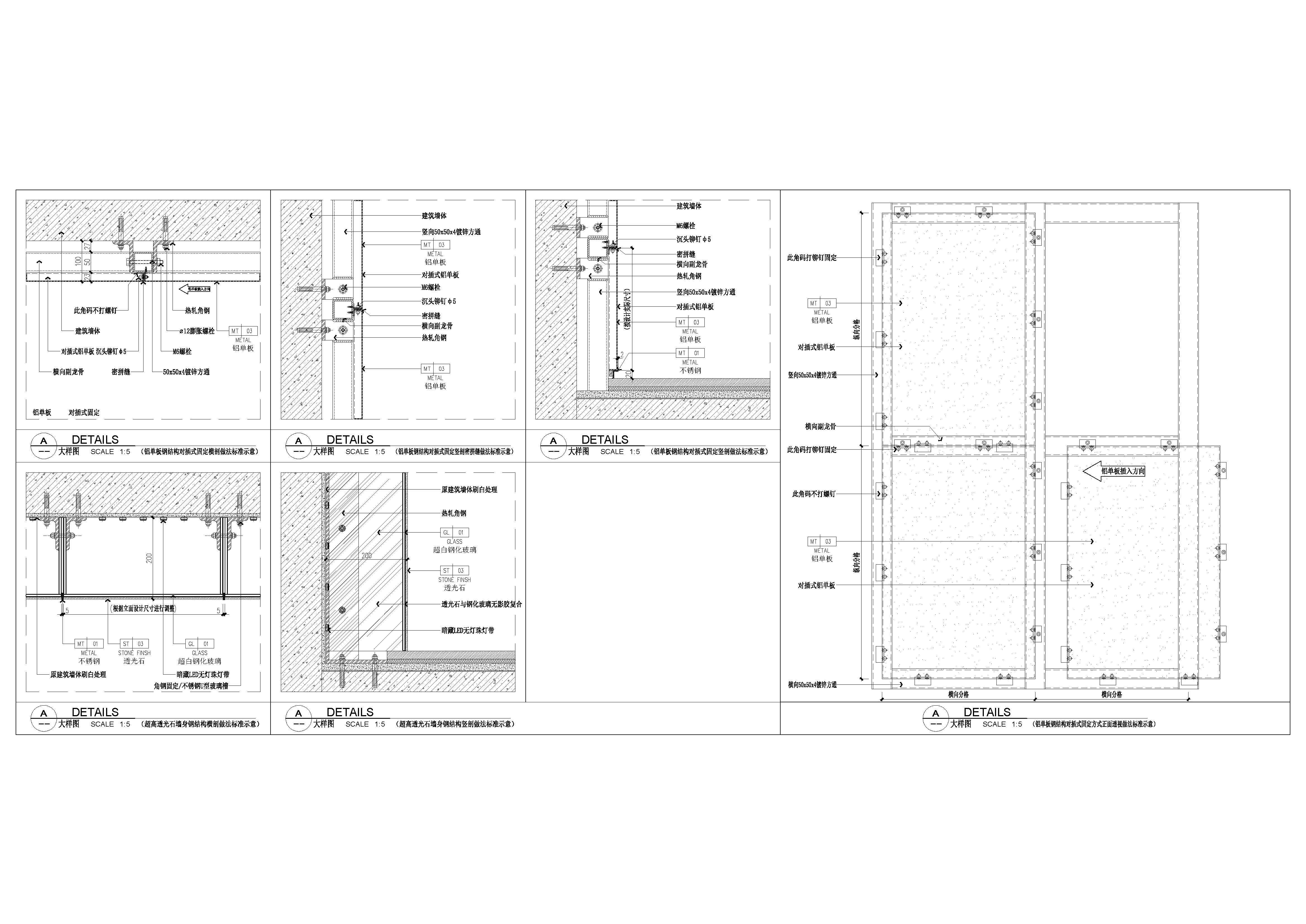
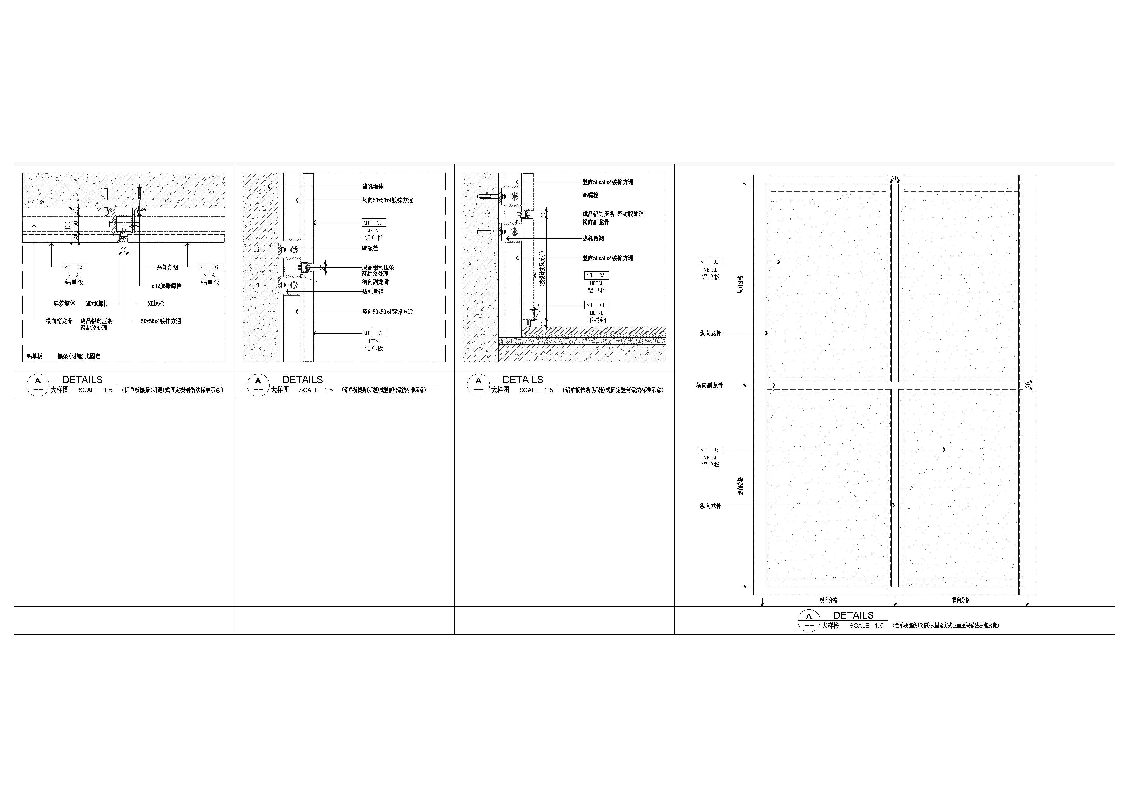
墙身大样|铝单板及蜂窝铝板墙面安装工艺
铝单板作为一种现代且广泛应用的建筑内部装饰材料,以其独特的金属质感、优良的物理性能及灵活的设计潜力,在高端商业空间、酒店大堂、办公区域及家居装饰中占据了重要地位。
叠级工艺尺寸
水磨石节点
极窄边线型灯带吊顶
转换层节点图
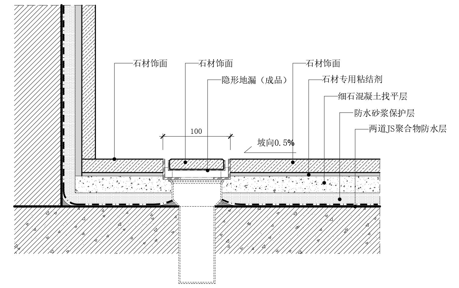
无障碍过门石节点
楼梯安装示意图