当前位置:首页 > 户型图分析

#标准施工#

阅读 143058 | 粉丝 143058

  • 小筑 / 设计师

    2024年11月09日 21:47:46

    + 关注
    #标准施工#

    骨骼线工艺        

  • 小筑 / 设计师

    2024年11月09日 18:52:46

    + 关注
    #标准施工#

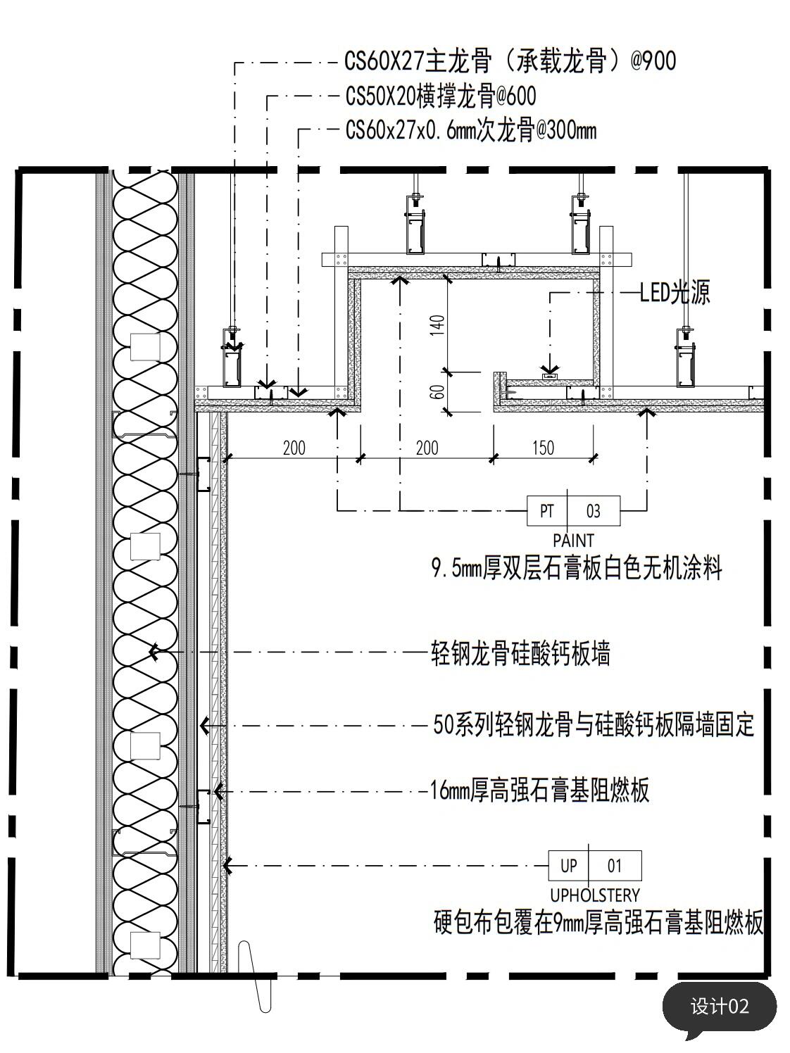
    墙身灯带大样尺寸图        

  • 小筑 / 设计师

    2024年11月09日 06:53:55

    + 关注
    #标准施工#

    壁布硬包节点图        

  • 小筑 / 设计师

    2024年11月08日 19:16:58

    + 关注
    #标准施工#

    阶梯式斜面吊顶做法        

  • 小筑 / 设计师

    2024年11月08日 19:10:45

    + 关注
    #标准施工#

    分享几个不同的会议室的设计深化方案~
    会议室的布置和设计原则
    1:舒适性原则
    要确保参会人员坐在椅子上感觉舒适,椅子的高度、椅背的角度等都要符合人体工程学。会议桌的尺寸也要合适,避免参会人员感觉拥挤,要有足够的腿部空间。同时,室内的温度和湿度要保持在一个舒适的范围内,一般温度控制在 22 - 24 摄氏度,湿度在 40% - 60% 左右。
    2:功能性原则
    会议室的布置要以满足会议功能需求为首要目标。视听设备要安装在合适的位置,方便使用和观看。例如,投影仪要安装在合适的高度和角度,确保投影画面在屏幕上的显示效果良好。会议桌的布局要考虑发言和交流的便利性,例如,设置足够的电源插座和网络接口,方便参会人员使用电子设备。
    3:美观性原则
    会议室的整体设计要美观大方。墙面的颜色可以选择柔和、中性的色调,如米白色、淡蓝色等,这样可以营造一个宁静、舒适的氛围。地面可以采用地毯或者木地板,减少脚步声和噪音。室内的装饰可以包括一些绿植,不仅可以美化环境,还可以改善空气质量。同时,会议桌、座椅等家具的款式要相互协调,与整体的装修风格一致。        

  • 小筑 / 设计师

    2024年11月07日 23:38:10

    + 关注
    #标准施工#

    木纹不锈钢,斜面造型        

  • 小筑 / 设计师

    2024年11月06日 17:40:43

    + 关注
    #标准施工#

    灯|天际线灯科普及安装工艺
    天际线灯是一种21世纪产物:一条非常薄具有现代感十足的线性灯,它利用钢条承载灯带,两点一线似划破天际的一道璀璨光线,在空间中呈现一条会发光的直线效果。
    纵横交错间,施展光影魔法,回归本质的魅力流线感灯光,摒弃多余的常见浮夸,还原光的延伸。
    自由天际线有三种照明方式,包括直接照明、间接照明和洗墙照明。
    直接照明是灯光向下照射,不经反射直接照亮房间,光线通透明亮;
    间接照明是灯光向上照射天花板,再由天花板反射,间接照亮房间,光线柔和不刺眼;
    洗墙照明是灯光照射在墙面上,使墙上的装饰更加清晰美丽。使光源更加具象化,呈现简约之作。        

  • 小筑 / 设计师

    2024年11月06日 17:00:39

    + 关注
    #标准施工#

    室内工艺|发光艺术玻璃隔断屏风节点大样
    不锈钢艺术玻璃隔断
    发光玻璃屏风
    发光不锈钢玻璃隔断
    明框及隐框玻璃隔断
    墙体背面暗藏灯洗光        

发布话题

公开