当前位置:首页 > 户型图分析

#标准施工#

阅读 142127 | 粉丝 142127

  • 邓雄飞@质量官 / 客服

    2023年03月23日 11:49:25

    + 关注
    #标准施工#

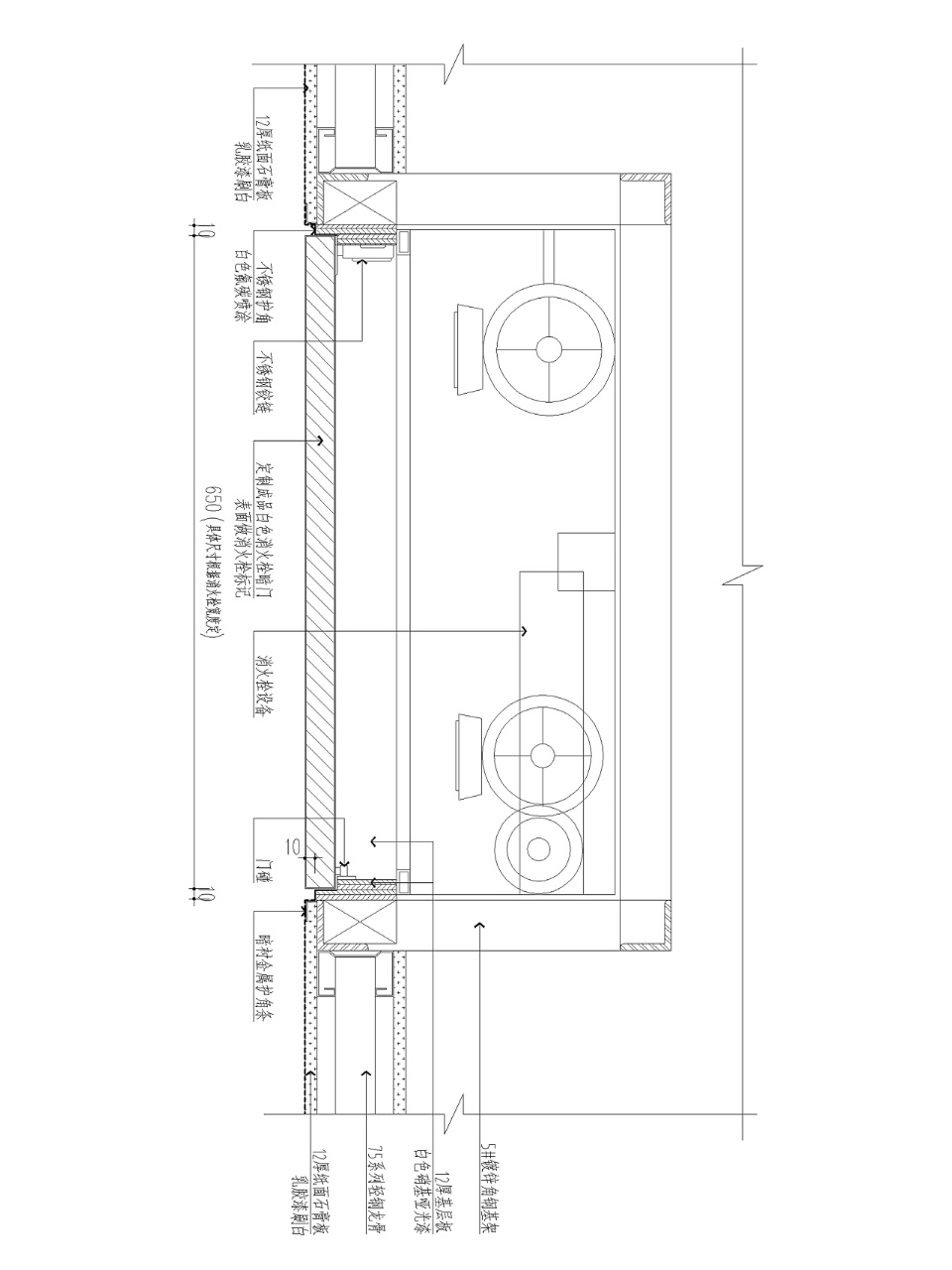
    水泥空心砖半高固定(现场深化)|||水泥砖墙砌法多样,常见以直铺累砌为主,该项目采用半高水泥空心砖墙,用常规水泥砂浆粘贴做法抗碰撞强度不够,因此需采用加固做法
    1,砌筑墙体需在建筑结构横梁上方,使用150*300*8mm铁板加M10膨胀螺栓固定在基层
    2,近1M间距采用5mm镀锌钢板竖向固定,横向穿插钢板锁定
    3,水泥空心砖表面最佳为光面,在砖表面和砌体之间的勾缝采用同样环氧漆        

  • 林小军 / 设计师

    2023年03月23日 11:33:48

    + 关注
    #标准施工#

    格栅板墙装插座        

  • 小筑 / 设计师

    2023年03月23日 11:29:23

    + 关注
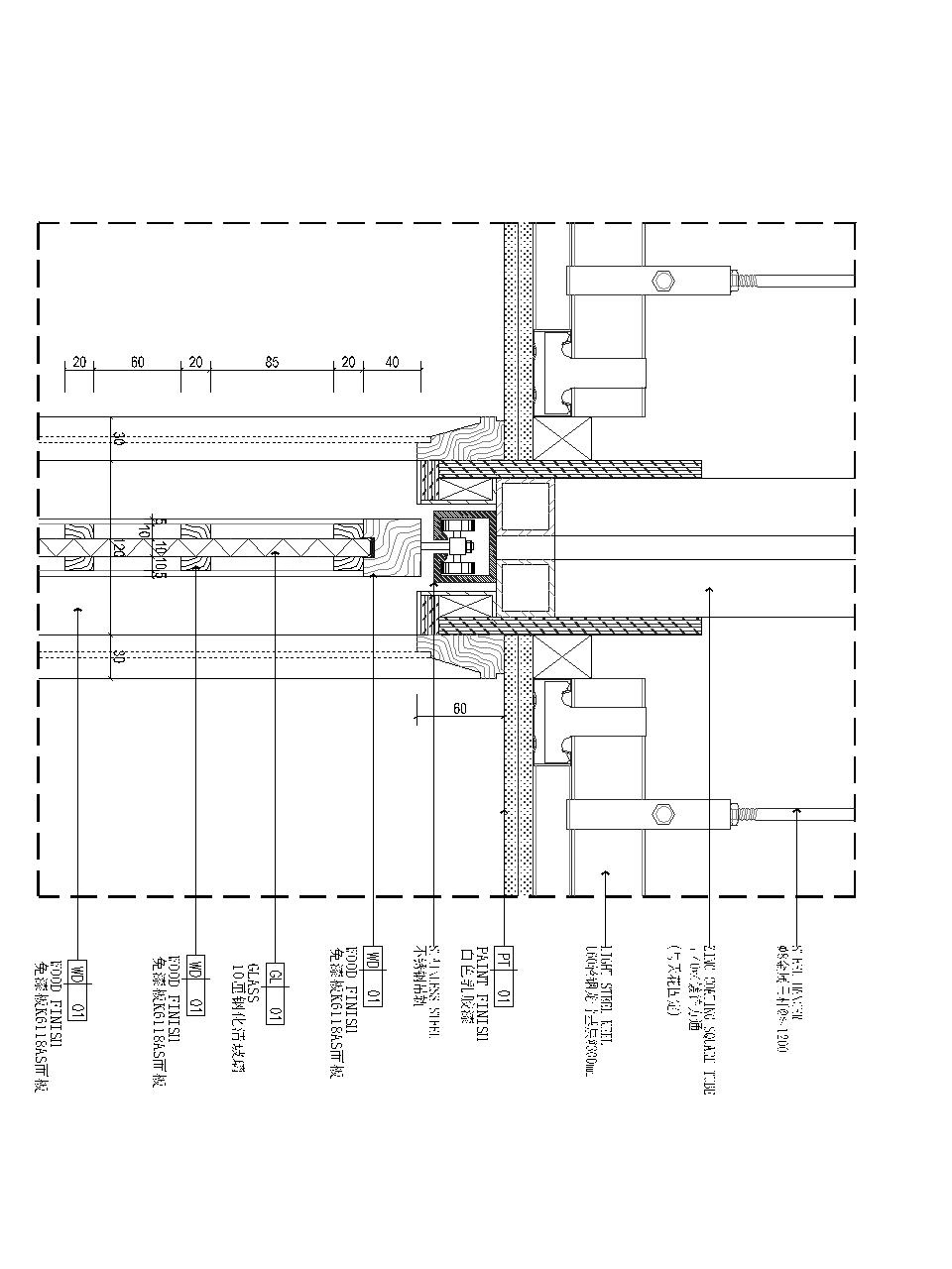
    #标准施工#

    内嵌式推拉门与暗门节点图        

  • 邓雄飞@质量官 / 客服

    2023年03月23日 10:42:29

    + 关注
    #标准施工#

    口袋门施工工艺        

  • 小筑 / 设计师

    2023年03月23日 10:24:44

    + 关注
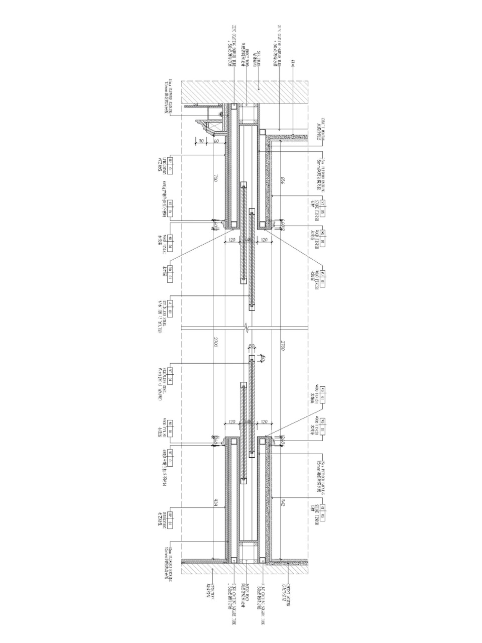
    #标准施工#

    轨道窗帘安装节点图        

  • 小筑 / 设计师

    2023年03月23日 09:53:51

    + 关注
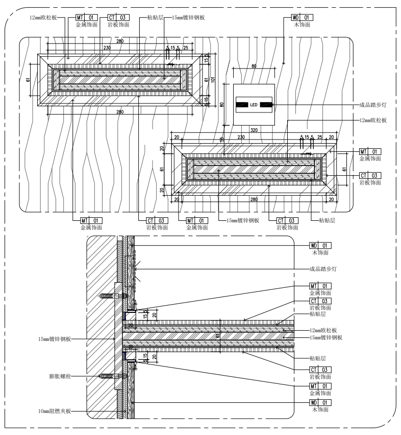
    #标准施工#

    悬浮楼梯节点图        

  • 邓雄飞@质量官 / 客服

    2023年03月23日 09:34:21

    + 关注
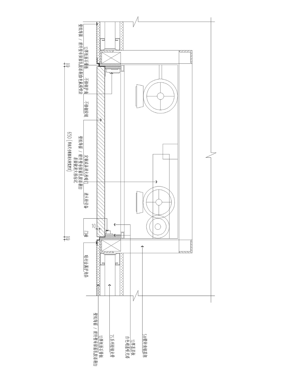
    #标准施工#

    极简淋浴间干湿分离设计,现较为方便的处理方法,是使用下沉式淋浴间定制成型的石材挡水线。
    特点:采用石材一体成型,减少渗水点,阳角磨圆边处理,安装施工简便。
    卫生间干湿分离常见的处理方法有以下三种:
    a、传统凸出挡水条,施工简单,但容易被绊倒。
    b、瓷砖收口,美观性好,但阳角容易出现崩角的情况。
    c、新型成品石材挡水条,施工简单,具有一定的美观性。        

  • 蓦兰 / 设计师

    2023年03月22日 20:54:35

    + 关注
    #标准施工#

    「冰裂纹铺贴施工工艺」
    1.材料选择、加工
    石材表面应光洁、平整,质地坚固;将大板石材切割成冰裂 形状的小块;将加工好的板材浸水湿润,并阴干备用。

    2.基层处理
    将基层表面清扫干净,均匀洒水湿润后刷一层素水泥,水灰 比控制在0.4~0.5之间,刷的素水泥浆须均匀且不宜过厚;一 次面积不宜过大,边铺边刷。

    3.标高控制线
    水准仪控制标高放坡,拉控制线。

    4.铺砂浆找平层
    在素水泥浆上铺2~4cm厚的M7.5干硬性水泥砂浆,至高出完 成面2~3cm,用灰匙拍实抹平(一般配比是1:3,不泌水为准 );冰裂立铺应使用纯水泥膏,先对结构层做抹灰、批荡, 找平后进行铺贴。

    5.试铺
    把切好的石板按顺序预铺,石板对准方位后,用橡皮锤震敲 中部,震实砂浆层至预期完成面标高后,将石板掀起,检查 砂浆表面与石材底部是否完全吻合,如有空鼓凹陷,立即用 砂浆补平。

    6.铺贴
    在石板背面满浆抹3~5mm水泥膏,石板对准方位后,平放至 砂浆层,保证拼缝大小一致(密缝铺不能大于2mm,疏缝铺 5~8mm为宜,嵌草除外),再用橡皮锤震敲石板至完成面, 用手扫一遍拼缝,验证拼接接茬平整度:部分材料应该在铺 贴后进行毛边处理,再进行下一步勾缝工序。

    7.勾缝、清洗
    铺贴完24小时后,检查石板有无断裂、空隙,并用石材调 和色水泥膏勾缝,保证勾缝平直、饱满、深浅一致;待到 勾缝完成后,用毛刷配合湿润海绵大面积清扫石材表面水 泥污渍;覆盖保护,24h严禁行人。        

发布话题

公开