当前位置:首页 > 户型图分析

#标准施工#

阅读 142125 | 粉丝 142125

  • 小筑 / 设计师

    2023年03月28日 10:43:30

    + 关注
    #标准施工#

    隐形门工艺        

  • 小筑 / 设计师

    2023年03月26日 22:06:58

    + 关注
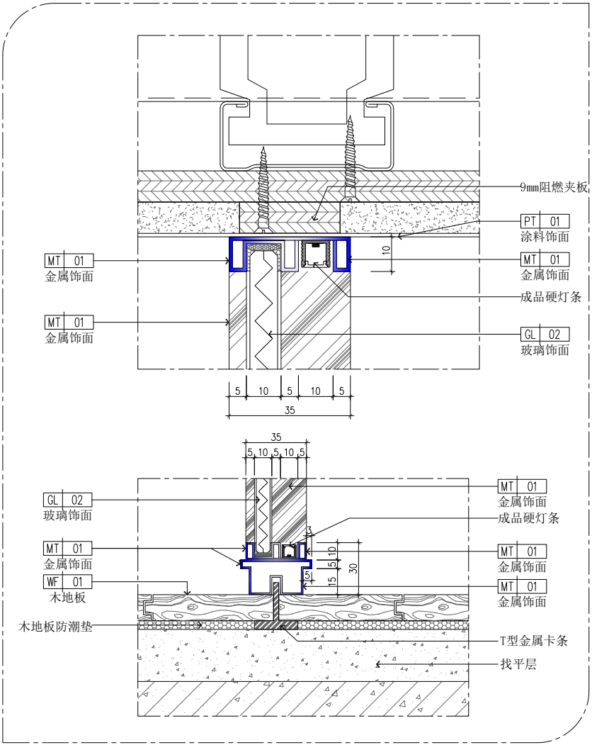
    #标准施工#

    金属屏风节点图        

  • 小筑 / 设计师

    2023年03月26日 18:31:31

    + 关注
    #标准施工#

    超详细的极简隐形门节点图,直接抄作业
    这种门颜值高,但工艺较为复杂,门框需提前预埋,需要设计师、木工、瓦工、门厂家多次对接,对施工工艺要求比较高。
    有极窄的0mm宽度门框漏出来,非常具有线条感。
    施工步骤如下:
    先将门洞平直度和竖直度误差调整到3mm以内,可以使用基层板或者粉刷石膏找平;
    植入角码,安装调平门框,并安装门扇,外部石膏板插入前套框,部分石膏板为了契合还需要裁切。外贴网格布,用腻子粉进行2-3遍修补并打磨,将基层处理好;
    按照相应材料进行后续施工,完成后对与门框交接处进行精细修补。        

  • 邓雄飞@质量官 / 客服

    2023年03月26日 12:49:55

    + 关注
    #标准施工#

    用水洗石做围墙

    重拾老工艺,用水洗石/水刷石打造自然风小院。
    师傅称重、配比、批墙、刷洗。高颜值水刷石墙面呈现        

  • 邓雄飞@质量官 / 客服

    2023年03月25日 21:28:19

    + 关注
    #标准施工#

    玻璃隔断预埋金属槽        

  • 邓雄飞@质量官 / 客服

    2023年03月25日 21:25:23

    + 关注
    #标准施工#

    红砖墙体厚度|砖墙尺寸
    新砌红砖墙体以后,水泥粉平需要红外线灰饼找平,水平打到1.5公分,就是墙体水泥粉平单面厚度增加1.5公分,如果双面粉平就是加3公分,后面验收需要拿两米长大靠尺来查看墙面是否平整,误差不要能大于3毫米,大家砌完墙体以后,在侧面用尺量出精确尺寸,看看师傅是否有偷工减料
    尺寸误差和施工流程很容易看出来师傅有没有经验,是不是捣浆糊的。
    很多师傅以为墙体砌好了随便粉一粉就好了,让后面油漆工冲筋找平,假设油漆工也没有找平呢,定制柜厂家又说你们墙体不平,你去找谁        

  • 边洪镇

    2023年03月25日 19:03:48

    + 关注
    #标准施工#

    工地安装施工        

  • 小筑 / 设计师

    2023年03月25日 16:35:14

    + 关注
    #标准施工#

    五种线性灯布置        

发布话题

公开