装修案例
灵感美图
找设计
找工长
看工地
记住密码
我已阅读并同意注册协议
发布话题
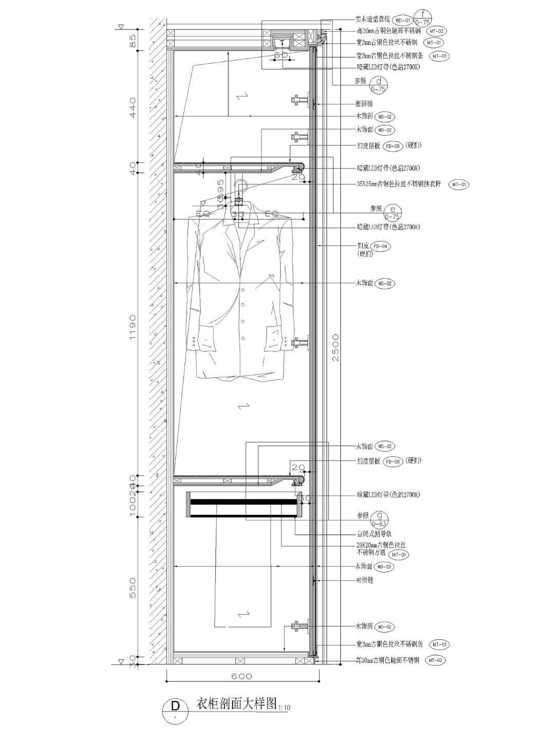
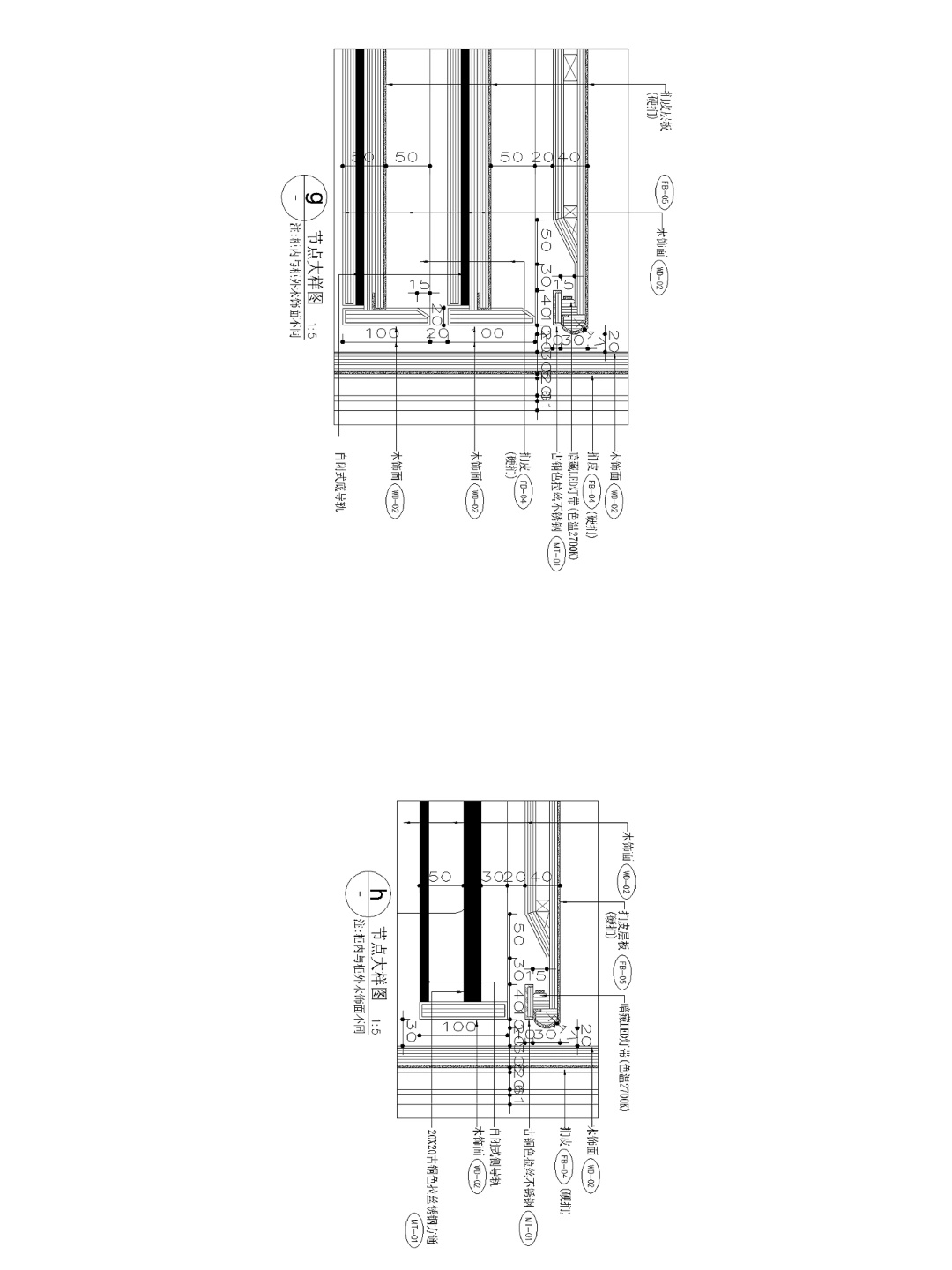
衣柜图纸
铝单板造型墙
办公室施工现场
混凝土墙石材干挂做法
门厅完工
反光灯槽三种安装形式
发光(玻璃)服务台细节做法分享
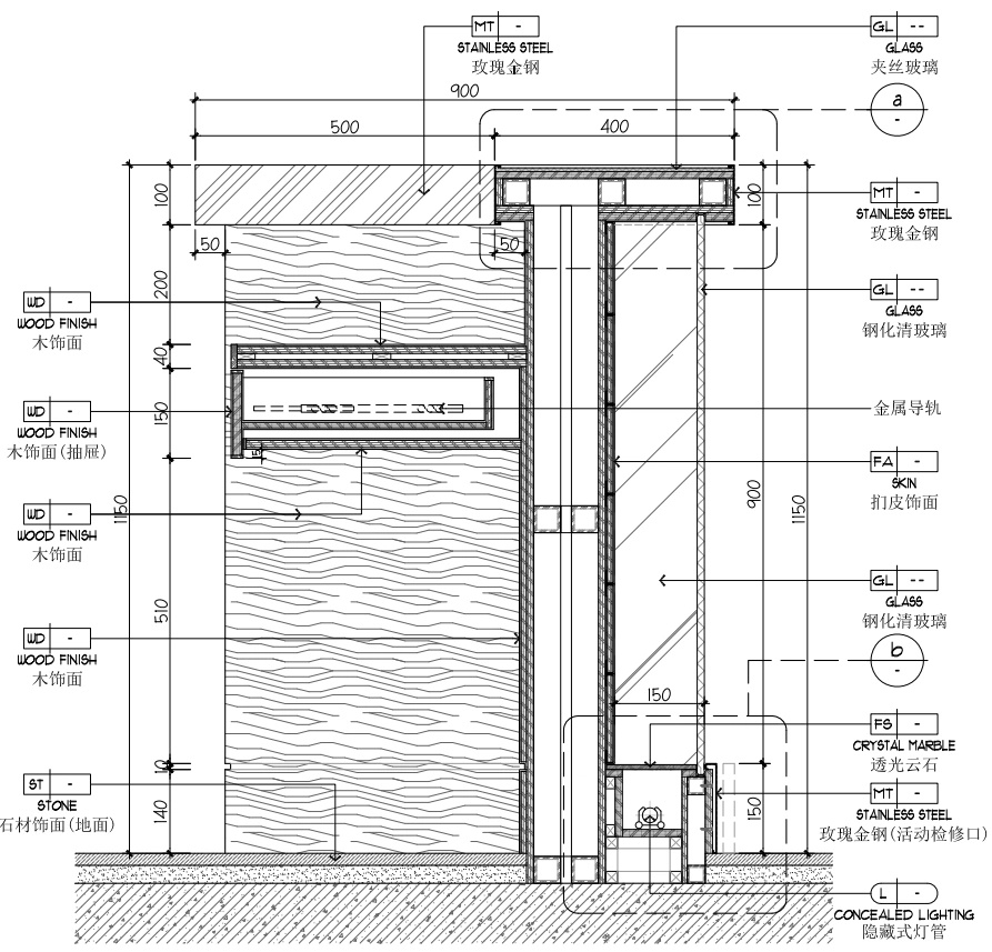
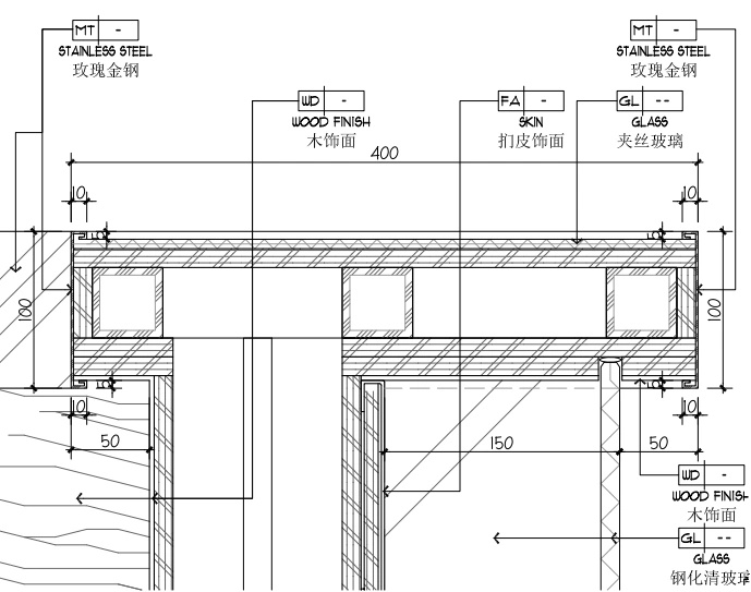
梳妆台与衣柜尺寸图