当前位置:首页 > 户型图分析

#办公智造#

阅读 962738 | 粉丝 962738

  • 夏毅 / 设计师

    2024年08月30日 21:05:58

    + 关注
    #办公智造#

    落地        

  • 小麦庆 / 设计师

    2024年08月30日 15:08:48

    + 关注
    #办公智造#

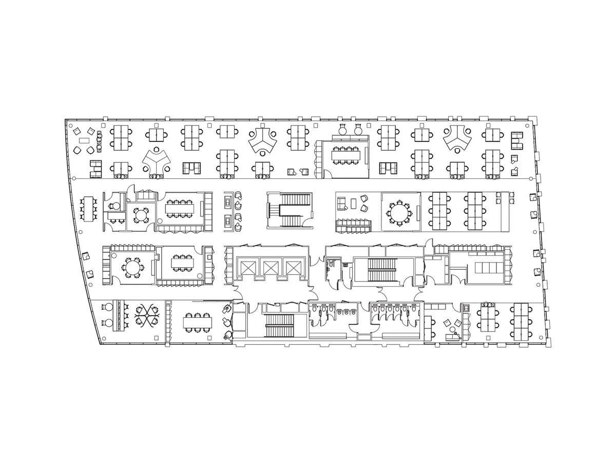
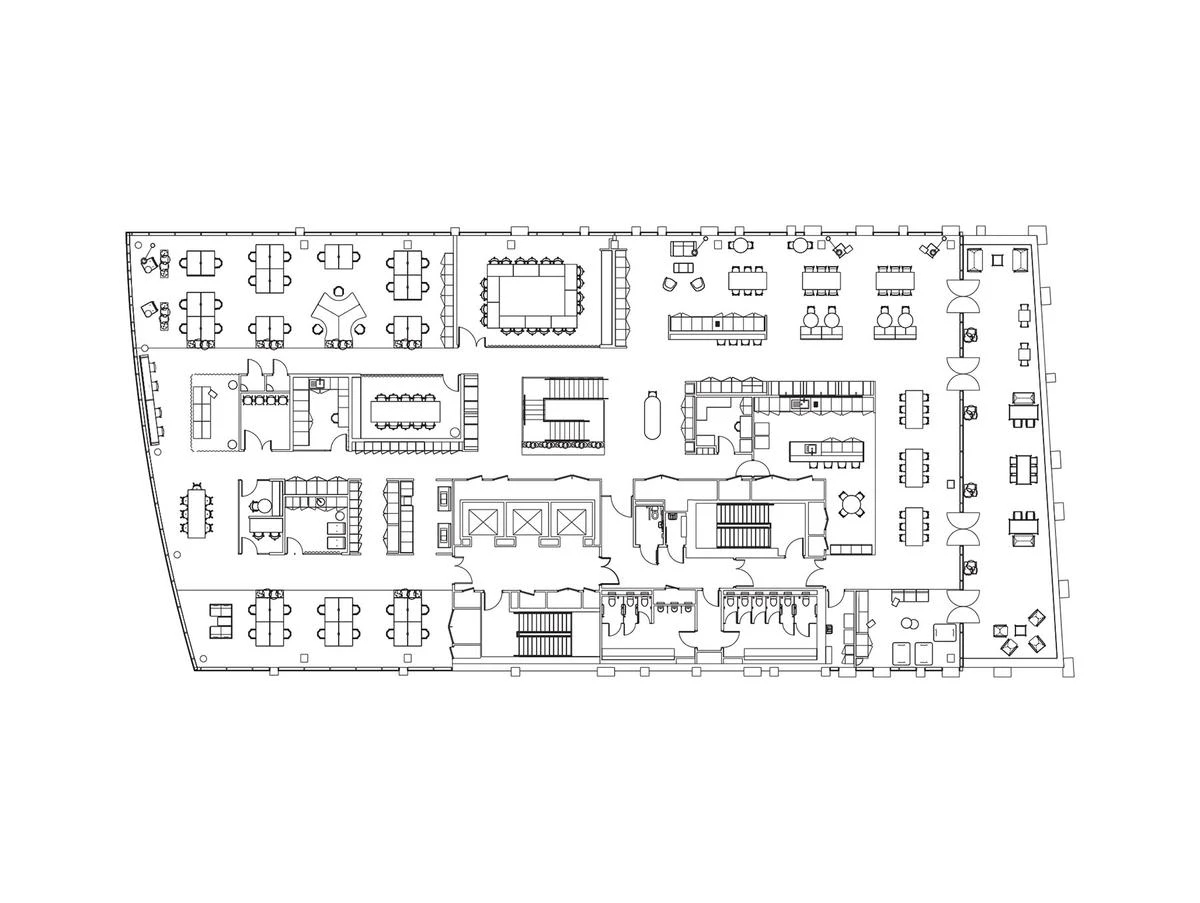
    门厅入口不设前台,消弭公私社交的边界。以更年轻更开放性的姿态迎接访客,向外输出其理念和经营策略,在空间里形成疏阔愉悦的办公生态,一个更有益于创意发生的高效工作场所。使用自然纹理材质,打造纯净简单而又不失细节的接待空间,配以简练的LOGO橙色线条和造型沙发,增加了空间个性的层次与细节,LED屏与顶部配置的灯光为信息发布、打卡拍照提供了条件。移步进入主要的开放办公区,以空间为媒介,通长的书架与趣味的办公家具,标记了阅读与洽谈的区域,作为思想载体的书籍为员工提供了知识的海洋,陪伴员工成长。        

  • 小麦庆 / 设计师

    2024年08月30日 15:06:46

    + 关注
    #办公智造#

    办公区规划了丰富的场景,包括卡座区、小型开放协作区、封闭会议室、电话亭和培训空间等等,为各种工作内容提供支持。                

  • 朴素 / 设计师

    2024年08月30日 14:38:51

    + 关注
    #办公智造#

    奕力办公楼空间设计        

  • Tina.baby / 设计师

    2024年08月30日 09:28:54

    + 关注
    #办公智造#

    在这处新总部,巴斯夫采用了灵活的工作策略,允许员工部分时间在家办公,部分时间在办公室采用共享办公桌。这不仅大大减少了物业足迹和能源消耗,还通过提高灵活性改善了员工的福祉。此外,巴斯夫还希望更多地使用公共交通工具上下班,同时利用市中心的便利设施带来社会和经济效益。在巴斯夫全球战略和 “未来工作”理念的推动下,新总部的设计秉承了巴斯夫的核心价值观——敏捷、赋能、数字化和协作。        

  • Tina.baby / 设计师

    2024年08月30日 09:26:02

    + 关注
    #办公智造#

    在巴斯夫全球战略和 “未来工作”理念的推动下,新总部的设计秉承了巴斯夫的核心价值观——敏捷、赋能、数字化和协作。办公室分上下两层,中间新建了一道连接楼梯,便于偶遇和灵感碰撞。除了个人和团队办公空间以及会议室外,这里还有图书区、游戏区、健身室、灵活的咖啡厅和一个通向户外超大露台的活动空间。        

  • Tina.baby / 设计师

    2024年08月30日 09:24:28

    + 关注
    #办公智造#

    设计团队对以巴斯夫生产的原材料制作的装修饰面、材料和家具进行了研究。随后,在整个项目中指定使用这些产品,因为,研究证明这些产品的来源是低能耗和可持续的。团队内部牢固的工作关系克服了项目进程中出现的许多挑战,包括设计团队提出的将两个楼层连接起来以改善员工之间的联系的建议。建筑原有的结构基础设计并不容易实现开放式连接,但我们共同找到了一个解决方案,既平衡了所有技术和防火限制,又实现了最初提出的设计和美学要求。        

  • 小敏island / 设计师

    2024年08月30日 09:19:29

    + 关注
    #办公智造#

    办公空间设计赏析(1)        

发布话题

公开