当前位置:首页 > 户型图分析

#办公智造#

阅读 962737 | 粉丝 962737

  • Diana / 设计师

    2024年08月29日 22:34:42

    + 关注
    #办公智造#

    4F服务中心、实验室共享户外运动露台 | 四层利用卫光A、B栋露台的自然景观和光线,设置亲和便捷的SMART服务中心,结合落地玻璃和阳台设计,最大化引入自然光与户外景观。        

  • Diana / 设计师

    2024年08月29日 22:33:34

    + 关注
    #办公智造#

    实验室以色彩铺排具有序列感的点线面表达,打造出严谨精妙的空间质感。定制LOGO的天花设计与实验家具的模块化配套实现了空间界定、管道遮蔽与美观实用的目的。        

  • Diana / 设计师

    2024年08月29日 22:27:45

    + 关注
    #办公智造#

    外围PI办公区与茶歇区、电话亭等微环境明亮舒适、动静相宜,促进积极开放的社交与学术互动,为研究人员交流与潜在合作提供战略“催化剂”。        

  • Joan 王怡琼 / 设计师

    2024年08月29日 22:05:01

    + 关注
    #办公智造#

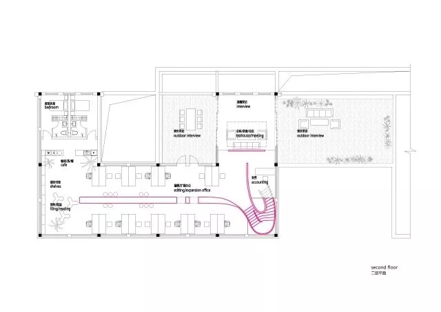
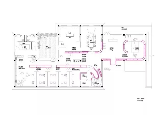
    虽然基地拥有良好的室外自然景观条件,但原有建筑内部阴暗压抑:已有结构的1层层高3.3m,梁下高度2.6m, 空间比例相对低矮;2层空间的高度具有优势,但1,2层的联系较弱,原有建筑的双层特点也并没有展现出来。因此设计一开始考虑的是如何让上下层联系起来,不只是在空间上,也是在未来使用者的心理感知层面上。让楼上和楼下的人都能感觉另一部分成员的存在,营造出团队感。在氛围上希望营造出完全开放,具有空气感的流动空间。不止是单层平面的流动,还是上下层之间的流动感。如果我们把空间里的家具看成物体(object),把墙体,楼梯等结构看成背景(canvas),通过让家具(object)和结构(canvas)同化,连接,与人的身体最易发生关系的家具就会把这种流动感传递给人体。楼上的空间因为结构和家具的同化,也与楼下联系在一起。        

  • Joan 王怡琼 / 设计师

    2024年08月29日 22:03:19

    + 关注
    #办公智造#

    整个方案在空间划分上没有新建任何常见的隔断墙,而是采用轻质的家具格柜配合半透明的1cm厚阳光板组成新的空间划分体系。家具和楼梯,扶手,吧台等共同组成一个隔断系统。        

  • 筑先生 / 客服

    2024年08月29日 21:57:35

    + 关注
    #办公智造# 办公室装修|设计方向

  • 筑先生 / 客服

    2024年08月29日 21:56:15

    + 关注
    #办公智造# 办公分项工程

  • Design 陈 / 设计师

    2024年08月29日 20:48:14

    + 关注
    #办公智造#

    办公空间设计
    作为一个传统行业的办公空间,又是在老房子的改造,在某些方面是限制设计的发挥和实现,但我们可以在条件允许之内寻找新的方向和突破。
    大面积的透光隔断在划分工作区域的同时增强互动性,每个空间都不至于太孤立。在维持传统的同时增强时尚感,大环境色泽淡雅朴素,却有各种材料质感搭配,相得应彰。商务、稳重、时尚、是设计的方向与主题。        

发布话题

公开