当前位置:首页 > 户型图分析

#办公智造#

阅读 962365 | 粉丝 962365

  • 木子李 / 设计师

    2024年08月31日 22:26:48

    + 关注
    #办公智造#

    接待区色彩主要以暖色为主,加以墙面的挂画作为点缀,茂绿的盆栽更加使得空间具有生机感。在空间内加入绿植,在自然和光影变幻之间找到对心灵的冲击,为员工提供了一个轻松舒适的工作环境。开放办公区采取玻璃隔断的形式,采光好,为促进室内多样性,整体空间设计通过使用颜色、纹理、挂饰和几何形状,统一了色彩和线条,在形式与功能、风格与舒适、休闲与专业之间创造了完美平衡。董事长办公室设计现代感十足,装饰陈设上色调简洁统一,为办公区域提供了一个美观、实用的空间。超大落地窗保障了区域采光,低饱和度的灰色摆件、抱枕以及桌面相互协调,一扫大面积的沉闷。        

  • 木子李 / 设计师

    2024年08月31日 22:25:23

    + 关注
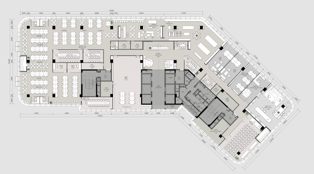
    #办公智造#

    平面布局图        

  • Hino / 设计师

    2024年08月31日 20:45:13

    + 关注
    #办公智造#

    项目深研办公方式、色彩材质、功能主义三大密码,以“简约、高效、舒适”为核心理念,重视实用功能和空间组织,注重发挥建筑结构本身的形式美,讲究材料质地和色彩的巧妙搭配,旨在打造一个既符合现代办公需求,又兼具美观与实用性的办公环境。        

  • 曹杨Young / 设计师

    2024年08月31日 09:25:31

    + 关注
    #办公智造#

    小办公空间设计赏析        

  • 江北梅郎 / 设计师

    2024年08月31日 08:58:33

    + 关注
    #办公智造#

    永庆建设办公空间设计效果图        

  • 敏颜 / 设计师

    2024年08月31日 08:53:57

    + 关注
    #办公智造#

    复式办公空间(1)        

  • 敏颜 / 设计师

    2024年08月31日 08:52:10

    + 关注
    #办公智造#

    复式办公空间(2)        

  • Design 陈 / 设计师

    2024年08月31日 08:05:21

    + 关注
    #办公智造#

    IBM办公楼(1)        

发布话题

公开