当前位置:首页 > 户型图分析

#办公智造#

阅读 961706 | 粉丝 961706

  • 陈澄 / 设计师

    2024年09月06日 19:44:55

    + 关注
    #办公智造#

    办公空间设计效果图        

  • Marienn杨恩惠 / 设计师

    2024年09月06日 19:41:47

    + 关注
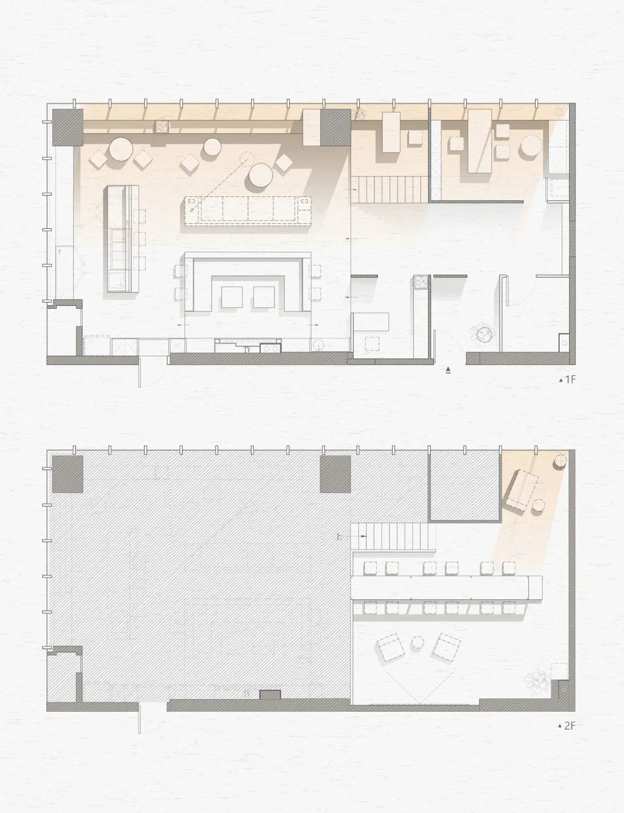
    #办公智造#

    复式办公空间        

  • Joan 王怡琼 / 设计师

    2024年09月06日 19:40:34

    + 关注
    #办公智造#

    半开放式办公室,界而不隔。思维碰撞,灵感交融,工作与休闲无缝切换,思想火花自由碰撞,驻足与交谈,都是对酒文化的新探索。        

  • 小麦庆 / 设计师

    2024年09月06日 12:22:29

    + 关注
    #办公智造#

    前台整体布局简洁大气,以大理石为主材质,其细腻的纹理与温润的质感,为空间注入了简奢与优雅的气息。背景墙以温润石材铺陈,配以金属元素点缀,精致而不失厚重,隐藏式灯带铺洒的光晕与石材的雅奢相映成辉,光影在空间中流转,赋予整个空间深邃而丰富的层次感,灰色大理石地面如点点墨痕氤氲水中,简约里蕴含无限深邃意境。        

  • 小麦庆 / 设计师

    2024年09月06日 12:20:44

    + 关注
    #办公智造#

    石材的天然纹理在光影的变幻中宛若悠远静谧的画卷,凝练出空间的隽永与沉稳。走廊设计下笔利落,却在层次的交错中展现出空间的立体诗意,金属材质的嵌入在呈现奢华质感的同时,与石材的温润触感形成完美对比,尽显和谐之美。细节的精雕细琢,材质间的精妙呼应与空间的巧思布局,共同营造出一个简约与奢华共生的艺术空间。        

  • 小麦庆 / 设计师

    2024年09月06日 12:17:22

    + 关注
    #办公智造#

    整个会客空间以柔和的中性色为基调,墙面的细腻质感在光影间透出微妙的光泽,与深色木饰面形成了深邃而富有层次的对比,赋予空间静谧而庄重的氛围,灯光柔和地描摹出空间的轮廓线,营造温暖而恬静的光影效果。精致的天然木材,搭配柔和的中性色调,空间仿佛在诉说着内敛而深邃的气质,宛如智者的沉思。线性灯带设计,以简约之美勾勒出光影的韵律,营造出既充满现代感又富有美学意蕴的会议交流空间。        

  • 小麦庆 / 设计师

    2024年09月06日 12:13:28

    + 关注
    #办公智造#

    开放式办公区域,我们秉持极致简约与精致并存的理念,精雕细琢,构筑出一处功能性与美学高度契合的工作场域。大面积的落地窗引入充盈的自然光,嵌入式照明系统与之浑然一体,光线均匀洒落,将外界的生机盎然与内里的静谧有机结合,同时,工位布局经过精心规划,秩序与舒适在顷刻间达到绝妙平衡。茶水间以木质饰面为基调,纯白石材台面的简洁之美在光影的交织中显得格外清雅。极简吊灯散发出柔和的光晕,营造出温馨且充满现代的气息。室外或是藤编或是木质的户外家具与葱郁绿植相映成趣,形成与自然融为一体的静谧之地,令人于此间得到心灵的放松与平衡,人文关怀与空间美学深度融合。        

  • 乌拉西 / 设计师

    2024年09月06日 09:22:48

    + 关注
    #办公智造#

    冠菱楼宇办公展示空间        

发布话题

公开