当前位置:首页 > 户型图分析

#办公智造#

阅读 961703 | 粉丝 961703

  • Diana / 设计师

    2024年09月06日 06:08:29

    + 关注
    #办公智造#

    效果图(1)        

  • Diana / 设计师

    2024年09月06日 06:06:47

    + 关注
    #办公智造#

    效果图(2)        

  • Diana / 设计师

    2024年09月06日 06:05:21

    + 关注
    #办公智造#

    落地(1)        

  • Diana / 设计师

    2024年09月06日 06:04:08

    + 关注
    #办公智造#

    落地(2)        

  • Camille yu / 设计师

    2024年09月05日 22:31:30

    + 关注
    #办公智造#

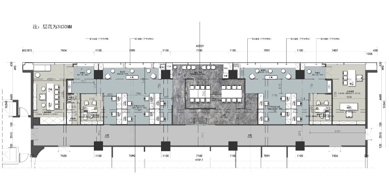
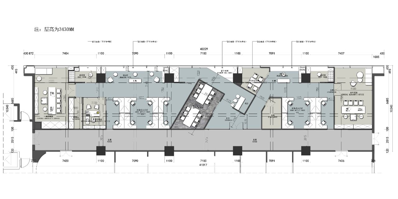
    打破办公楼的常规属性,前厅以简约大气的风格创建出空间内敛、沉稳、优雅的特性,微妙地转换人与空间的关系,丰富空间的体验以及品牌内核赋予的层次,结合工艺表达方式体现品牌的专注与要求。        

  • Camille yu / 设计师

    2024年09月05日 22:30:06

    + 关注
    #办公智造#

    以功能为主导思维对空间进行分区,运用简练的点线面构成方式打破空间分区的孤立性,点到即止,面面呼应,直线、斜线与点和面之间的穿插构成,让整个办公空间更有力量,极少色块的点缀让空间更有温度和情怀。        

  • Camille yu / 设计师

    2024年09月05日 22:28:21

    + 关注
    #办公智造#

    办公区域延续了素净的空间基调,以白色为底,配合沉稳优雅的灰色,构筑干净舒适的工作空间。巨幅落地窗为室内带了来充足的阳光与良好的视野,为井然有序高效运作的团队提供简洁、舒适的办公氛围。        

  • Camille yu / 设计师

    2024年09月05日 22:25:37

    + 关注
    #办公智造#

    不同的材质凸显空间的多样化和艺术性,特别是顶面、地面的效果呈现:水磨石灰与原木的斜切拼组在视觉上形成冲突对比,体现定制化的高级设计。总经理室承载着使用者的日常办公与社交的功能需求。大气沉稳的环境氛围彰显着领导人的远见卓识与不凡品味。
    大会议室延续整体空间简洁、现代的调性,简约而不失格调,用于接待客户与召开正式会议。整体以灰色为主调,采用简练的硬装,去除繁杂的装饰,呈现出沉稳、大气的质感。中型会议室既是头脑风暴的场所,也是给客户提案的空间。整体沿用轻松现代的设计风格,与办公空间形成视觉上的统一。以一抹品牌logo色的毛毡点缀其中,如同迸发的灵感,鲜亮而夺目。        

发布话题

公开