当前位置:首页 > 户型图分析

#办公智造#

阅读 961419 | 粉丝 961419

  • 宁檬 / 设计师

    2024年09月08日 10:51:49

    + 关注
    #办公智造#

    办公设计赏析        

  • 邓雄飞@质量官 / 客服

    2024年09月08日 10:15:33

    + 关注
    #办公智造#

    办公空间细节 | 日拱一卒,功不唐捐        

  • 尤曼吖 / 设计师

    2024年09月08日 08:44:57

    + 关注
    #办公智造#

    科胜源办公空间        

  • 尤曼吖 / 设计师

    2024年09月08日 08:42:07

    + 关注
    #办公智造#

    盈迪股份办公空间        

  • Joan 王怡琼 / 设计师

    2024年09月08日 08:35:10

    + 关注
    #办公智造#

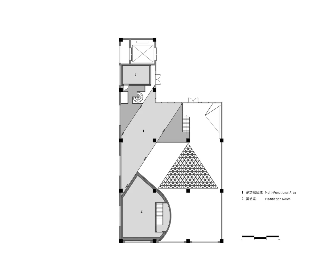
    建筑师尝试创造一些对比剧烈并带有冲突性的空间。室内有非常多的空间挤压成非常小的角落,也有肆无忌惮地释放成特别开敞的广场,如下沉的部分是一个大型的集散广场的空间概念。大家可以随意坐在前面的台阶,就像一个开放的公共广场上进行交流的场景。从广场旁的球形的冥想室对面楼梯,到达一个长条形的悬挑,进入一个连廊转换到特别狭小的空间里,是二楼的一个小型和式榻榻米区,工作人员可以完全把房间封闭起来,在宁静空间当中进行自我的沉浸式思考。        

  • Joan 王怡琼 / 设计师

    2024年09月08日 08:33:42

    + 关注
    #办公智造#

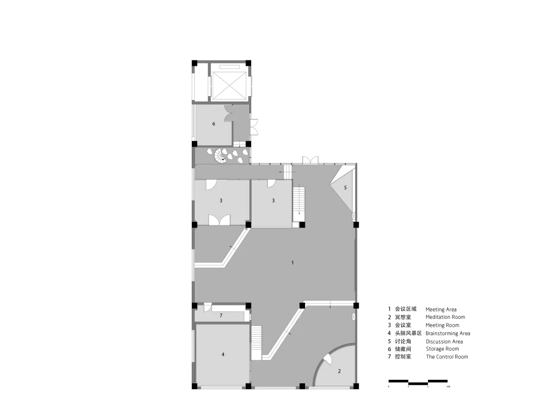
    在材料的选择上,整个空间以比较素雅的基调作为整体空间氛围的营造。采用了不同拼花的木地板,以及水泥自流平。二楼采用了一些地胶和乳胶漆搭配组合。脑暴会议进行隔音的毛毡处理。在整个空间的立面饰面,做了一些局部的木饰面啊,以及金属板,白色的冲孔板,双层表皮的处理。        

  • Hello廖芳 / 设计师

    2024年09月08日 07:44:21

    + 关注
    #办公智造#

    办公空间设计赏析(1)        

  • Hello廖芳 / 设计师

    2024年09月08日 07:42:00

    + 关注
    #办公智造#

    办公空间设计赏析(2)        

发布话题

公开