当前位置:首页 > 户型图分析

#办公智造#

阅读 961205 | 粉丝 961205

  • 张小葵 / 设计师

    2024年09月11日 22:22:08

    + 关注
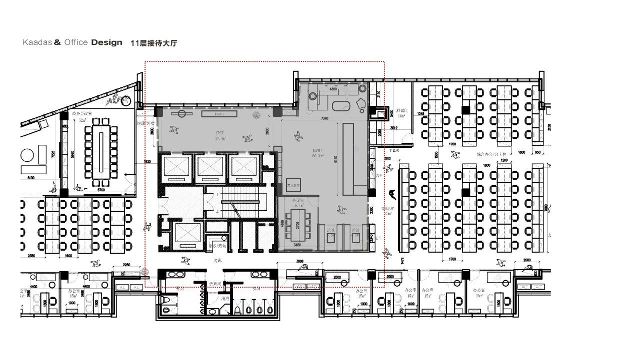
    #办公智造#

    办公空间设计案例(2)

  • 宁檬 / 设计师

    2024年09月11日 07:25:42

    + 关注
    #办公智造#

    室内融入了自然元素,植物与空间的相生共融,实现了环境减压,打破沉闷,营造了轻松的工作氛围,提高了员工的工作效率以及满意度。 办公空间彰显着一家企业的品牌精神,作为企业形象体现的重要一环,我们通过对办公空间的塑造,来传递企业的精神和理念,为互动、相处、合作和成长提供更宜人的环境。        

  • Jason / 设计师

    2024年09月11日 07:20:22

    + 关注
    #办公智造#

    将现代材料和表现手法相结合,打破以往办公室沉闷压抑的形象,通过简练理性的美学方式,不拘于固定的办公室格局,创造具有舒适感的办公多领域复合空间;从空间体验和精神意义上建立人与空间的自然关系。 为了使整个空间具有通透和呼吸感,设计师将自然光源贯穿整个动线,办公区域并以透明材质的玻璃隔断替换原实体隔墙,对整个空间行进功能布局重构,消除了空间的封闭感,鼓励彼此在舒适自然的氛围中研究和讨论。        

  • Cassie Ren / 设计师

    2024年09月10日 16:00:49

    + 关注
    #办公智造#

    律所办公空间实景图(1)        

  • Cassie Ren / 设计师

    2024年09月10日 15:27:23

    + 关注
    #办公智造#

    律所办公空间实景图(2)     

  • 毛均峰 / 设计师

    2024年09月10日 15:19:09

    + 关注
    #办公智造#

    节日快乐...        

  • 王丹丹 / 设计师

    2024年09月10日 14:12:50

    + 关注
    #办公智造#

    包豪斯风格设计布局强调功能性和简约性,追求形式追随功能的原则,即设计应该以满足实际需求为主导,而不是过分追求华丽的装饰。
    不同于常见的黑白灰极简设计,包豪斯风格鼓励使用色彩,通过鲜艳的红、黄、蓝色调来增添活力和个性。
    前台设计采用简洁的直线条,体现了包豪斯风格的极简主义精神,没有任何多余的装饰。上方悬挂的独特叶形吊灯成为焦点,它的有机形态与硬朗的建筑结构形成了有趣的对比,增添了艺术气息。
    包豪斯风格办公区设计摒弃了传统的封闭式隔间,转而采用开放式布局,使员工之间更容易进行非正式的沟通和知识分享。在中性背景下,用一种或两种重点色来吸引眼球。例如,红色的办公椅或黑色的柜体都能成为焦点,同时也能反映公司的品牌色彩。        

  • 王丹丹 / 设计师

    2024年09月10日 14:09:47

    + 关注
    #办公智造#

    在中性背景下,用一种或两种重点色来吸引眼球。例如,红色的办公椅或黑色的柜体都能成为焦点,同时也能反映公司的品牌色彩。虽然开放空间很重要,但也需要为员工提供一定的私密性。可以通过屏风、隔断或者个人工作站来划分不同的工作区域,满足员工专注工作的需求。包豪斯风格通过对比色来制造视觉冲击,比如蓝色和黄色的对比,或是冷暖色调的碰撞。        

发布话题

公开