当前位置:首页 > 户型图分析

#办公智造#

阅读 947077 | 粉丝 947077

  • 杜飞 / 设计师

    2023年02月23日 17:14:24

    + 关注
    #办公智造#

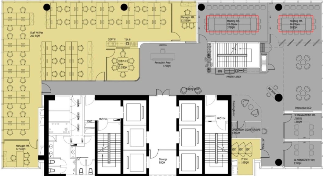
    医药产业园室内设计        

  • RIDICULOUSNESS / 设计师

    2023年02月23日 17:08:52

    + 关注
    #办公智造#

    进入空间内首先会不自觉的被深色的背景墙面吸引,顶面通过嵌入式的投光灯照亮墙面上的品牌LOGO,与前面吧台的白色大理石形成明暗对比。吧台上采用了吊装条形灯来提供主要照明,灯光干净使空间更加有序。
    沿着走廊继续进入,顶面的灯带连通着整个走廊和休闲区,像一条丝带一样勾勒出顶面的造型。柔和的光线洒下,墙面变得温暖舒适,置于其中,让人感到放松愉悦。富有特色的装饰吊灯和休息桌互相呼应,相得益彰。        

  • RIDICULOUSNESS / 设计师

    2023年02月23日 17:03:38

    + 关注
    #办公智造#

    背景墙位置采用暖色光洗亮木饰面,突显材质的质感与细节,墙面发光小孔随机散布,为整个空间增添了一份灵动,整体接待区冷色光与暖色光的对比也与空间整体装饰风格相呼应。
    开敞办公区采用线条灯无缝拼接,与室内家具陈列相呼应,强调空间动线,局部区域采用深照型宽光筒灯,保证工作面的照度及均匀度的同时很好的避免了眩光,满足空间视觉舒适度。边柜内部暗藏灯带,丰富空间整体层次,提升空间内在意境。
    休息区空间装饰更加丰富,软装材质和颜色也相对多样,灯光设计上增加了更具装饰性的吊线灯具,自由吊装,丰富空间形态。
    冷和暖两种光色始终贯穿着整个项目不同的空间。冷色代表时尚和创新,暖色则象征了悠久的历史和传承。与全聚德百年品牌的气质相呼应。        

  • 杨梅酱 / 设计师

    2023年02月23日 16:36:11

    + 关注
    #办公智造#

    办公室实景图        

  • 杨梅酱 / 设计师

    2023年02月23日 16:34:51

    + 关注
    #办公智造#

    办公室实景图        

  • 思琪 / 设计师

    2023年02月23日 16:32:49

    + 关注
    #办公智造#

    办公室实景图        

  • Siri / 设计师

    2023年02月23日 16:27:20

    + 关注
    #办公智造#

    四款风格办公空间        

  • 小海 / 设计师

    2023年02月23日 16:22:49

    + 关注
    #办公智造#

    商务办公室设计(1)        

发布话题

公开