当前位置:首页 > 户型图分析

#办公智造#

阅读 947131 | 粉丝 947131

  • 夏毅 / 设计师

    2023年02月24日 13:55:45

    + 关注
    #办公智造#

    完工交付…        

  • Camille yu / 设计师

    2023年02月24日 13:49:14

    + 关注
    #办公智造#

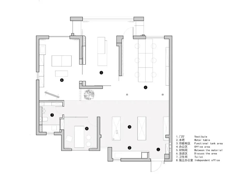
    正门左侧的视觉中心位,是宽敞明亮的接待休息区和阶梯式多功能厅。刚在休息区的沙发上落座,交互式的触摸巨幕屏透过声光电营造出沉浸式的文化展示体验,吸睛且引人伸出手指点触探索。
    前台右侧位是两间采光良好的洽谈室,洽谈室内侧则隐藏着一间实用的收发室。设计的智慧在于物尽其用每一寸空间,感受上却又毫无局促之感,只觉是自然流淌,一切尽在情理之中。
    色彩对空间的影响,是一项微妙的选择,正确的选择能给健康和生产力带来变革性的影响。
    因为颜色影响着人们的思维和感受,有些颜色让人想要释放活力,有的颜色令人冷静自持,还有一些颜色使人倍感温暖柔和。
    休息区“栖息之岛”的颜色由吊顶至地板,是富有层次的明亮暖色系,让人放松自在。休闲区因为撞色的搭配而倍感活力。
    对色彩的探索,可以加深人与空间的关系。突破色彩的界限,创造一些新颖和定制的色彩搭配,便可以在办公场所中塑造新的体验、行为和文化。        

  • MING / 设计师

    2023年02月24日 12:48:10

    + 关注
    #办公智造#

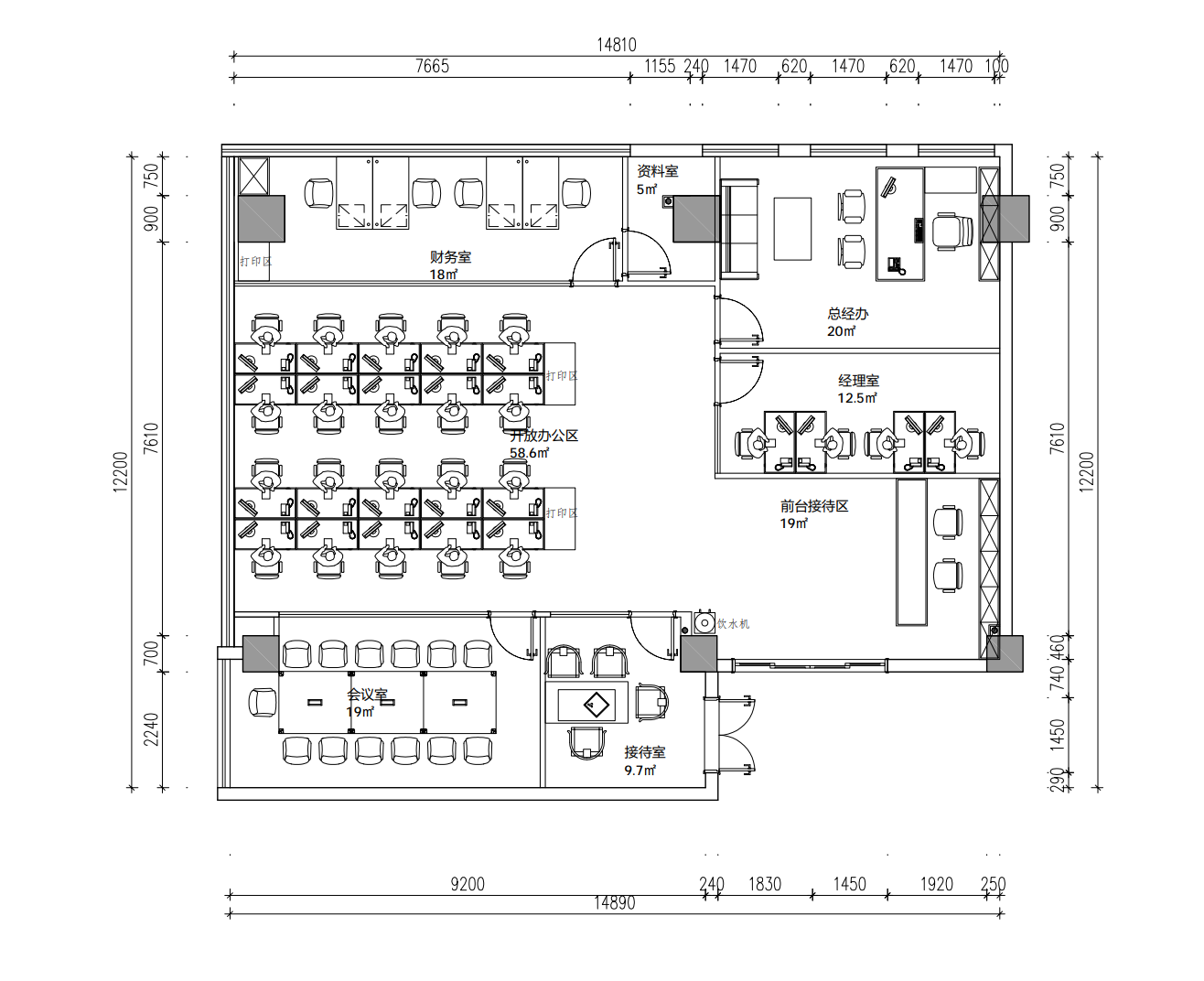
    入户前厅设计,前台+形象墙,石膏板隔墙加石材,结合弧形灯光,让空间显得明亮,有气魄。
    总经理办公室和会议室均采用石膏板吊顶,彰显空间大气,又确保其私密性
    办公区区域采用裸顶喷灰,即扩充了空间感,又有利于采光。        

  • Script. / 设计师

    2023年02月24日 12:34:18

    + 关注
    #办公智造#

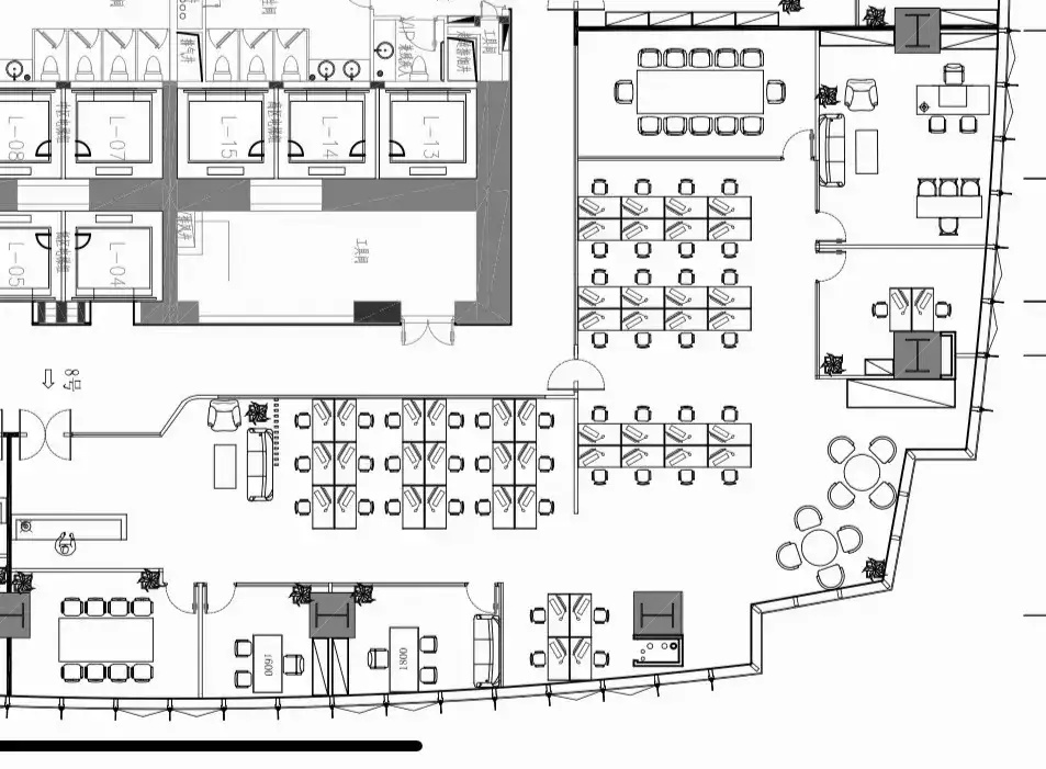
    木格栅的设计营造了一种虚实之间的关系,就像“无”材料般存在,让空间变得轻盈。尤其加上室内光线,投射在木格栅反射出的光源,都让空间产生了一种暧昧的变化。
    用木质和艺术涂料构建了一个独立的单色空间,希望完全区分开功能分区。而被服务区可以营造一种温暖,轻松,有序的氛围空间。        

  • Script. / 设计师

    2023年02月24日 12:30:21

    + 关注
    #办公智造#

    空间则是五感体验,从触摸,视觉,光影变化,空间内的行走,在影响了使用者的感受。        

  • 瑾萱 / 设计师

    2023年02月24日 11:53:28

    + 关注
    #办公智造#

    极简办公空间        

  • 木子李 / 设计师

    2023年02月24日 11:32:31

    + 关注
    #办公智造#

    220㎡办公空间效果图        

  • 刘静 / 设计师

    2023年02月24日 11:28:49

    + 关注
    #办公智造#

    共享自习室        

发布话题

公开