当前位置:首页 > 户型图分析

#办公智造#

阅读 947262 | 粉丝 947262

  • 匡志贤 / 设计师

    2023年02月25日 06:51:32

    + 关注
    #办公智造#

    总经理办公室        

  • 敏颜 / 设计师

    2023年02月25日 05:59:34

    + 关注
    #办公智造#

    新办公室视觉方面的目标是保持公司及其产品独特的人体工程学设计和功能特征。办公室的设计带来了宁静的性格和一点家的感觉。这是通过适当的颜色和纹理的组合,以及大量的绿色植物来实现的。        

  • 大鹏 / 设计师

    2023年02月25日 05:51:54

    + 关注
    #办公智造#

    茶商文化是办公空间一直倡导并践行的中华文化之一。品茶、商谈,是自古以来中国生意人的最高礼遇,大多数中国本土企业在会客时,通常还是以斟茶商谈为主。        

  • RIDICULOUSNESS / 设计师

    2023年02月24日 22:10:56

    + 关注
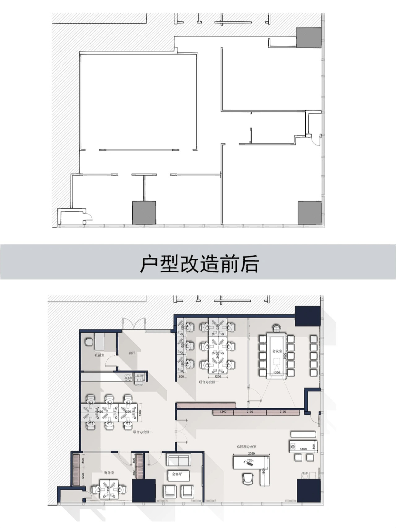
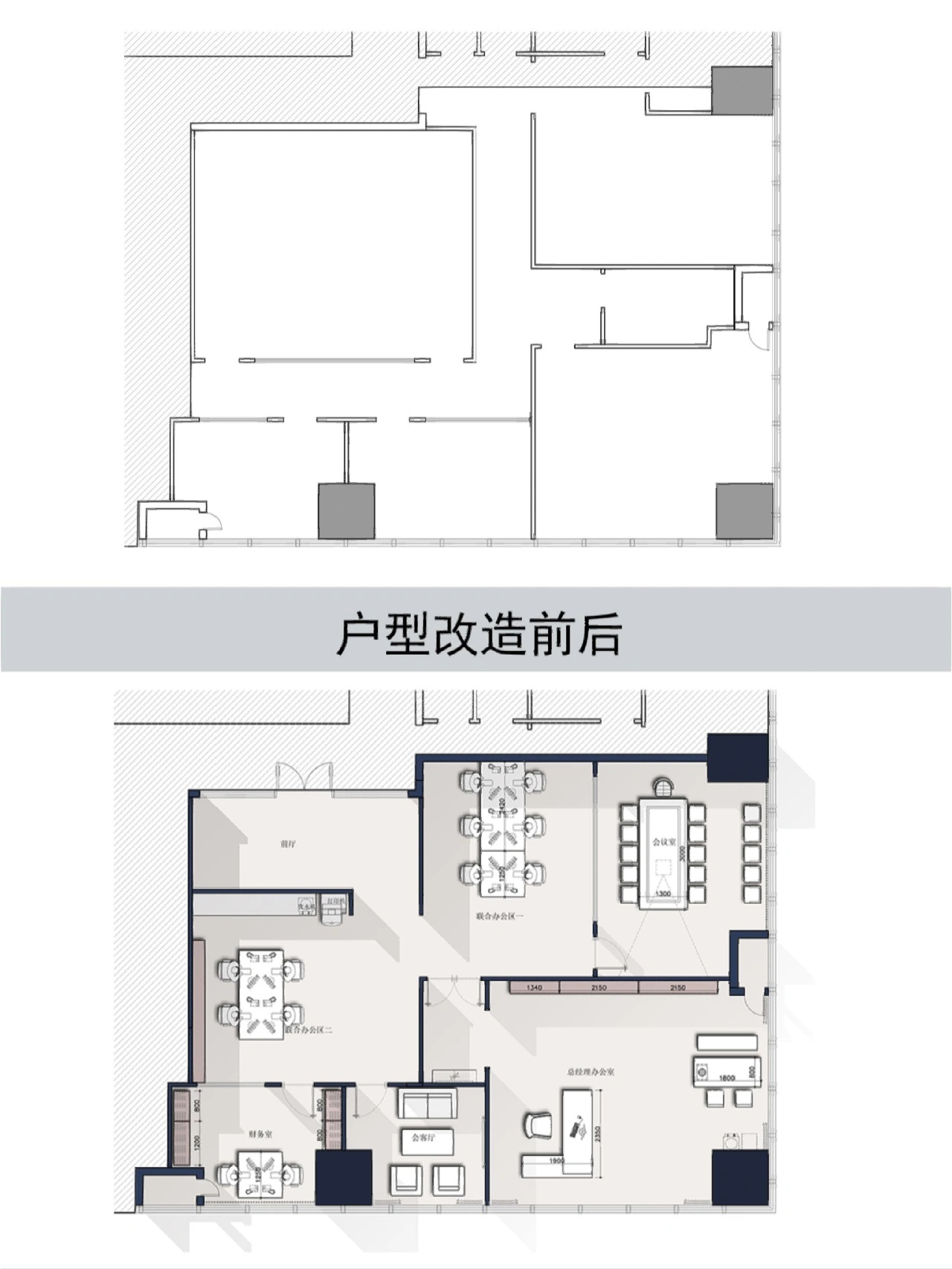
    #办公智造#

    平面布置图        

  • 蓦兰 / 设计师

    2023年02月24日 22:09:20

    + 关注
    #办公智造#

    通过极简的设计手法和创新的材料工艺细节,打造一个简约、开放、舒适的,极具前卫精神与未来感的空间。        

  • 蓦兰 / 设计师

    2023年02月24日 22:07:34

    + 关注
    #办公智造#

    塑造有质感的空间,大面积的玻璃隔断不失为优秀的选择。本案会议区、办公区采用玻璃隔断方案,既大大提升了室内的视觉效果,又保证动静结合的功能需求,在简洁的艺术美学的基调里,不失细腻的考究。        

  • 王倩 / 设计师

    2023年02月24日 21:25:42

    + 关注
    #办公智造#

    质感无以伦比…        

  • 思琪 / 设计师

    2023年02月24日 20:09:45

    + 关注
    #办公智造#

    办公室实景图        

发布话题

公开