当前位置:首页 > 户型图分析

#办公智造#

阅读 945478 | 粉丝 945478

  • 王倩 / 设计师

    2023年02月22日 13:01:03

    + 关注
    #办公智造#

    效果图与完工图        

  • 艳子@视觉设计 / 设计师

    2023年02月22日 10:45:36

    + 关注
    #办公智造#

    简洁的色彩搭配
    以灯光凸显空间的科技属性        

  • 艳子@视觉设计 / 设计师

    2023年02月22日 10:44:01

    + 关注
    #办公智造#

    恰当的动线设计
    将观者带入细胞世界        

  • 俊泽 / 设计师

    2023年02月21日 22:53:15

    + 关注
    #办公智造#

    办公室实景图        

  • 俊泽 / 设计师

    2023年02月21日 22:49:23

    + 关注
    #办公智造#

    办公室实景图        

  • 思琪 / 设计师

    2023年02月21日 22:29:36

    + 关注
    #办公智造#

     办公室实景图        

  • 刘静 / 设计师

    2023年02月21日 21:00:35

    + 关注
    #办公智造#

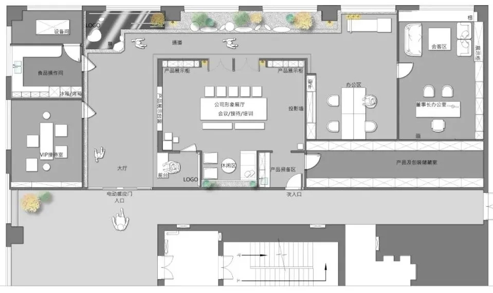
    洁白的空间基调,绿意盎然的点缀
    掩盖纷繁复杂的干扰,赋予空间充满生命力的自然气息
    绿色是品牌属性的色彩表达,生机盎然且健康和谐
    枫之源,意味源源不断的输入健康营养的品质
    铁皮石斛是主要的产品,它源于雁荡山,这是一个山脉相间的地貌。以山形为背景,层次凸出形成关键空间的门墙,给予空间完整的构图。寓意强而有力的企业发展,枫之源品牌的逐渐成长。
    地面的白色鹅卵石与线性灯作为水泥色与深灰色地面的调和剂,丰富空间层次的同时减去了沉闷感,仿佛两个空间之间的界限,似有若无。        

  • 刘静 / 设计师

    2023年02月21日 20:59:02

    + 关注
    #办公智造#

    柔和、舒适、温馨的照明氛围,既隐喻又充满了想象力。朴质原始的自然元素增加了空间的叙事性。将产品与体验区设置在此,给人更多的视角可观察到产品原料的质感,同时从味觉出发,体验石斛饮品的口感。        

发布话题

公开