当前位置:首页 > 设计圈
  • 毛均峰 / 设计师

    2022-10-03 05:44


    #办公智造#

    温馨的办公室设计…        


  • #易住美宅#

    整屋几乎全是猪肝红,却没一个人说不好看~
    这套房深得长辈的喜爱,但实际装修做主的确是年轻夫妻,深色胡桃木质的利用,丝毫不显得碍眼,反倒多了几分典雅和复古。
    当然了,如果你家面积不够大,室内采光不好就不建议同款操作了,进门就是客厅,不要电视机后,将更多时间留给家人和孩子,局部抬升做地台,划分餐桌区域。
    借着天井,室内各个区域都够亮堂,尤其主卧太令我心动了,挑空层的档次感一目了然,大面积衣柜+大面积卫生间,同时还有休闲区等,说是五星级酒店级别都不为过。        


  • #办公智造#

    设计理念
    过滤心中的顾忌——创造躁动的“界”,跨越现实与理想,突破惯性思维,沉淀潜意识的力量,为“形色界”办公室探索出属于另一个未知的“界”。在空间中强调方与圆的对比和冲突、极致的材料与形态的构成、克制的色彩与抽象的理念,创造性地表达出一个未知游戏。


    开放办公区概览:形态不一,冲突与和谐
    空间以方盒子作为主要框架,交谈区的半圆与单一体块共存,开放的形态空间延伸到顶上的圆球,形成不同边界的交汇。无墨守成规的规律可循,只有更多未知的组合。若有趣不一的元素碰撞,即使在不优质的空间里,也能赋有独一无二创造性。        

  • Mr.Wang / 设计师

    2022-10-02 21:07


    #办公智造#

    设计团队从大中华区的酒店中获取灵感,将挑选采集的纪念物品巧妙地装饰在办公空间的不同位置,从而营造一个连续的品牌故事体验,促进员工、访客和品牌之间的深层联系。        

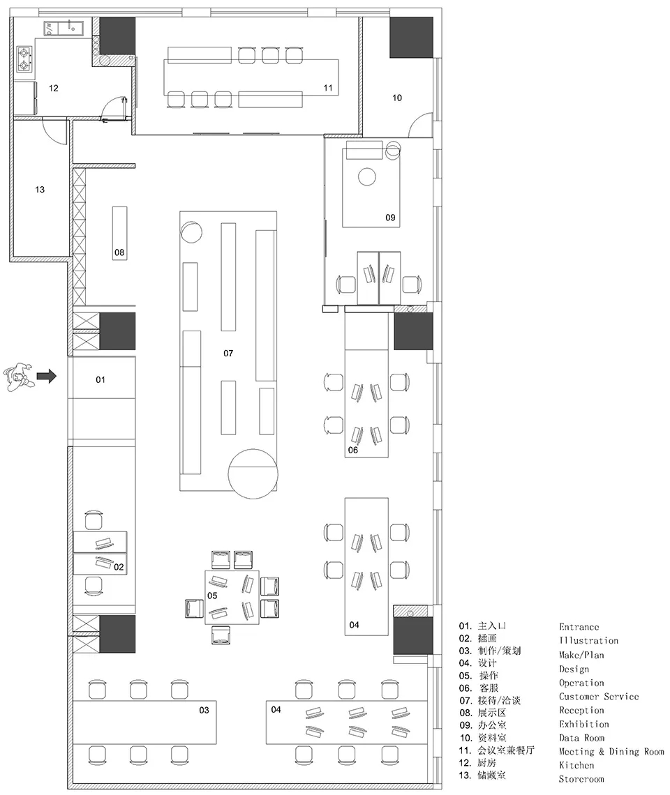
  • 猪猪侠 / 设计师

    2022-10-02 20:58


    #办公智造#

    好的办公形态应该是
    不论职位的高与低
    都有权享受这种体验带来的工作乐趣        

  • 筑先生 / 客服

    2022-10-02 18:39


    经历的事情越多,对世界的偏见就越小。
    前阵子重温《奇葩说》,对傅首尔讲的一段话颇为感触。
    她说自己有段时间很苦恼,因为总是想让别人以自己的标准行事。
    后来才逐渐明白,管好自己,比“管教”他人重要。
    成长就是你最终会发现,世界上什么人都有,每个人都有自己的活法。
    人到中年,收起心中之尺。
    一个人开始成熟,就是不再强行去改变谁,也不拿别人的标准评判自己。        


  • #标准施工#

    嵌入式花洒施工节点        


  • #标准施工#

    墙排下水工艺节点        

发直播

公开