装修案例
灵感美图
找设计
找工长
看工地
记住密码
我已阅读并同意注册协议
发直播
三组办公室实景图…
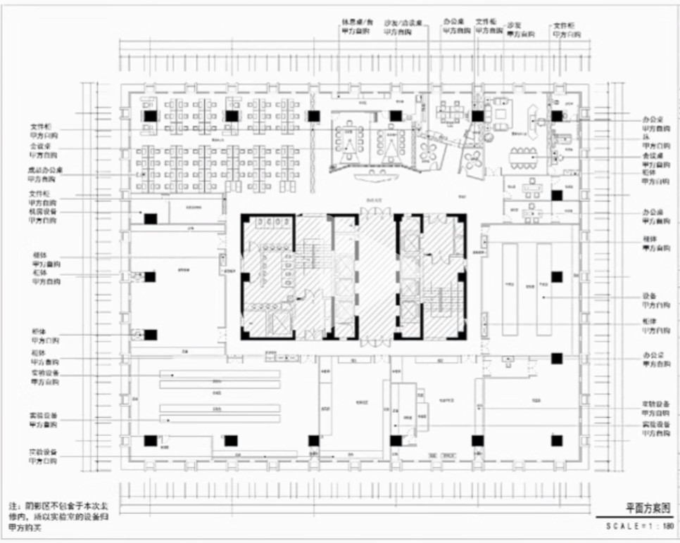
平面布置图
奔驰公司设计的配色方案应用于员工与企业文化关系。虽然黑色是主要颜色,也有员工没见过很多颜色的深浅。把这些色调的空间,用天空的颜色变化的概念和匹配到功能区。这些带来的差异感觉到空间的结构,把大部分精力的工作环境。
记笔记啦 !阳台详细尺寸来了!
六种木饰面拼接收口。不同材质拼接也可以参考
色温对瓷砖的影响。瓷砖在灯光下的效果
现代风格办公室实景图