当前位置:首页 > 设计圈
  • 王丹丹 / 设计师

    2022-12-22 07:17


    #办公智造#

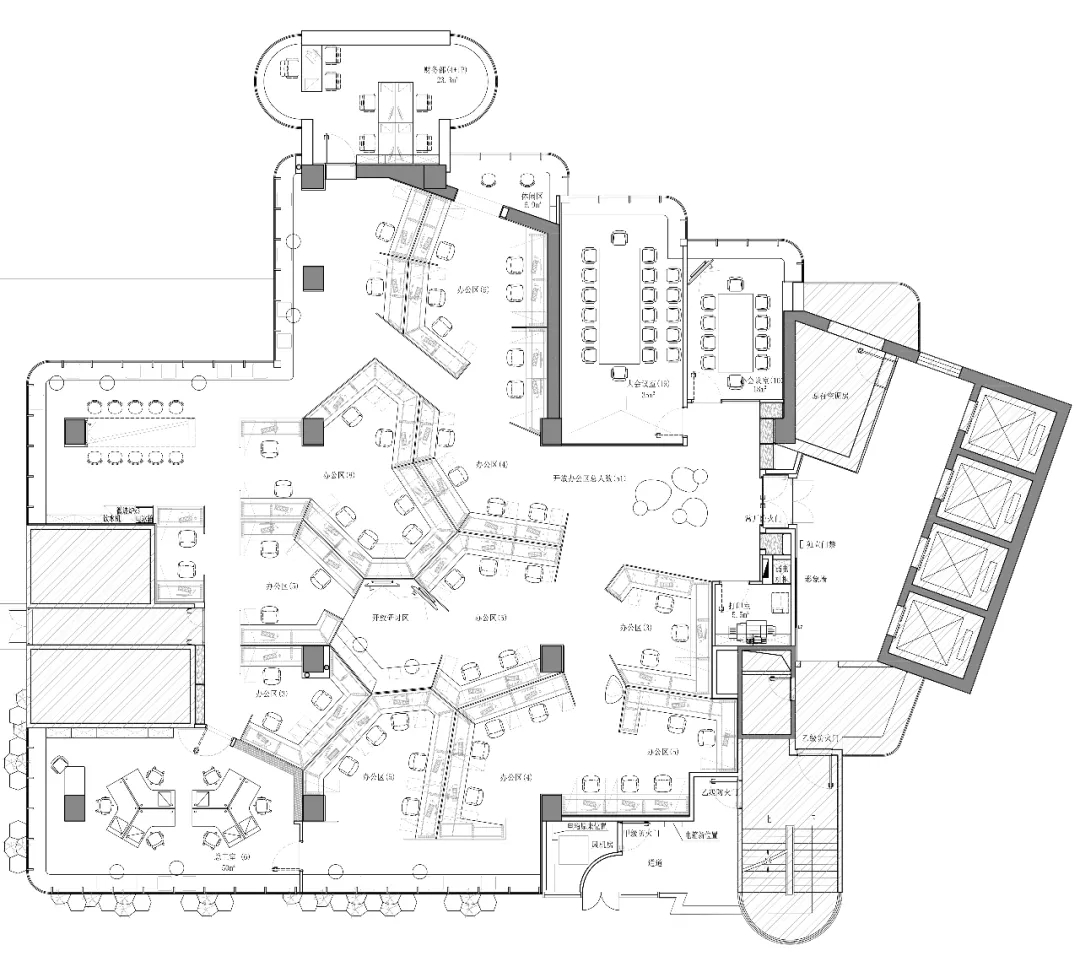
    本次项目改造需要对办公空间进行合理的功能和布局规划,呈现开放、有序的办公环境。同时,结合对场地关系的理解,希望通过设计将自然景观的体验引入室内空间。
    平面区域上生成泰森多边形后,利用泰森多边形结构线垂直拉伸,得到围合隔断的形态。        


  • #办公智造#

    办公室实景图…        

  • 木子李 / 设计师

    2022-12-21 12:04


    #办公智造#

    在项目中,人力资源、财务、法律和技术部门位于一楼;海关、海事和银行部门位于二楼;进出口单元位于三楼,行政用房规划在四楼。会议室和服务单位也根据需要安排在每一层。
    作为调色板,白色调被用来创造一个宽敞的氛围。白色漆面和橡木墙面由沙发设计,为线性工作空间的走廊提供水平和垂直的平衡。格子混凝土天花板被漆成深蓝色,同时使用了无烟煤色调的技术设备,提供了统一。        

  • 木子李 / 设计师

    2022-12-21 12:02


    #办公智造#

    会议室和行政室的家具、大理石入口柜台和每层的木质存储单元都是由escapefrom沙发设计的,而Ersa办公家具则用于开放的工作区域。为了创建透明的办公室,TRIMline优先用于分隔私人和共享工作空间的分区系统。        


  • #办公智造#

    局部效果图…        

  • 庆东 / 设计师

    2022-12-20 21:56


    #办公智造#

    福建商会办公室…        

  • 毛均峰 / 设计师

    2022-12-20 21:39


    #办公智造#

    高颜值的前台设计代表着人们对企业的第一印象,整体设计在散发着秩序和庄严的同时,也营造出一种自然放松、活力向上的职场环境。极简的设计风格,恰到好处的细节处理,低饱和度的暖光色调,以及足够大的前厅空间,不仅提升了空间质感,更营造出干净、优雅的工作环境。        

  • 毛均峰 / 设计师

    2022-12-20 21:38


    #办公智造#

    简约明亮,温暖惬意。以简白色和原木色为基色,感受那一抹轻盈淡雅的阳光带来的舒适。一体式柜体设计,不仅能节约空间,让视野更加开阔,还保持了整体风格的和谐。优雅的暖色系座椅搭配淡淡的灯光,顿时柔媚了整个空间。置身其中,让身心得以舒缓,让约谈畅通无阻,让效率得以提升。        

发直播

公开