当前位置:首页 > 设计圈
  • 刘君雅 / 设计师

    2022-12-23 11:12


    #办公智造#

    门厅起始,以纯色为主色调铺陈开来,用建筑的设计手法划分墙面的块面关系,悬空的玄关设计既减少体块的堆积感,又营造出轻盈的空间氛围。金属、木饰面、玻璃与自然水磨石的组合一起形成干净简约的空间。
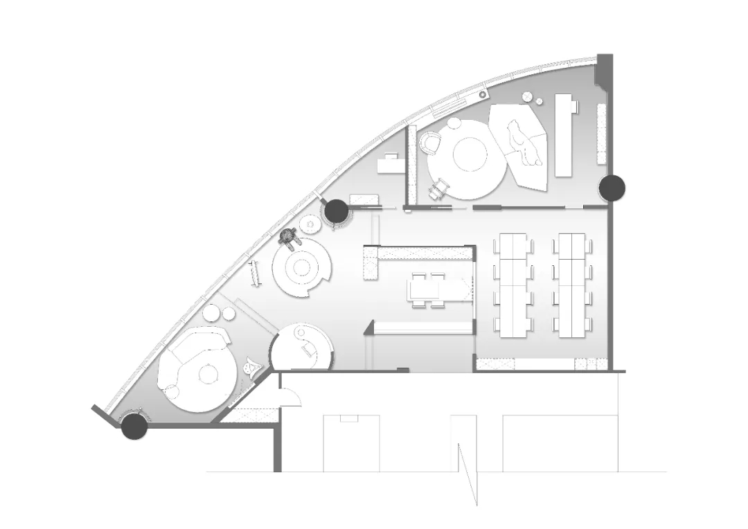
    接待前厅宛如枢纽一般,不同的功能分区围绕其像两边蔓延,追求空间的开放性与流动性,大厅的接待区采用下沉式设计,无障碍的设计,让空间视野更加开阔。全景落地窗以最大尺度将绝美的仅仅引入室内,纵目远观,独属于江边的惬意感受得以铺陈抒发。下沉区摆放着艺术家张占占签名的限量版熊雕塑,趣味的陈设带来休闲玩趣的空间氛围,纯净无繁杂的设计舒缓了空间整体层次与情绪。
    大厅的右侧分为设计总监办公室与设计师办公区,墙体上方刻意留出长方形玻璃隔断,既满足功能性的空间分割,又保证内部空间通透和交流的便利。过道顶部用圆形设计替代传统的空间检修口设计,让空间整体更有趣味性。        

  • 刘君雅 / 设计师

    2022-12-23 11:00


    #办公智造#

    入口外观以哑光天然麻石开启第一视角,石材对应空间秩序感,暗示一个未知空间的开始。在材质上我们注重工艺和细节的营造,选用拉丝香槟金不锈钢来强化得间LOGO,仅凭简单的造型和质感,它就成为不可或缺的存在。大门采用黑框透明电动口袋型材门,在框景之内,诱发人们向内观望的欲望,静待被洞察。
    在材质和造型上寻求创新,前卫且充满未来气息。以半圆弧造型增加视觉上的冲击力,仿佛被吸入一个通往未来的时空隧道。圆形造型岩板运用至背景墙,金属不锈钢和金属条的嵌入冲脱了传统设计的桎梏,展现每一个细节的出众质感。        

  • 刘君雅 / 设计师

    2022-12-23 10:58


    #办公智造#

    定制的沙发和地毯,以及柜子上陈列的各种物件、艺术品、装饰画以及雕塑形成独特的设计符号。尤其是特制沙发,突显了空间的延续性,大面积落地窗配合现代装饰,将视野拓宽到窗外,眼界开阔,江景尽收眼底。        

  • 刘君雅 / 设计师

    2022-12-23 10:56


    #办公智造#

    隐藏式灯&智能灯光被良好的运用,墙面由岩板、木饰面、仿不锈钢木板构成,地面采用水磨石铺装,环形”动线实现四周分流和交流互通。在满足工作功能的前提下,还配备了咖啡、茶饮区以及存储区,以社交、休憩、非正式交流协作为主题,为员工随时随地交流碰撞打造更轻松自在的环境。        


  • #办公智造#

    粉嫩办公空间设计…        

  • 杜飞 / 设计师

    2022-12-23 08:30


    #办公智造#

    深色系办公空间…        

  • 边洪镇 / 监理

    2022-12-23 08:28


    #标准施工#

    早上的鸟儿走工地…        


  • #办公智造#

    办公室实景图…        

发直播

公开