装修案例
灵感美图
找设计
找工长
看工地
记住密码
我已阅读并同意注册协议
发直播
小砖砌墙…
办公室设计赏析…
办公室设计出图…
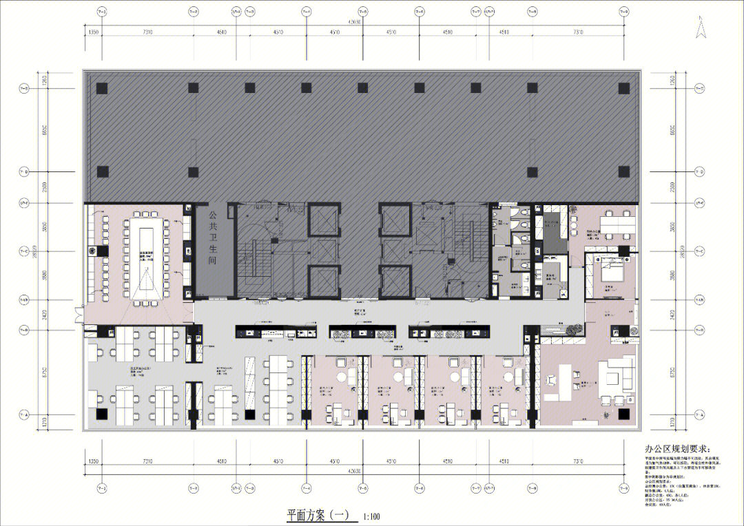
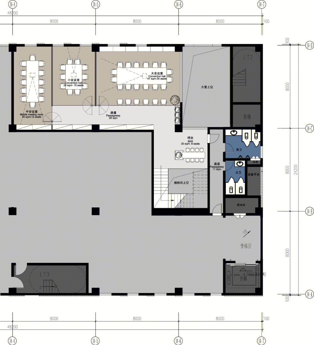
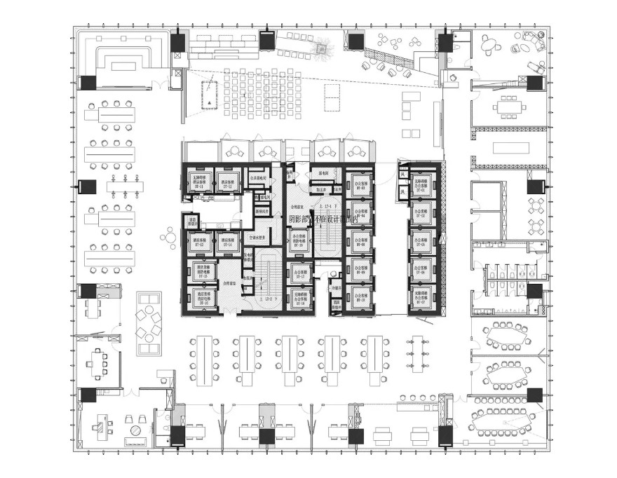
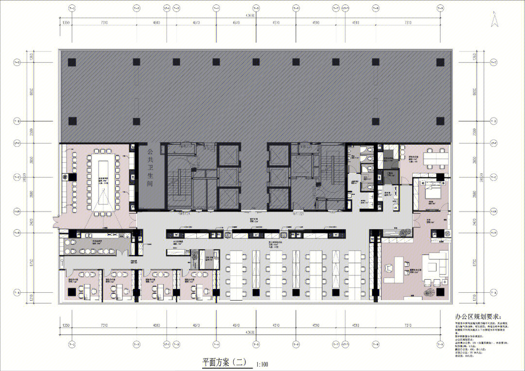
自由无拘的沟通对于团队的创新至关重要。开放的办公区是有效获取信息和激发灵感的地方。同时为了保证隐私和透明,总监室都采用玻璃门隔断设计,与开放办公区保持彼此的通透与链接,提升了场所的张力。玻璃墙面为会议室和独立办公室提供了隐私性,同时不牺牲办公区的透明度。
方案…
办公室设计…
方案与效果图…
方案设计…