当前位置:首页 > 设计圈
  • 毛均峰 / 设计师

    2023-03-22 08:56


    #办公智造#

    现代风妥妥的        


  • #办公智造#

    好的设计,不再是视觉表面上的炫技,更多的是赋予这个项目的理念和更高层次的引导。        

  • 小麦庆 / 设计师

    2023-03-22 08:30


    #办公智造#

    作品|TKSTYLE办公室|||当工作成为既定的生活态度——TKSTYLE办公室
    设计打破常规,将家的理念融入办公空间,为时装品牌TKSTYLE BOUTIQUE搭建了一座开放复合的生活体验场所。
    开放式的建筑基调为共同居住与合作办公的设计理念提供可能,但将日常家居场景与办公空间进行混搭而无违和感,则考验的是设计执行力和对细节的敏感度。工业风格的设计贯穿整体空间,加上布艺家具及饰品的精致点缀,赋予空间粗犷朴素又不失温润细腻的纵深体验。
    混凝土饰面裸露于地板、墙体和梁柱,在蓬勃绿植的映衬下散发不羁的原生态美感。现浇水泥板先后打样9次,经不断调试之后确保后期的质感稳定性。对材质的高要求还体现在超白玻璃以及西班牙进口白色花纹超薄岩板大理石的选用,以近乎苛刻的色彩和线条创造空间质感。
    若幸运,从事的行业正好是我们感兴趣的事物,工作便成为一种享受。唯有如此,本案才顺应而生。将办公提升到一个新的层次,工作即是生活。        

  • 张小葵 / 设计师

    2023-03-22 07:23


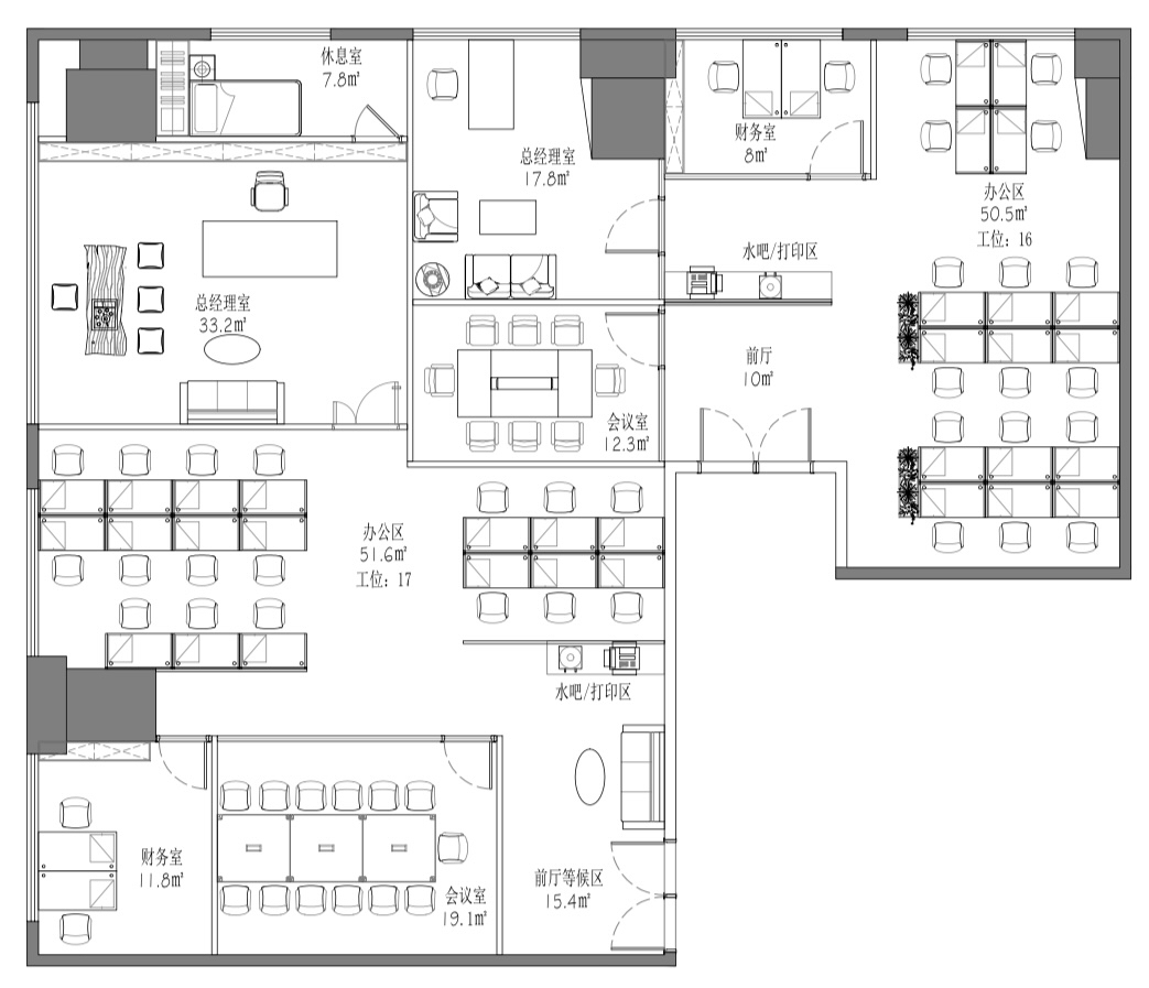
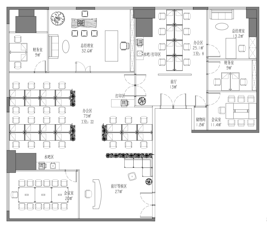
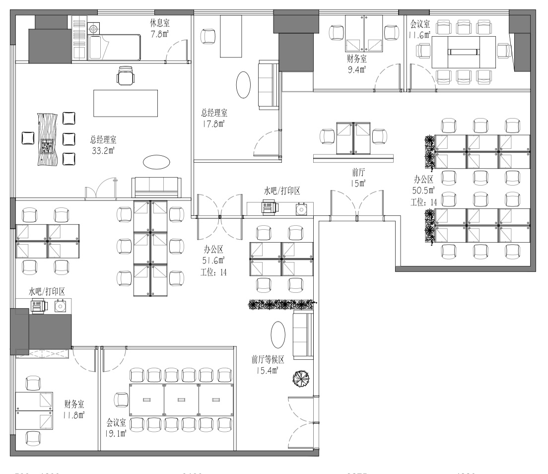
    #办公智造#

    三种平面布置方案        

  • 刘工 / 工长

    2023-03-22 06:59


    #办公智造#

    保洁        


  • #办公智造#

    花园洋房办公室        


  • #办公智造#

    轻奢办公室系列        


  • #易筑展陈#

    礼品展厅设计        

发直播

公开