当前位置:首页 > 设计圈
  • 王YANG / 设计师

    2023-03-21 16:20


    #办公智造#

    我们将弧形空间的造型
    作为办公的核心区域进行打造
    空间的成型不仅将办公区
    作为一个单独的小空间
    又框选在了我们的弧形空间内
    我认为每个空间形态的分割线
    它都应该自然而然没有违和感
    你不需要去设定特有的一些东西来划分空间
    很多事情应该是淡淡如水的慢慢形成                


  • #办公智造#

    轻奢系列办公室        

  • 瑾萱 / 设计师

    2023-03-21 15:50


    #办公智造#

    设计公司的办公室        

  • 小筑 / 设计师

    2023-03-21 15:17


    #标准施工#

    玻璃收口        

  • David / 设计师

    2023-03-21 15:15


    #办公智造#

    天怡美办公室大厅        


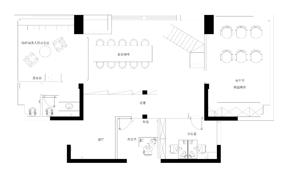
  • #易筑展陈#

    展厅图纸        

  • 小麦庆 / 设计师

    2023-03-21 14:48


    #办公智造#

    影视公司铁锈斑斑的铁皮入户造型将我们的思绪代入到那个历史的年代,墙面上关于公司发展历程的介绍让我们去回顾过去的年代。我们希望进入者的思绪沉寂在这里。
    粗胚混泥土作为顶面基调,以纯铁件建构的楼梯依墙而上,引领视点延伸至二楼,运用框面造型界定出私密的办公空间,由视线穿透和光线流动模糊虚实,塑造另一种空间层次。        

  • 小麦庆 / 设计师

    2023-03-21 14:44


    #办公智造#

    我认为每个空间形态的分割线他都应该自然而然,不需要去设定特有的一些东西来划分空间,很多事情应该是淡淡如水的慢慢形成。对于设计来讲空间的大小并不能阻碍空间体态的成型,每一套设计我都会用设计概念,去体现空间整体平衡的美感,这是一种设计的精神。        

发直播

公开