当前位置:首页 > 设计圈

  • #办公智造#

    原先的香港办公室是以黑灰色调为主的工业硬朗风,希望改造后整体的氛围可以更为舒适,因此在配色上选用了橙蓝色彩,营造出温馨的氛围。        

  • Mr.Wang / 设计师

    2023-03-22 17:05


    #办公智造#

    国外行政服务中心设计        

  • Mr.Wang / 设计师

    2023-03-22 17:01


    #办公智造#

    关于该概念,基本思想是创建一系列包含功能的盒子。一方面,有工作箱,岗亭,不同高度的屋顶,这些屋顶又像敞开的箱子,由两个大的混凝土支柱支撑。该空间本身是一个大盒子,可通过两个入口处的坡道或楼梯进入。简而言之,这是一种盒子游戏,相互对话,并置在一起以创建不同的环境,从而帮助我们产生循环和分离空间。这些栖息地或这些栖息地的世代受到青睐,因为该大陆是一个拥有巨大体积的空间。        

  • Mr.Wang / 设计师

    2023-03-22 16:59


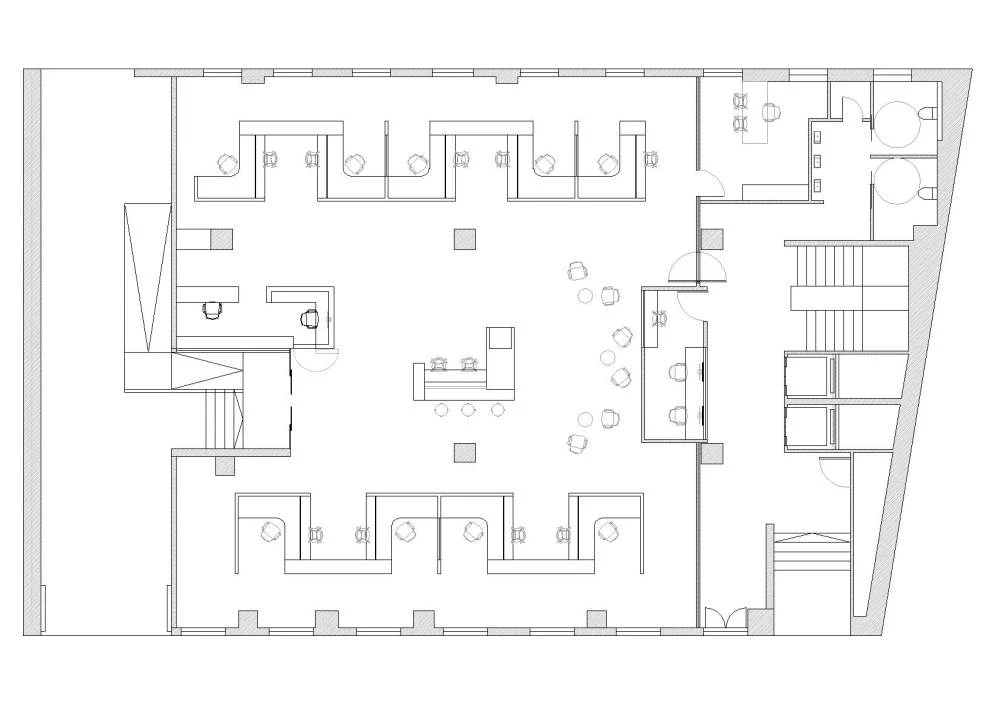
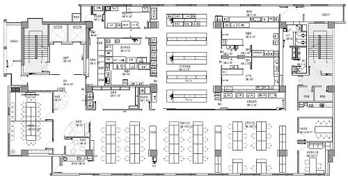
    #办公智造#

    细节及平面图        

  • 张曲峰 / 设计师

    2023-03-22 16:48


    #办公智造#

    700 m²现代简约风格装修(去年的项目)     



  • #办公智造#

    世间万物生生不息,生命永不停止
    事物亦是在不断发展变化中
    时代更迭,未来与创新科技已是时下热门话题
    生物医学科技的发展,与我们的生活密切相关
    也更是人类生命健康的保障
    生命存在于天地间,与自然交融,共同呼吸
    生生不息是我们的常态
    木质隔屏,呼吸感十足之余
    又不失雅致大气,尽显人生禅道之美        


  • #办公智造#

    在办公空间的打造上
    我们希望将内敛克制和张力十足相互结合
    冲破传统设计的桎梏,展现空间游走的理念
    除了在大体块的色彩搭配上倾注设计表达
    设计师对办公环境阵列装置上的演绎
    更融入现代办公生活的美学感受
    赋予工作环境全新的价值与意义
    营造舒适轻松的氛围感        


  • #办公智造#

    「完工照」
    办公室内设计重视科学性与艺术性的结合
    才能稳固室内环境的创造。室内与建筑的发展历史
    新的办公设计风格也在不断创新并适应社会生产力的发展科学技术的发展
    办公室内设计呈现现代化、智能化、日益频繁出现高新信息应用信息多元化的历史潮流也在不断变化        

发直播

公开