当前位置:首页 > 设计圈
  • 筑先生 / 客服

    2024-02-14 09:56


    上香
    迎财神        


  • 迎财神        

  • 木子李 / 设计师

    2024-02-13 22:53


    #办公智造#

    设计效果图(1)        

  • 木子李 / 设计师

    2024-02-13 22:52


    #办公智造#

    设计效果图(2)        

  • 王建 / 设计师

    2024-02-13 21:31


    #办公智造#

    设计灵感:来自于简单的几何体,我们通过在墙体上挖几何形空洞,看到了阴阳的虚实,看到了空间的流动且整体的形态。通过这些大小且形状不一的几何型空洞,可以增加空间的通透性,让每个空间都互相连接,这样在增加了空间的趣味性的同时还增加了室内的自然采光。
    空间处理:我们将原始的建筑空间,通过增加夹层,丰富空间,增加了更多的使用面积。金属楼梯凌空而上,二层小隔间利用错位的空间设计表现手法,架起了上下错落有致的空间结构,是一个出其不意,令人眼前一亮的合理空间。空间之间的空间比空间本身更具有意味,但也容易被忽略,正是由于“之间”的多元性和复杂性以及它的不确定性,空间之间变得无限可能。
    进入工作室会先经过一个小的围合式的景观庭院,我们通过透景的设计手法,很好的将室外景观在视觉上延申至室内空间中。入户右手边利用了高差的设计手法打造出一块下沉式的交流及休闲空间,使整体空间更加富有层次感,也能实现空间转换与功能区域之间的错落感。
    光线处理:我们利用软件模拟了原有建筑室内空间在被太阳光照射的情况,根据模拟情况,我们在前后墙面、屋顶上增加几处大小不同的开口,保证室内有均匀的自然采光以及通风性能。在午后的阳光对室内空间的照射下,营造出一种温馨而又自然的空间氛围,并且随着时间及太阳高度的变化,室内光线缓缓移动,呈现光线上的“通透”。
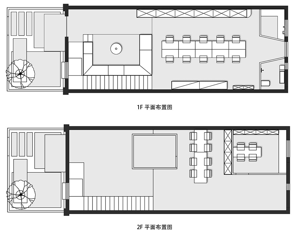
    主要办公区设置在一楼,用不同于整体的地面铺装材料来区分了空间的功能,左边为办公辅助和水吧台,右边作为材料展示区和阅读区,中间则为公共办公区域,在动线上使得整体动线呈回字形,方便了工作人员的流动与沟通。

  • 王建 / 设计师

    2024-02-13 21:14


    #办公智造#

    一层最里面用两个不规则几何体将空间分割开来,左边为工具房,右边为卫生间,中间则为玻璃门,这样让后院的自然采光很好的引入到室内空间之中。二层的空间功能主要分为会议室、接待室、休息室。其中“小盒子”作为休息室来使用,给办公晚归的人员提供了私密的休息场所。
    材料处理:对于新加建的空间体量我们采用了全桦木的海洋板和黑色油漆的钢板,尽量让其呈现的简单而细腻,而对于原始的墙面和地面,我们采用了浅灰色的微水泥。我们认为设计都应该保持克制,即使使用极其简单的方式与设计手法,也可以让形体和空间更加的纯净,更素雅,而又多变化。在这里,空间之间是可以存在无限变幻的。        

  • 易壮壮 / 设计师

    2024-02-13 20:18


    #办公智造#

    外立面的改造我们秉持保留小院原始结构的初心,但作为设计工作室来说,又想要有一些跳脱于环境之外的产物。
    将一部分原始地面做硬化处理,在老房子的外围依附新空间,干脆利落的体块穿插,构建出古朴与现代的视觉差。
    通过钢化玻璃围合出中庭区域,运用玻璃透明的特性,达成内外互通的视觉效果。
    中庭保留了原先的桂花树和无患子,预留足够的生长空间,从形体上让大树穿透房屋,让自然成为景观,同时也成为设计的一部分。
    在工作区一侧设计超大上翻窗,用窗户的体块形成立面的错落关系,顶面切角给香樟预留生长位置,让香樟形成从地到顶的视觉穿插。        

  • 易壮壮 / 设计师

    2024-02-13 20:15


    #办公智造#

    工作室的大门是特意从德清淘的清代老木门,选用障子纸作为门板密封材料,既保证了整体调性的统一,又做到了实用的功能。
    入户吧台作为室内空间的转折点,用镜面不锈钢营造出折射效果,让视线更具延展性。而墨绿色玻璃砖的嵌入,刚好使得层次感更加鲜明。
    桂花树的枝条从顶面伸进会客区,而侧面又能看到中庭的景观,我们希望每位朋友坐在这样的环境中,都能够得到真正的放松。
    我们希望办公环境是轻松自然的,是一个让人愿意久待的空间。
    现场定制超长的办公桌,从室内延展到室外,抬头是蓝天,眼前是中庭绿植,通过景观形成自然的内外交互设计。
    穿插在办公桌中的立柱看似是书架,其实当初是为了从顶面走线到办公桌而设计的,如今也成一个“意外”的装饰品。        

发直播

公开