当前位置:首页 > 设计圈
  • 王倩 / 设计师

    2024-02-13 11:50


    #办公智造#

    现代工业风办公空间        

  • 小筑 / 设计师

    2024-02-13 11:28


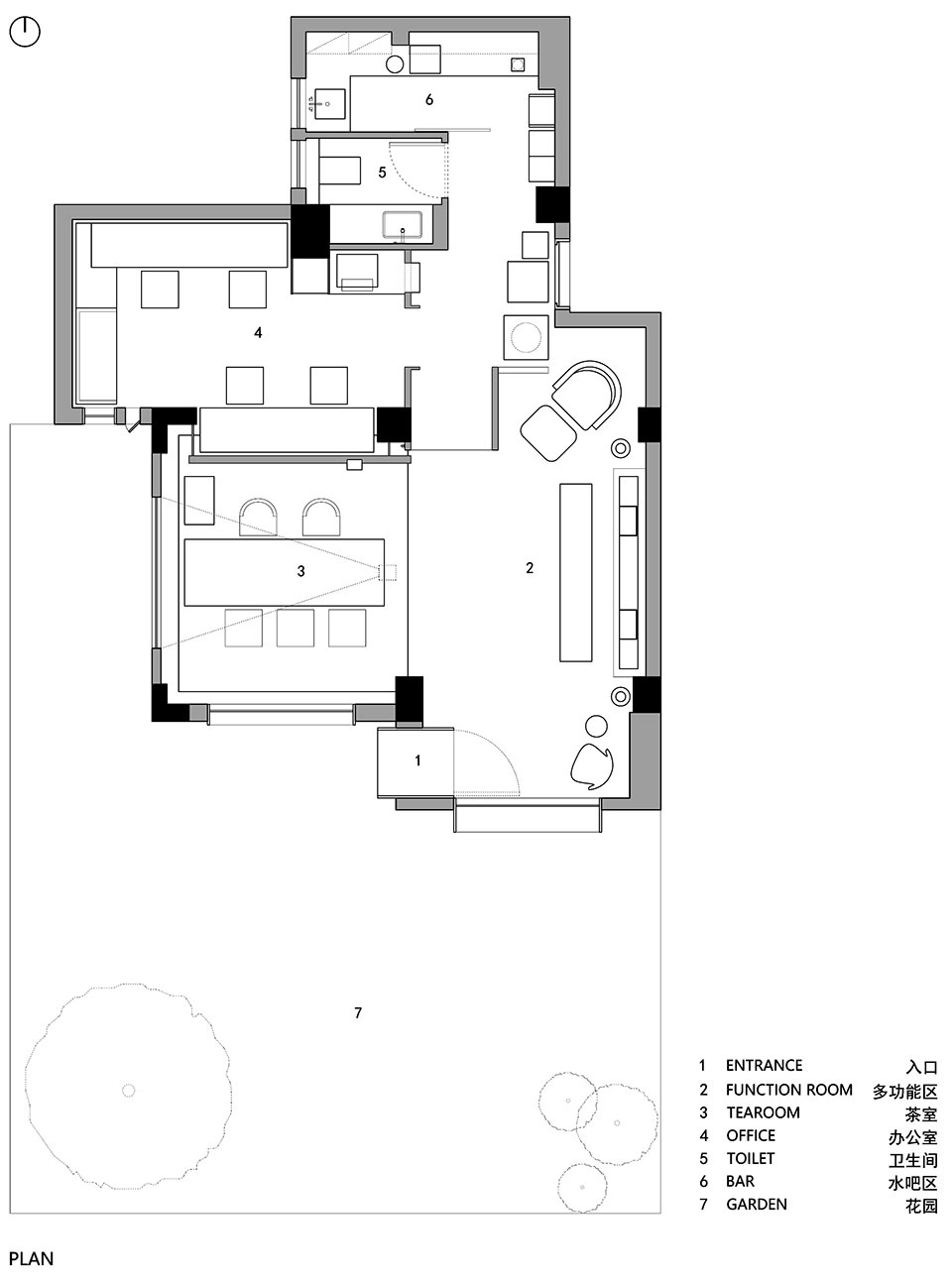
    #标准施工#

    设计出图        

  • 吕行者 / 设计师

    2024-02-13 10:50


    #办公智造#

    设计师尝试处理历史遗产和城市更新的议题。整个空间中保留了已建成30多年的梁柱结构,以及部分砖墙,让它与新材质对话。
    设计师想创造一个怀旧、孤独、安静的工作室。        

  • 吕行者 / 设计师

    2024-02-13 10:48


    #办公智造#

    怀旧不是活在过去,而是面向更远的未来。那种古朴、老旧、逃避、朋克、颓废、粗糙的反美学气质,却营造出一种年轻、现代且充满创意的灵魂。        


  • #办公智造#

    大空间办公布局        

  • 毛均峰 / 设计师

    2024-02-13 09:46


    #办公智造#

    前台入口的整体思路采用蓝白系的科技色调,从动静结合入手,大面积波浪吊顶的形态为“动”,冷静克制的服务台与洁白的烤漆玻璃板背景墙为“静”,旁侧Logo墙虚实结合。在满足展示功能的基础上,不对空间进行破坏,整体统一而富有律动,形成一个有趣的互动。
    在墙面的设计上,增添了符合现代审美的企业发展历史墙,具有可更新功能的滑轨设计更加灵活多变。与之相对的职员办公墙面设计,大胆对企业文化进行元素解构——互联网、机械、运算主题,展现美观耐看的墙面纹理。与办公家具进行色彩融合,黑、白、蓝三色的层次对比,富有节奏,极具现代风情的空间氛围,令人印象深刻。
    前台背侧打造了一个兼具休闲功能和商务接待的茶吧区域。顶部的定制装饰射灯,为茶桌提供照明的同时,兼顾了企业主题的宣传作用。接待洽谈区域采用了多变的软装家具,提升了空间的休闲感和舒适感,带来一种满血复活的治愈。        

  • 毛均峰 / 设计师

    2024-02-13 09:44


    #办公智造#

    一层会议室划分从墙面壁纸和会议家具区分处理,小型会议室充分考虑即时会议的便利性的,桌面采用了滑轨插座设计,空间风格更加轻松;中型会议室风格采用稳重的会议桌和皮质座椅;大型会议室使用了回型吊灯呼应核桃木色会议桌,可遥控的灰色电动窗帘方便进行会议时的便携控制。        

  • 毛均峰 / 设计师

    2024-02-13 09:42


    #办公智造#

    设计中纳入了高比例的无固定工位,便于个人和团队自行选择工作地点。不论是空间内还是空间外,办公场所策略将每一层的团队以“社区”形式聚集起来,促进团队协作和交流。        

发直播

公开