当前位置:首页 > 设计圈
  • 毛均峰 / 设计师

    2024-02-13 09:41


    #办公智造#

    总经理室采用胡桃木色搭配皮质与蓝色织物,延续风格的同时,格调稳重,满足接待会晤功能。
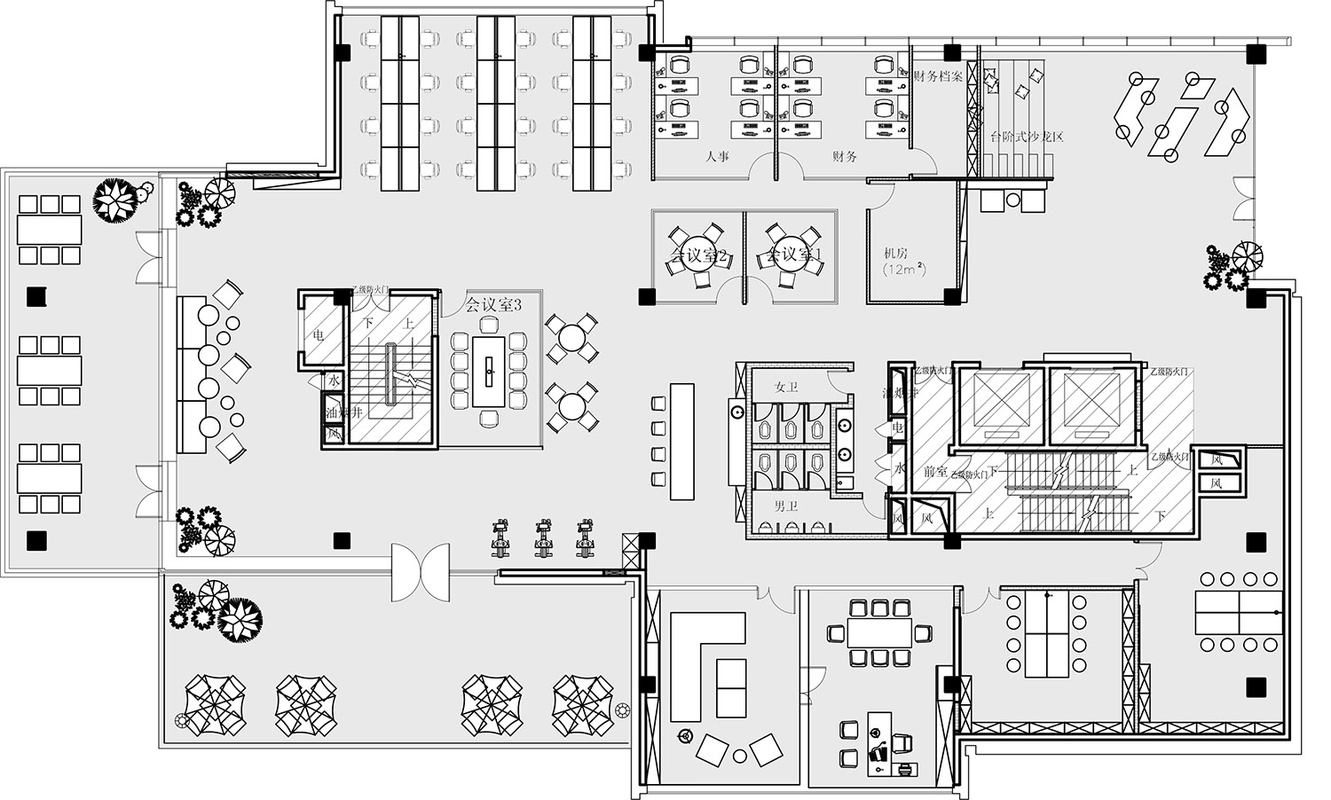
    非固定的、开放式的办公布局,灵活性的、高互动频次的工作模式,空间与空间之间相互衔接,创造不同的工作的格调。        

  • 毛均峰 / 设计师

    2024-02-13 09:38


    #办公智造#

    灵活办公是一种思维方式,它让员工可以自由选择合适的工作环境。三层茶水区域不仅满足职员用餐需求,还通过墙面装置打造出互动空间。另一侧落地窗,大面积的玻璃幕墙的通透感增强内外联系,用新的思维方式增设的吧桌和围合卡座,享有无与伦比的景观视野空间。因此,要实现灵活办公,环境、工作空间和家具至关重要。        

  • MING / 设计师

    2024-02-13 09:25


    #办公智造#

    原始的结构维持本有的朴素与自然,倏而呈现简洁的线条和现代元素,使得凛冽与恬静,豁然与细腻,巧妙地结合一体。                           
    空间委托白色进行扩展,仿佛思维的边界不可寻觅,又通过立体感的几何动线,简洁分明地划分出隐秘性。
    块面的混搭,排列与穿插,讲究又随性。空间挑高的层次多变,高低有序,彼此相辅相成。绿植装置即是视觉上温柔的补充也完成了建筑物的灵动。
    大面积的灰色地坪,原木材质,线型灯,乃至喷绘成白色的裸露电线,点点滴滴无不诉说着空间的高级。办公环境,本身就该是一种态度。        


  • #办公智造#

    原木风格办公空间        


  • #办公智造#

    现代简约风格办公空间        

  • 张曲峰 / 设计师

    2024-02-12 21:26


    #办公智造#

    办公空间设计        

  • 张曲峰 / 设计师

    2024-02-12 21:22


    #办公智造#

    办公空间设计赏析        


  • #标准施工#

    图                        

发直播

公开