当前位置:首页 > 设计圈
  • 吕行者 / 设计师

    2024-02-29 12:39


    #办公智造#

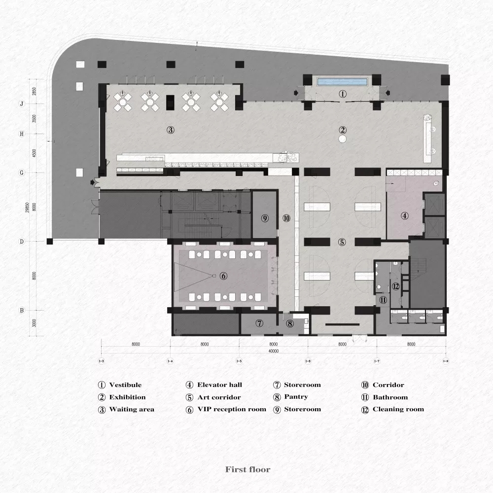
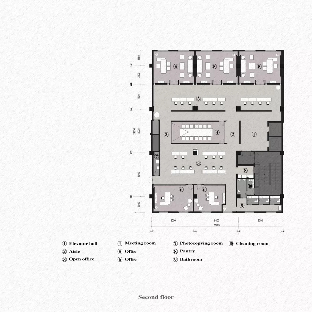
    基于各楼层不同的功能布局,着眼于各项工作的联结点,在设计的绚丽与实地的使用之间,寻求完美平衡。   


  • #办公智造#

    主要的设计理念是基于变形的光学错觉。进入DDB办公室的观众首先进入独特的视角位置,从这里可以见到完美的DDB标识。
    随着他们的旅程的继续,观众可以看到错觉是由颜色的应用在整个空间机构。歪像是一种扭曲的投影和透视法,要求观看者使用特殊设备或占据特定视角(或两者)来重建图像。
    下一个设计元素是入口区域的凳子墙。这是一面定制的墙壁,能存储大量的凳子。开会或咨询的时候,员工可以轻松地拉出一个凳子坐下。凳子代表了字母B,有DDB标准中的颜色。
    下一个设计元素是入口区域的凳子墙。这是一面定制的墙壁,能存储大量的凳子。开会或咨询的时候,员工可以轻松地拉出一个凳子坐下。凳子代表了字母B,有DDB标准中的颜色。        


  • #办公智造#

    由于员工工作室,餐厅和休息区也被整合到空间中。它有可变的座位,可以用于培训、讲座和内部研讨会,同时也作为员工互动的内部会议点。
    作战室——头脑风暴竞技场——是空间中心的半圆形黄色圆形剧场。它有一个玻璃板,可用于写下思想和想法。通过关闭窗帘,房间可以为放映提供一些隐私或黑暗。        

  • 毛均峰 / 设计师

    2024-02-28 23:08


    #办公智造#

    路演空间主要利用可变的思路进行设计,在大空间内设置了7组滑动卡座以及眺望吧台,满足不同使用场景。新增演播室用于直播。
    会议室墙体以现有柱子为基础加厚、墙面非垂直处理延伸一段弧形至顶面,把空间视觉高度拉伸,让使用者感受不那么压抑。
    顶面采用白色金属铝方板,层次感加强且不压抑        

  • 张小葵 / 设计师

    2024-02-28 22:41


    #办公智造#

    白色的基调配上符合人体工学的家具,组成了一个既给身体带来舒适,也让心灵得到安静的地方。每一个形态与功能各异的室内空间都能给设计师带来新的灵感和思考;在艺术与实用功能相结合的各种物质空间和环境中形成自己的设计价值取向。        

  • 小海 / 设计师

    2024-02-28 22:09


    #办公智造#

    本案设计师避免了刻板的直角,打破传统办公空间的直线刻板,以弧线的形式灵动整个空间,增加人的属实感,延伸空间,令人豁然开朗,满足每一位前来咨询的客户。弧形吊顶和线性灯与地面跑道式地毯纹样相呼应,既延伸空间,又寓意“条条有理,路路畅通”。弧形玻璃的运用,开阔了空间,柔和了视觉,有客户时通电磨砂,无客户时通透明亮,私密与开敞共存。看海方向设计为接待和洽谈区,给客户独有的开阔感和大气氛围。
    办公区色调打破刻板形象中的沉重感,以前色明快为主色调。前台形象墙世界地图的背景,寓意律所事业辉煌,遍及全球。办公区抬头看海的设计灵感,自由办公吧台区和健身区,尽显海景舒畅。
    会议室采用富有现代感的材质,轻快明了,时尚大气,着重体现律所的科技化脱俗感。纵观全局,本套设计作品以大海的博大胸怀为引导,在内彰显律师事务所的海纳百川,一览无余气场,高端大气淋漓尽致;在外结合无敌海景,充分展现室内外呼应的柔和之美。        


  • #办公智造#

    本设计案例为律师事务所,风格定位为现代简约,室内大量采用中性且温和的黑白灰色调,通过室内的设计,借此传递出律师人员专业、严谨的工作态度。
    电梯厅,作为本案设计前序,简洁大方,利用材质延伸,减低空间的狭闭感,让空间紧密相连,引导通过玻璃门进入到具现代感的前台和接待区。雪花白大理石前台将空间色调调至安静清雅的状态,一边落地玻璃上的日光,穿过栅格,徐徐地将自己的身影投射到镜面般的地面上,光影曼妙,引人入境。
    功能区采用玻璃隔断分隔,会议室隔断的透明度相对较高,隔断墙框架是由几何图形截面的铜钢制成。在外部可以隐约看到内被会议状况,同时又能保证足够隐私。
     办公区长方形办公桌和相应的长条状灯相互平衡,营造出舒适氛围,一侧为休闲区,员工若是累了或临时需要讨论,便可到一边的休闲区休息、讨论。整个办公室的形象简约,易于管理。 
    空间的形式做到了极简,没有任何多余装饰,乳胶漆墙、半透明玻璃门、平顶天花、橡木饰面的柜子及门扇概况了所有的造型。通过这些简单的形式,我们营造出通透流畅的空间,空间可以通过玻璃门的开放或密闭,从而满足不同的使用需求。走廊和办公区书架作为隔断,整齐叠放的书籍与办公桌上的植物使办公环境更加轻松舒适。        

  • 敏颜 / 设计师

    2024-02-28 21:53


    #办公智造#

    在前台,镂空屏风是一个微妙而有影响力的设计元素。这种创新的添加创造了一种艺术感,同时又不影响空间的开放性。前台之外,还有精心设计的休闲区,这个多功能空间是员工放松身心或接待访客的场所,开放式的布局可欣赏全景,将工作与休闲融为一体。
    柔和的白色和浅灰色等中性色调主导着整个空间,让来自大型落地玻璃墙的自然光照亮整个办公室,使得办公室成为一个既具有时尚感又兼具实用性的理想工作场所。
    四面是大面积落地玻璃墙,设计确保室内空间是外部城市景观的无缝延伸。重点是突出窗外美丽的风景,培养与城市环境的联系感。这种设计选择不仅优化了自然光的使用,还为工作空间建立了独特的形象。        

发直播

公开