当前位置:首页 > 设计圈
  • 敏颜 / 设计师

    2024-03-03 13:46


    #办公智造#

    尊重场地特性,利用建筑结构特点,在横向尺度有限的条件下,尽可能实现空间的开放性和通透感,大胆尝试利用简化重构的设计手法,拓宽空间的纵向尺度,从而营造符合企业属性的简约、大气空间氛围。注重自然光和人工光结合,采用裙楼天窗及镜面天花,多角度引入自然光,搭配个性灯饰灯光,呈现独特光影效果。
    细节部分,利用多曲面石材包裹立柱的形态,将原有建筑柱网打造成具有艺术美感的雕塑整列。搭配契合空间品质和文化内涵的巨型当代装置艺术,营造具有独特艺术气息和未来感空间氛围。
    根据企业文化和空间特点进行设计思考,注重整体色调的协调性和美感,采用具有未来感的高级灰做为主色调,搭配深色石材和金属细节,赋予整个空间深邃感和稳重感。另外,为了营造舒适的环境,地面选用吸音材料增强空间隔音效果。        


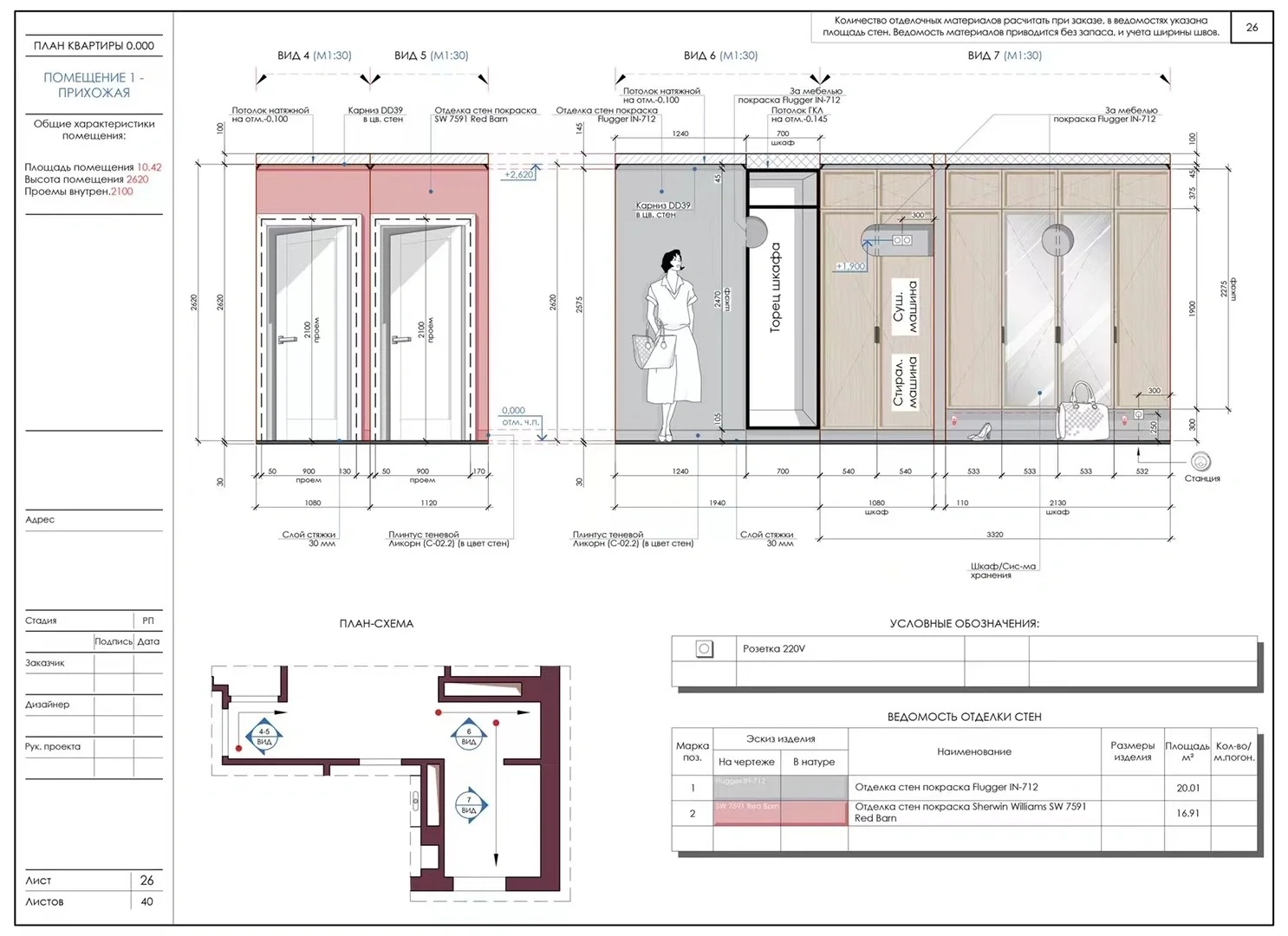
  • #标准施工#

    自带效果的施工图        

  • 敏颜 / 设计师

    2024-03-02 16:14


    #办公智造#

    办公场景设计匹配空间调性,注重实用性和功能性,采取简洁干练的构成手法。公共空间采用金属+石材的搭配,延续大堂空间的现代科技氛围。办公、会议和配套空间,更多的以木色系、暖灰色系为主调,墙面装饰侧重考虑隔音效果,为使用者营造舒适、宽松氛围。
    大堂空间以大面积的高级灰墙身石材为主基调,不做材质纹理和装饰工艺上的堆砌,更多的通过多曲面的造型和材质收口的细节凸显空间质感。公区地面统一选取深色大理石作为辅助,赋予空间稳重坚实的调性。天花和电梯厅墙体大胆的采用金属材质,丰富空间层次感和造型细节。        

  • Bobo / 设计师

    2024-03-01 22:35


    #商业空间#

    以精致、极简、自然的手法巧妙打磨。塑造了一个令人惊艳的、优美的空间。
    在入口接待区域,艺术背景墙承载着品牌的精神和形象。
    1号入口接待区主背景墙以白玉兰花的微元素抽象而形成的太阳升起的线形图案。用9个层级的不同明度的蓝色马赛克拼接而成。置身于二维弧度的超大背景墙中有如沐晨光之感。
    2号入口护士站采用写实泥雕白玉兰。和1号入口的主背景墙形成虚实对比,同时前厅和后厅在空间属性上也做了区别。        

  • Bobo / 设计师

    2024-03-01 22:32


    #商业空间#

    成功的将极简美学和放射屏蔽功能完美结合。        

  • 小海 / 设计师

    2024-03-01 22:05


    #办公智造#

    一个好的活动隔断系统,除了注意尺寸之外,还应注意材料的选用,以及在施工方面体现。在办公隔断的收口上,我们定制了较高级木质的木线来收口,同时将所有金属件应做防锈处理。安装轨道前施工团队通过计算活动隔墙的重量,确定轨道所承受的荷载和预埋件的规格、固定方式等,以确保灵活使用。
    凉亭的四周安装电动立面卷帘,按下按钮可以遥控升降。但是在它的电路安装上,室外电路布线自然要比室内要复杂一些。        

  • 小海 / 设计师

    2024-03-01 21:49


    #办公智造#

    一个好的活动隔断系统,除了注意尺寸之外,还应注意材料的选用,以及在施工方面体现。在办公隔断的收口上,我们定制了较高级木质的木线来收口,同时将所有金属件应做防锈处理。安装轨道前施工团队通过计算活动隔墙的重量,确定轨道所承受的荷载和预埋件的规格、固定方式等,以确保灵活使用。
    凉亭的四周安装电动立面卷帘,按下按钮可以遥控升降。但是在它的电路安装上,室外电路布线自然要比室内要复杂一些。        

  • 小麦庆 / 设计师

    2024-03-01 17:16


    #办公智造#

    重新定义办公场域与形式        

发直播

公开