当前位置:首页 > 设计圈
  • 丽旻 / 设计师

    2024-03-01 15:24


    #办公智造#

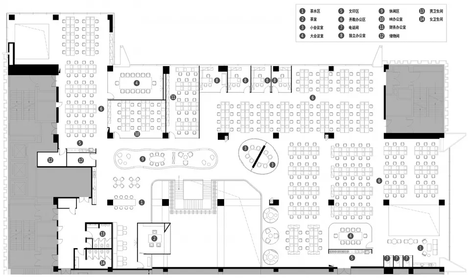
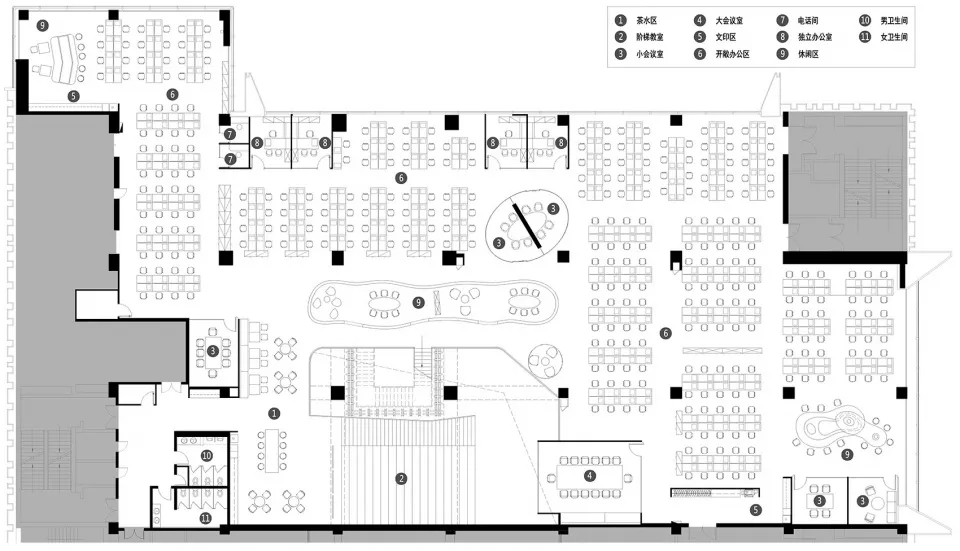
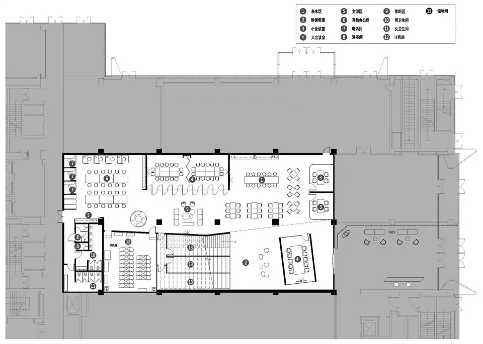
    前厅区域设计灵活,将迎宾区、会议室、董事会议室和茶水间无缝地结合成一个统一的活动空间。

  • 丽旻 / 设计师

    2024-03-01 15:10


    #办公智造#

    协作区域采用充满活力的色调,在办公室中营造出舒适的角落。使整个空间宽敞、活泼。        

  • Ellen / 设计师

    2024-03-01 13:16


    #办公智造#

    集团总部空间设计深度考虑材料的环保性与智能化,设计同时更多考虑空间的采光。项目设计包含整体办公楼,同时包含企业员工配套住宿,屋顶花园等一系列配套空间的规划设计。        


  • #办公智造#

    设计理念是通过室内设计和品牌体验将加拿大鹅的过去、现在和未来联系在一起,将品牌叙事融入进整个空间中。
    加拿大鹅的历史、产品和发展通过展示柜和展品生动呈现。材料和元素巧妙地融入,从而反映户外的风景与氛围,这更展现出品牌所致敬的以大自然为背景的特色。公司的历史传承、品牌物件和产品的展示柜巧妙地放置在人流聚集的区域,如接待区、入口和走廊。在员工一天的工作中,他们仿佛置身博物馆,与品牌的相关展示物不期而遇。
    将加拿大鹅的价值观和文化转化成有形的建筑和设计元素,餐厅的天花板板条内敛地展示了公司的核心价值观(创新、坚韧、开拓、真实、激情)。此外,如互动墙等元素,则鼓励着员工的交流,培养社群感和共同使命感。        


  • #办公智造#

    我们平衡了所有品牌叙事元素,使它们在每个层面的触点上有节奏地展开。我们的互动墙聚焦于加拿大鹅的文化,同时通过信息传达以及使用纺织废料和回收材料,与自然和可持续性联系在一起
    空间的视觉特点汲取了品牌在北极的起源,如充满吸引力的风景摄影墙和装饰着白雪山顶图案的地毯。接待区的天花板则突出了极光特色,让访客感受和重温在美丽的加拿大荒野中的品牌使用体验。        

  • 木子李 / 设计师

    2024-02-29 13:50


    #办公智造#

    天井有着三层高的挑空区,巨幅的“延绵雪山”实景图,一下就把大家带入欧洲的阿尔卑斯山脉,几位勇攀高峰的登山者,也是暗示激励着百融人不断探索前进和挑战自我。
    天井边上的狭长讨论室,犹如“幽深峡谷”,层层曲折变化,概念来源于美国大峡谷,是膜拜大自然的鬼斧神工。        

  • 木子李 / 设计师

    2024-02-29 13:48


    #办公智造#

    将景点带入办公室,这是设计师的初衷,也是对大自然的敬畏和搬运,让员工身临其境,惊叹大自然的巧夺天工、并能感受到它的优美,在心情愉悦中更好提升工作效率。        

  • 吕行者 / 设计师

    2024-02-29 12:41


    #办公智造#

    电影是个有仪式感的行业,每秒24帧的方寸之间,每一个戏剧化的片段,都是无限可能的变幻旋律。电影不仅仅是一种商业行为,更是一种文化行为。室内设计正成为企业价值观在空间形态上的投射。设计师们让电影人的办公室成为人和空间密切相关的地方,摈弃过多表面装饰,将一切形体元素还原为最单纯的素色,形成自然的细节刻画。结合黄铜、丝布、木头、石材等空间主要材质,利用植物、光影等,尽可能地做到内外合一。空间设置配以自然石材及原木色纹理的装饰,配合局部明快的色彩,打破了空间沉闷的色彩关系。整体氛围流淌出宁静、安然和对原始自然的追求与向往,让体验式的集体办公环境营造出创意源泉的基础。        

发直播

公开