当前位置:首页 > 户型图分析

#标准施工#

阅读 142063 | 粉丝 142063

  • 小筑 / 设计师

    2023年03月07日 20:32:29

    + 关注
    #标准施工#

    量房教程(三)        

  • 小筑 / 设计师

    2023年03月07日 20:32:03

    + 关注
    #标准施工#

     超细量房教程 | CAD 放图|||总结一下小白放图时容易遇到的问题
    问题一:无从下手
    (像第一期画图教程一样确定起画坐标)
    问题二:墙的厚度不知道
    (根据房产网找的户型图来,如果没有户型图根据量房 数据来,如下4有细讲)
    问题三:最后图纸圈不上误差大
    (1.量房数据错了。2图纸45内的误差属于正常现象。3.画的墙的厚度不对。)
    问题四:尺寸差很多但很一致,比如都差100
    (量房仪时而前端基准时而后端基准,我混合用经常出错,所以我一般卷尺和量房仪配合使用,量房仪永远后端基准。短距离用卷尺)


    单线放图步骤:
    1 在当地房产网上找到户型图纸(或让业主发给你)插入到cad中。这个图纸可以参考墙的厚度和沉重墙位置。(一般120墙很少看两遍图纸就能记住)
    2 和画量房图一样,先确定起点,横向竖向两条线垂直确定起点坐标。
    3 以入户门一面墙起画,按图上数据把入户门这一面墙的数据偏移出来。然后把这面墙的厚度偏出来。(外围的一圈墙全部是240)然后把门洞位置修剪出来。
    4 还是按照画图的顺序,例如这套图画完入户画厨房挨着入户的这面墙,找到入户门内墙线向上偏移1005,然后偏移厚度,这面墙怎么看厚度呢?看数据,这个垛子320−90=220所以这面墙按照240厚度来。至于有些小小白不知道往哪边偏移,很简单数据写在哪边往哪边偏。(数据有偏差很正常45以内都算正常)
    以此类推


    简单总结就是
    先把图上一面墙的数据偏移出来
    再去偏移墙的厚度
    剪出门洞和修剪多余线再去偏移(新手这样不易晕)
    需要注意的地方
    很多地方墙是齐平的,比如有些过道两边客厅区域的墙根据数据画出来会差10毫到20毫记得拉平。
    别墅因为有很多层,画第二层不用重新画,复制第一层的框架上画,不然外墙永远对不上。
    画完一个空间就要复一下该空间大尺寸对不对,不然画完了很难找问题,新手也不知道怎么改。     

  • 刘盛强 / 工长

    2023年03月07日 08:48:04

    + 关注
    #标准施工#

    天气热了,搞事要早…        

  • 小筑 / 设计师

    2023年03月06日 15:00:19

    + 关注
    #标准施工#

    瓷砖与地板交接收口        

  • 邓雄飞@质量官 / 客服

    2023年03月06日 11:27:26

    + 关注
    #标准施工#

    撞上幕墙,该怎么收口?        

  • 小筑 / 设计师

    2023年03月05日 22:47:50

    + 关注
    #标准施工#

    过道吊顶七种方法        

  • 小筑 / 设计师

    2023年03月05日 19:04:56

    + 关注
    #标准施工#

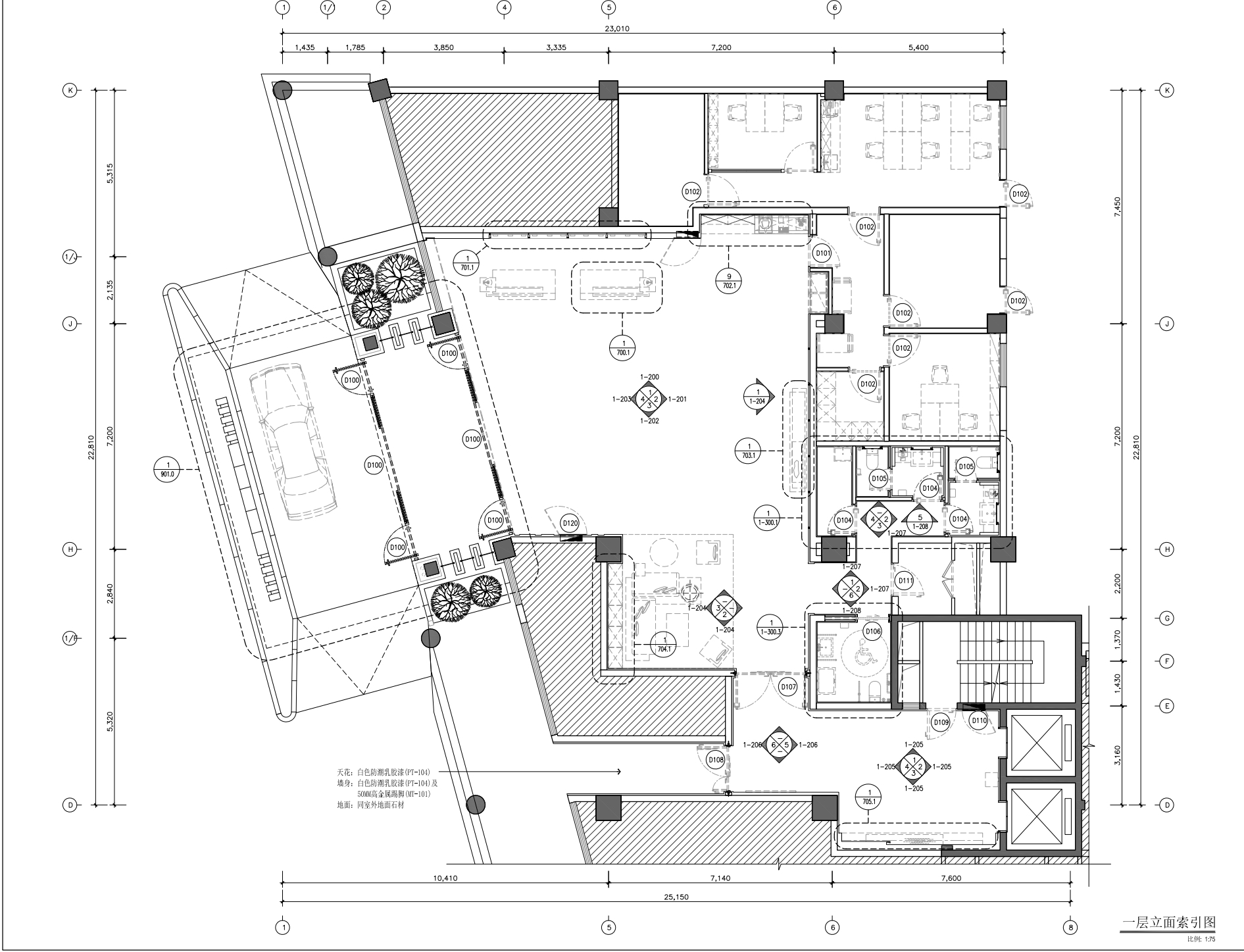
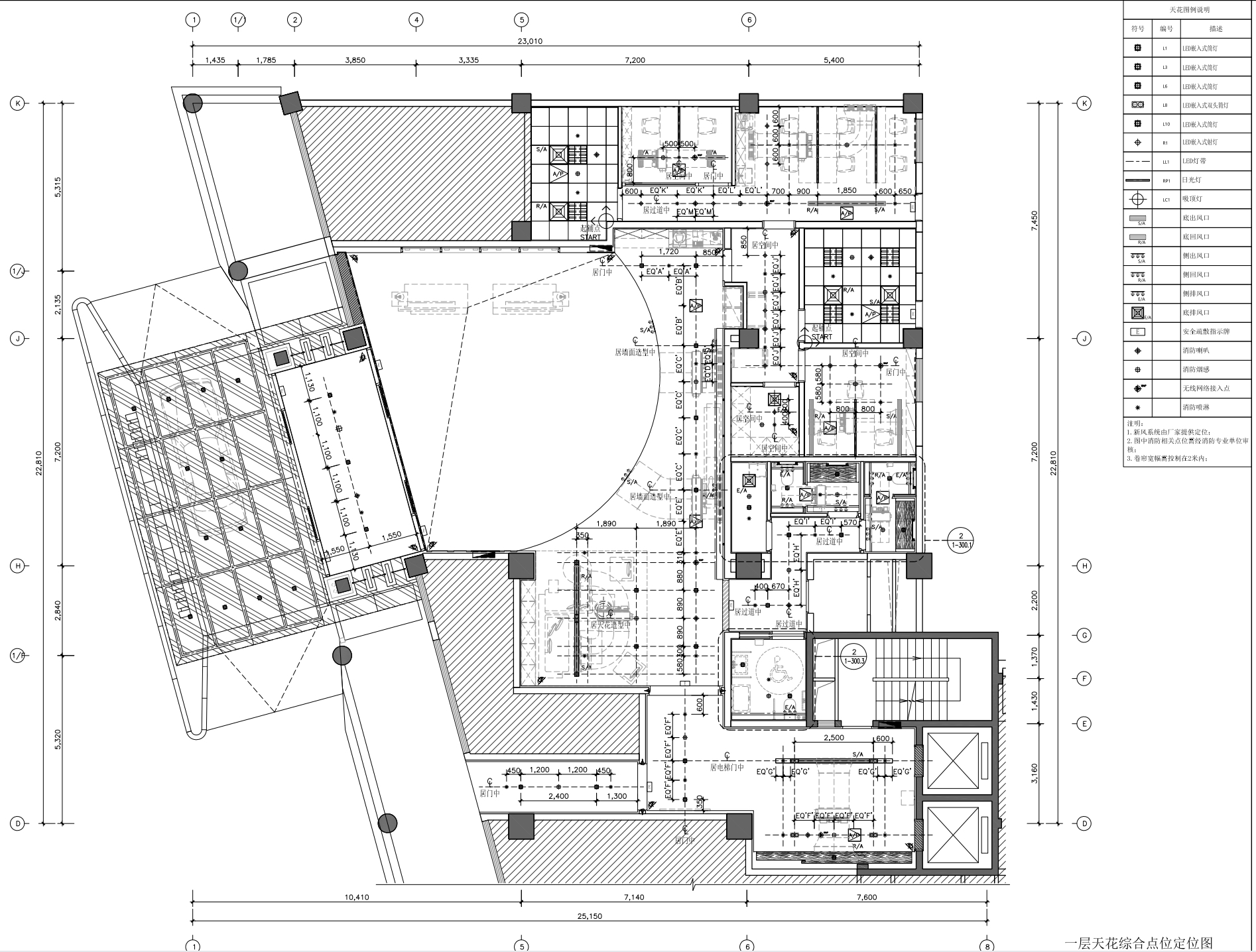
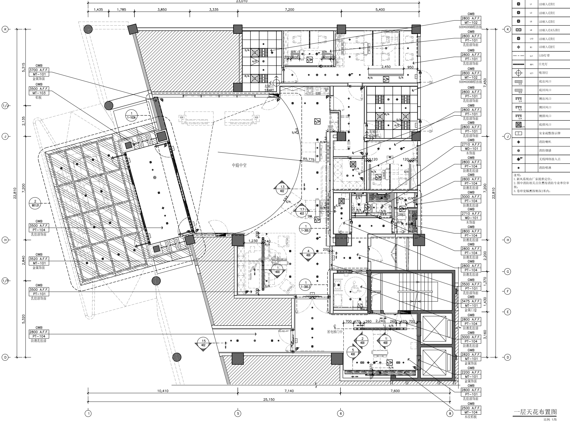
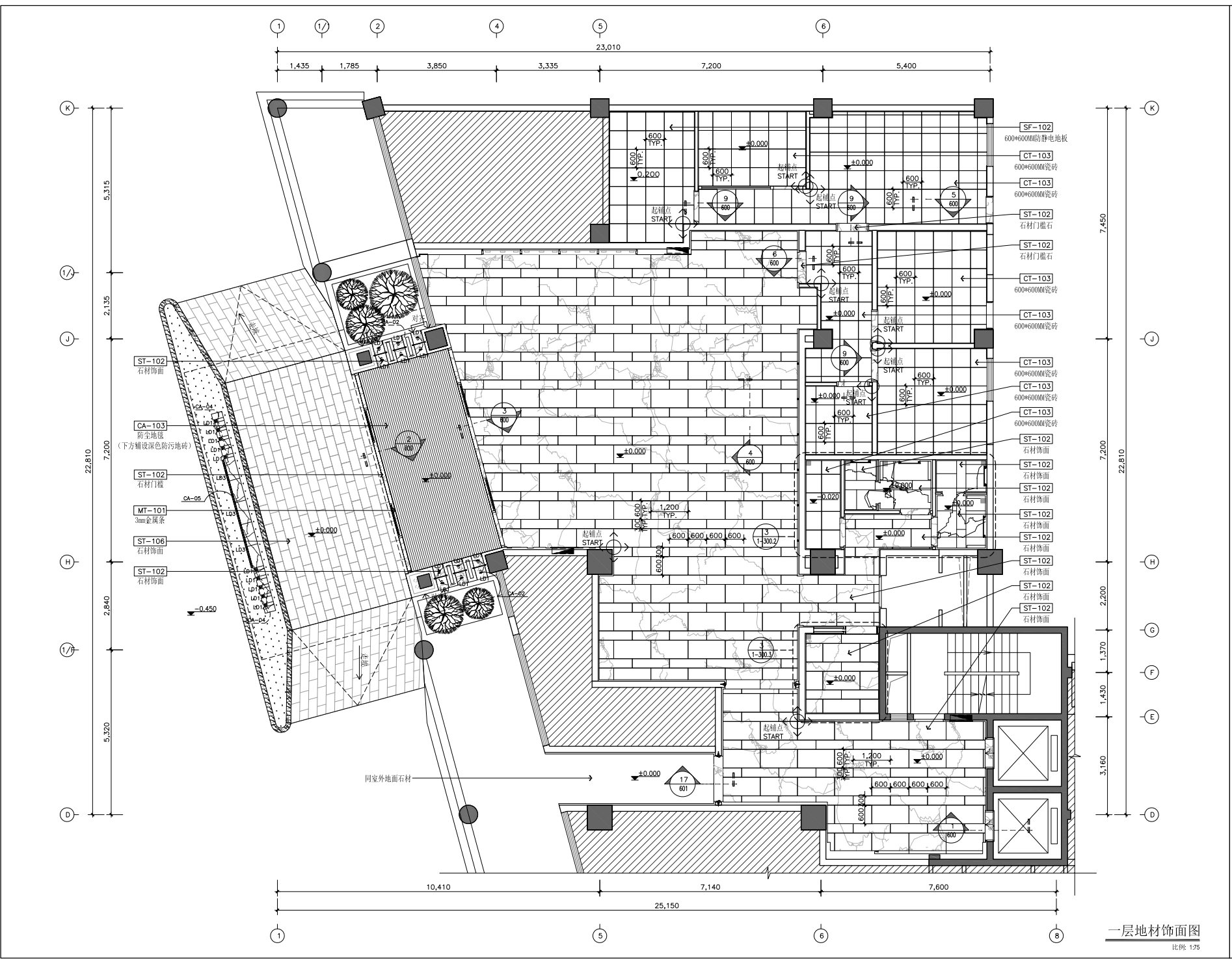
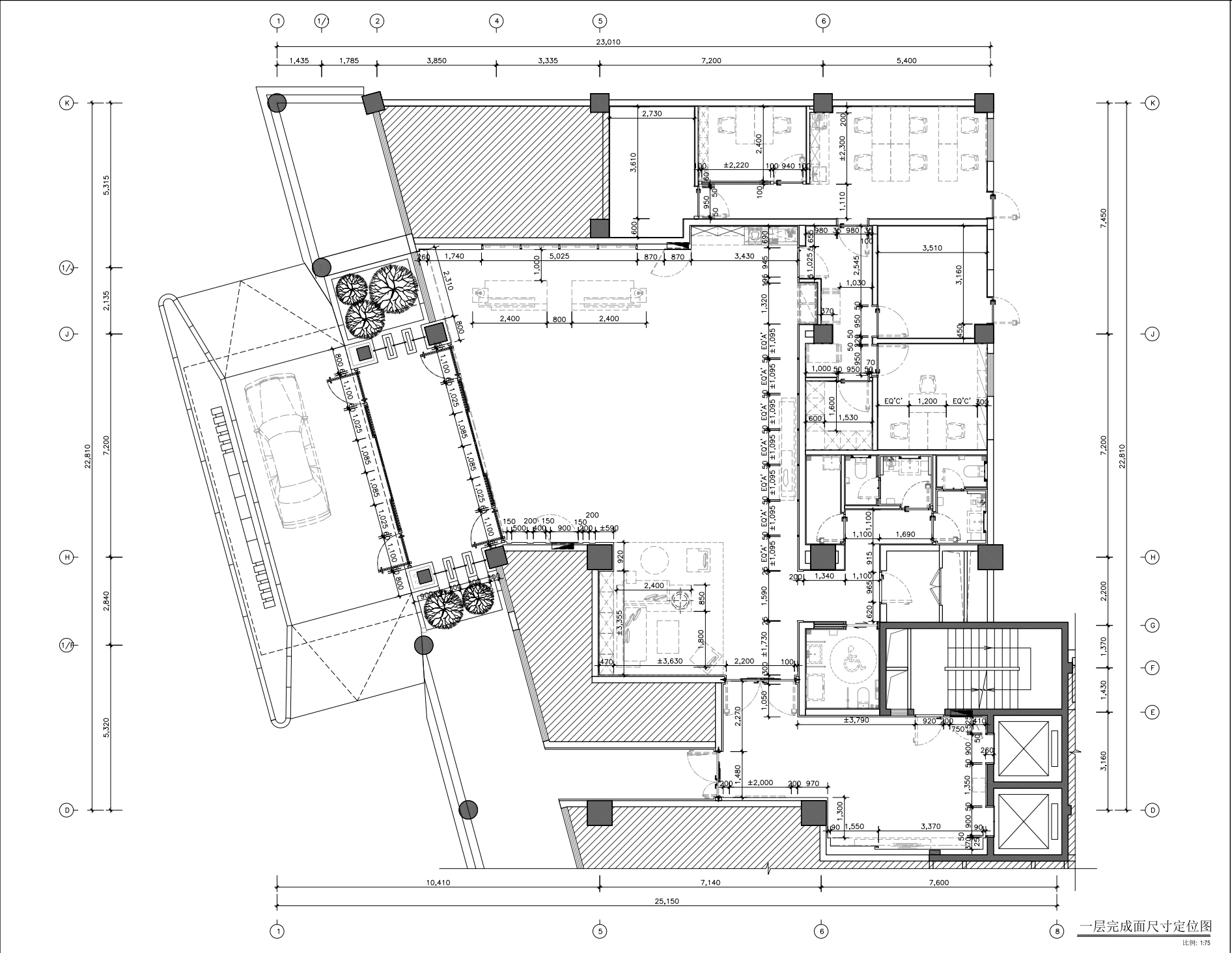
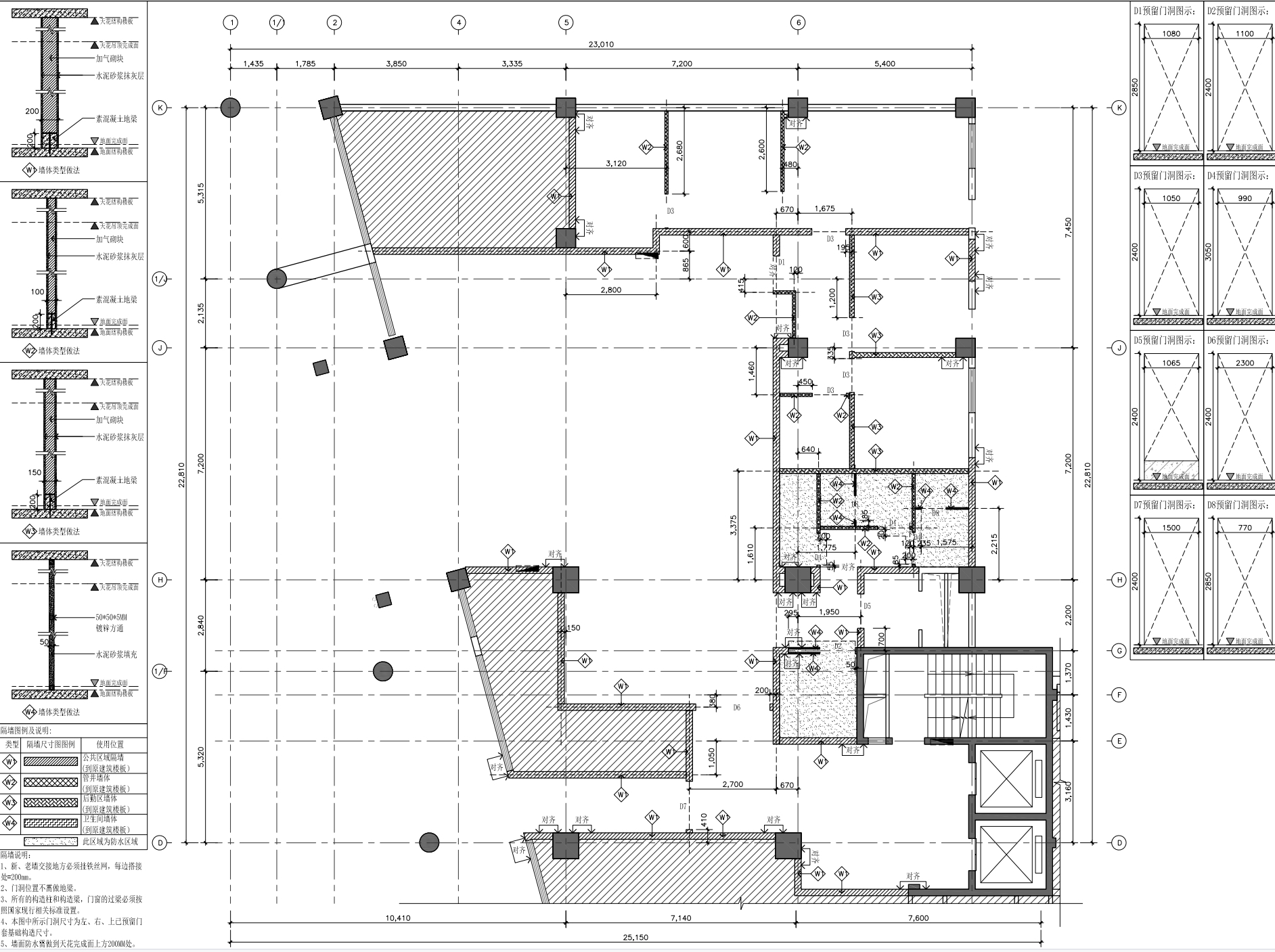
    平面图纸(1)        

  • 小筑 / 设计师

    2023年03月05日 19:03:59

    + 关注
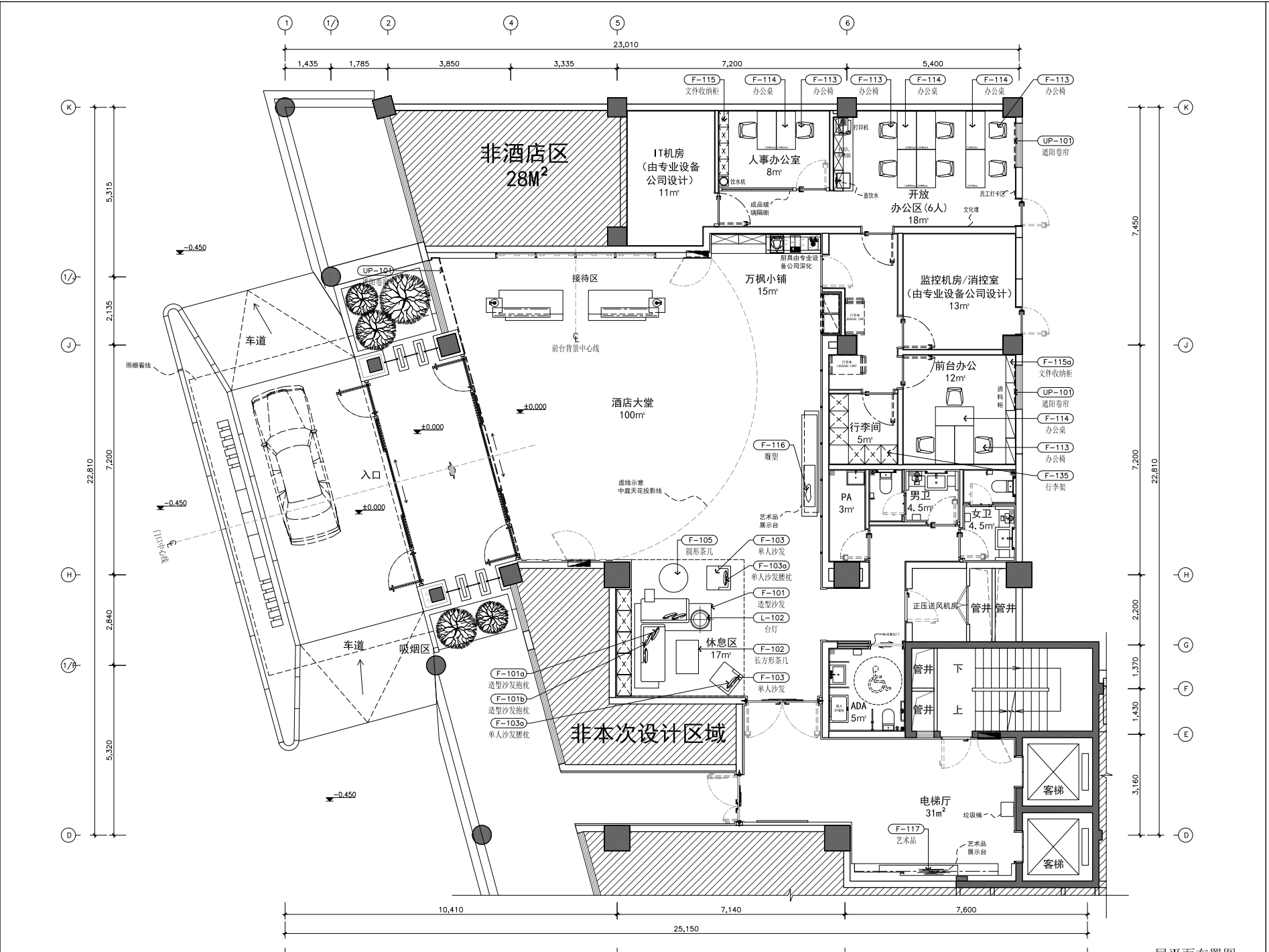
    #标准施工#

    平面图纸(2)        

发布话题

公开