装修案例
灵感美图
找设计
找工长
看工地
记住密码
我已阅读并同意注册协议
发布话题
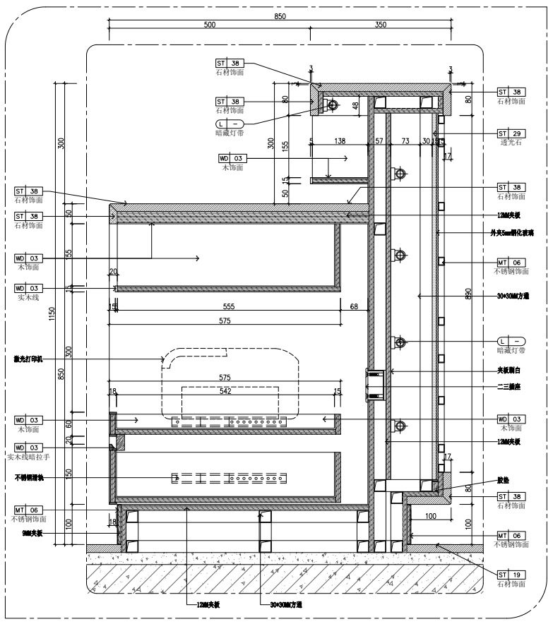
干挂石材节点|||干挂石材是一种常见的建筑外墙装饰材料,其施工工艺采用耐腐蚀的螺栓等柔性连接件,将石材直接挂在建筑结构的外表面,形成墙面。
通顶门节点图
旋转楼梯节点图
不锈钢
12级石膏板叠层天花
两天完成地面 找平 为师傅的效率点赞
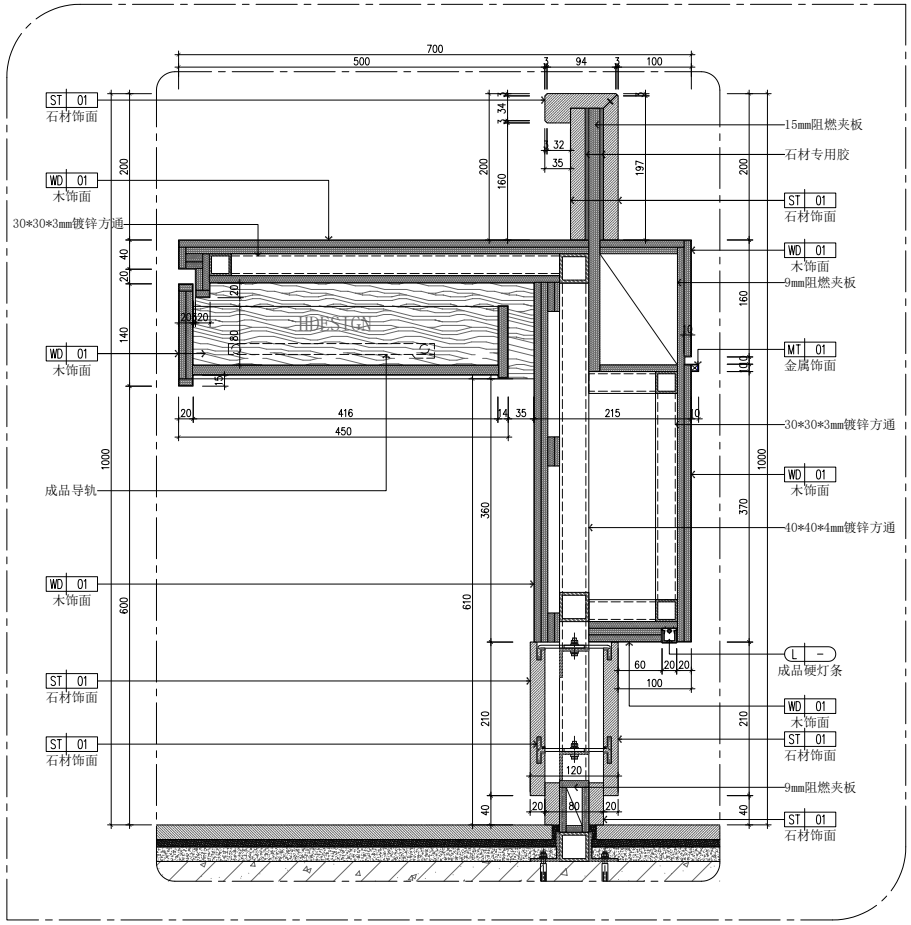
前台大样图