当前位置:首页 > 户型图分析

#标准施工#

阅读 142198 | 粉丝 142198

  • 小筑 / 设计师

    2023年05月02日 15:45:56

    + 关注
    #标准施工#

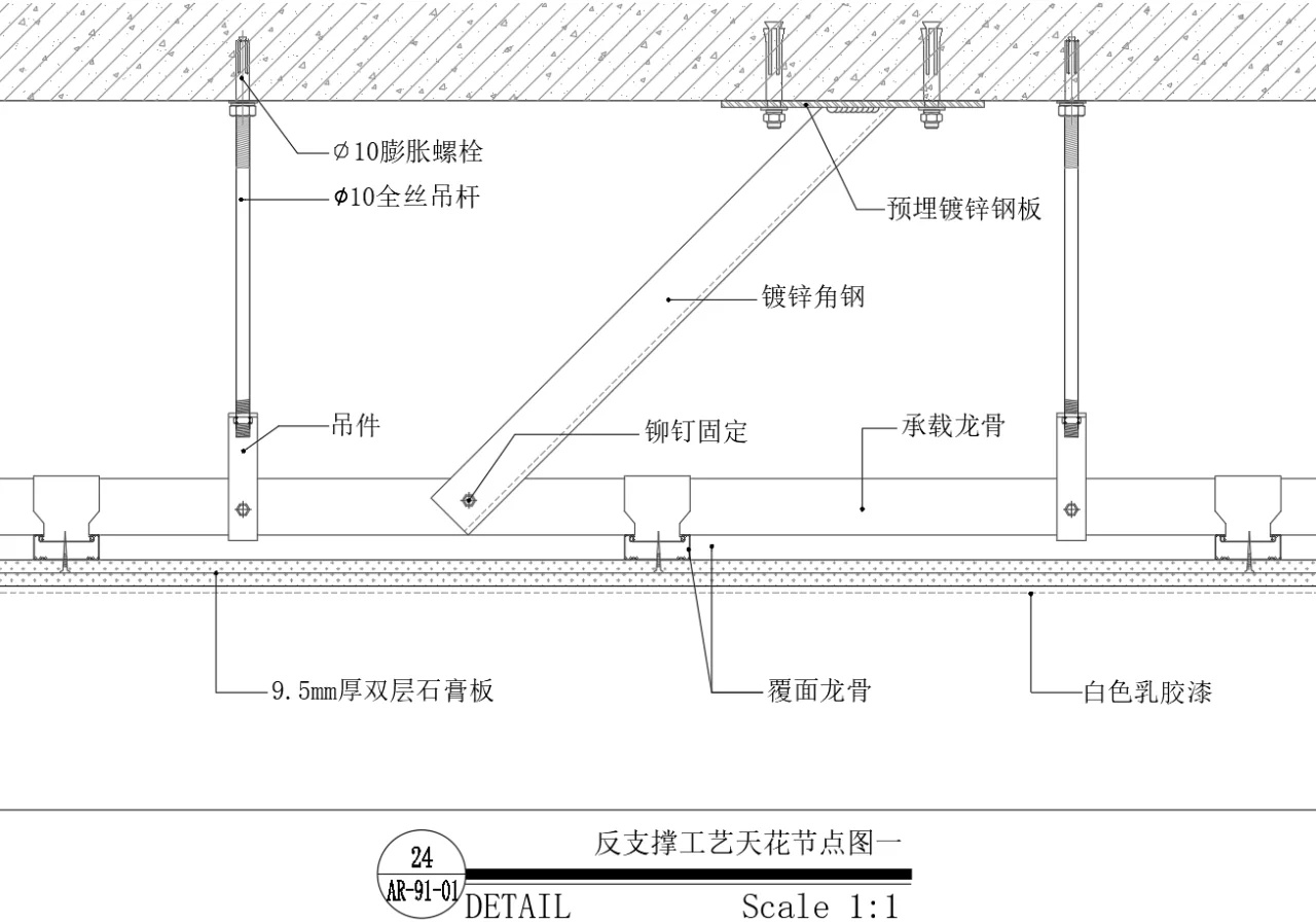
    天花反支撑工艺节点分享
    设计施工注意事项:
    1、楼板顶距天花完成面超过1.5米,则要配置反支撑,它就是从吊杆下方斜向顶棚配置连接的一个拉杆,拉杆具有相应的高度,可和吊杆形成一个坚固的三角形,为了避免吊顶在气压变化时往上变形,变成穹顶,出现破损,反支撑的数量一定要严格依据施工规划配置
    2、常规采用角铁或直径大于10毫米的钢筋,也有用主龙骨的,不过必须满足相应的条件,要有相应的高度,并且可以抵御火和做好防锈处理
    3、数量和地点要参考结构力学的计算和现场构造判断
    4、反向支撑设置的排布上,反支持不可以在相同的直线上,要呈梅花型排布,支撑的角度则在30到45度间,间距大约是2米,不过要依据具体的情况来调整
    5、反支撑的下方一般固定在吊杆上,不过由于材料的因素不方便铆接或觉得效果没有铆接在主龙骨上好,实际施工时都是锚固在主龙骨上        

  • 小筑 / 设计师

    2023年05月02日 15:14:51

    + 关注
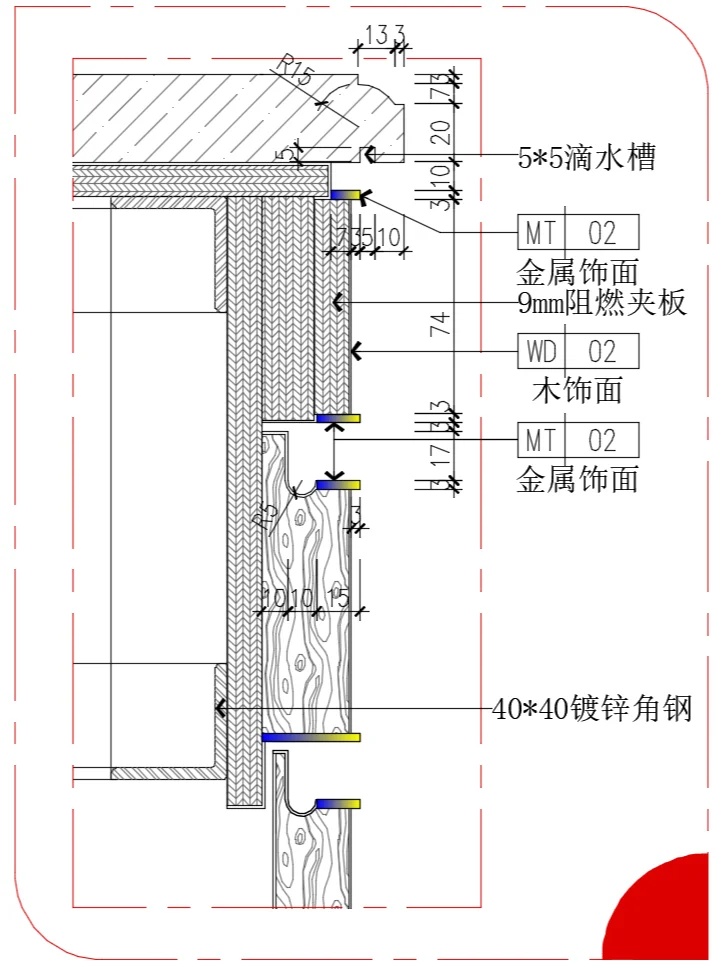
    #标准施工#

    悬浮层板安装要点        

  • 小筑 / 设计师

    2023年05月01日 21:21:53

    + 关注
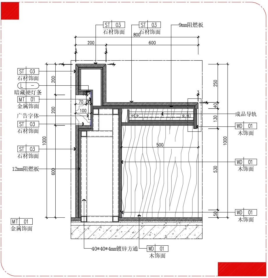
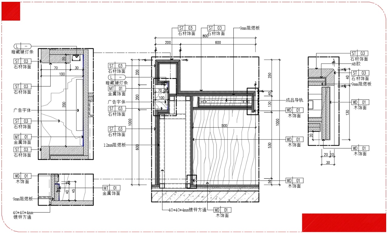
    #标准施工#

    倒边窗台板工艺节点        

  • 小筑 / 设计师

    2023年05月01日 20:30:17

    + 关注
    #标准施工#

    线性灯剖面图        

  • 小筑 / 设计师

    2023年05月01日 16:25:14

    + 关注
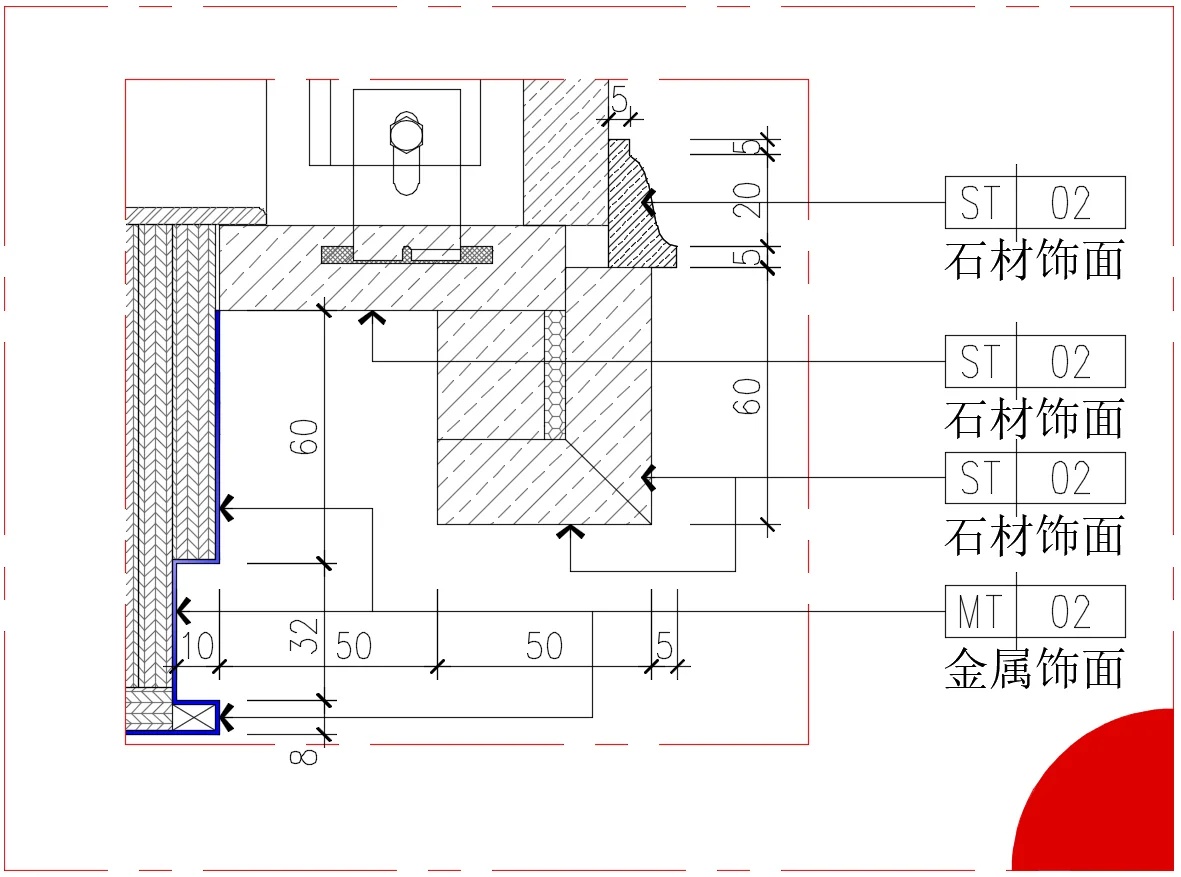
    #标准施工#

    石材施工节点图        

  • 邓雄飞@质量官 / 客服

    2023年05月01日 09:36:56

    + 关注
    #标准施工#

    偏轴进户门        

  • 小筑 / 设计师

    2023年05月01日 09:34:48

    + 关注
    #标准施工#

    前台施工图        

  • 小筑 / 设计师

    2023年04月30日 21:51:37

    + 关注
    #标准施工#

     设计图纸材料规格        

发布话题

公开