装修案例
灵感美图
找设计
找工长
看工地
记住密码
我已阅读并同意注册协议
发布话题
墙面灯槽
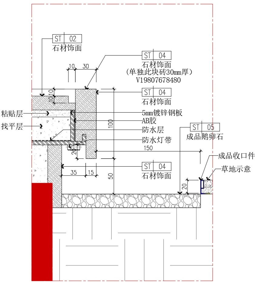
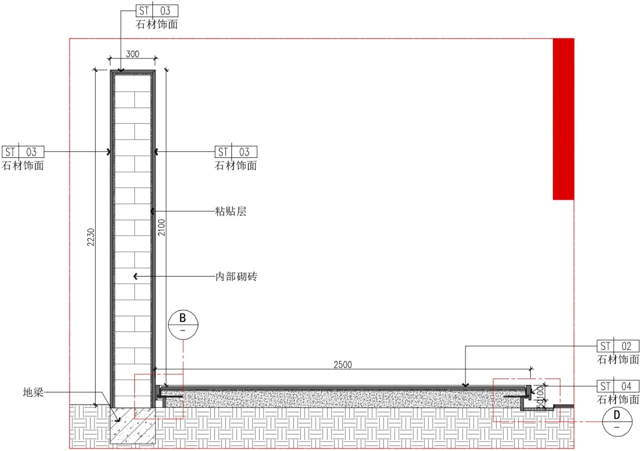
庭院节点
不锈钢层板安装
轻钢龙骨石膏板吊顶灯槽造型
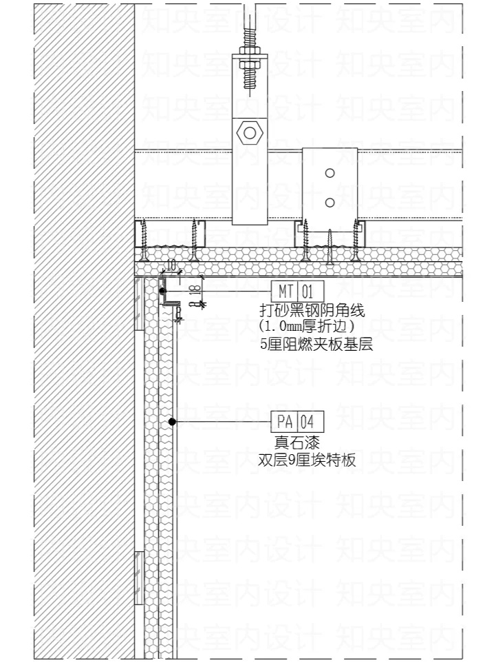
室内真石漆墙面收口节点做法分享图一:(真石漆与地面收口节点图)图二:(真石漆与天花收口节点图)图三:(真石漆阳角收口节点图)
庭院大样图石米的运用
立面 剖面 大样
轻钢龙骨石膏板吊顶检修口