当前位置:首页 > 户型图分析

#标准施工#

阅读 142251 | 粉丝 142251

  • 小筑 / 设计师

    2023年05月22日 14:28:32

    + 关注
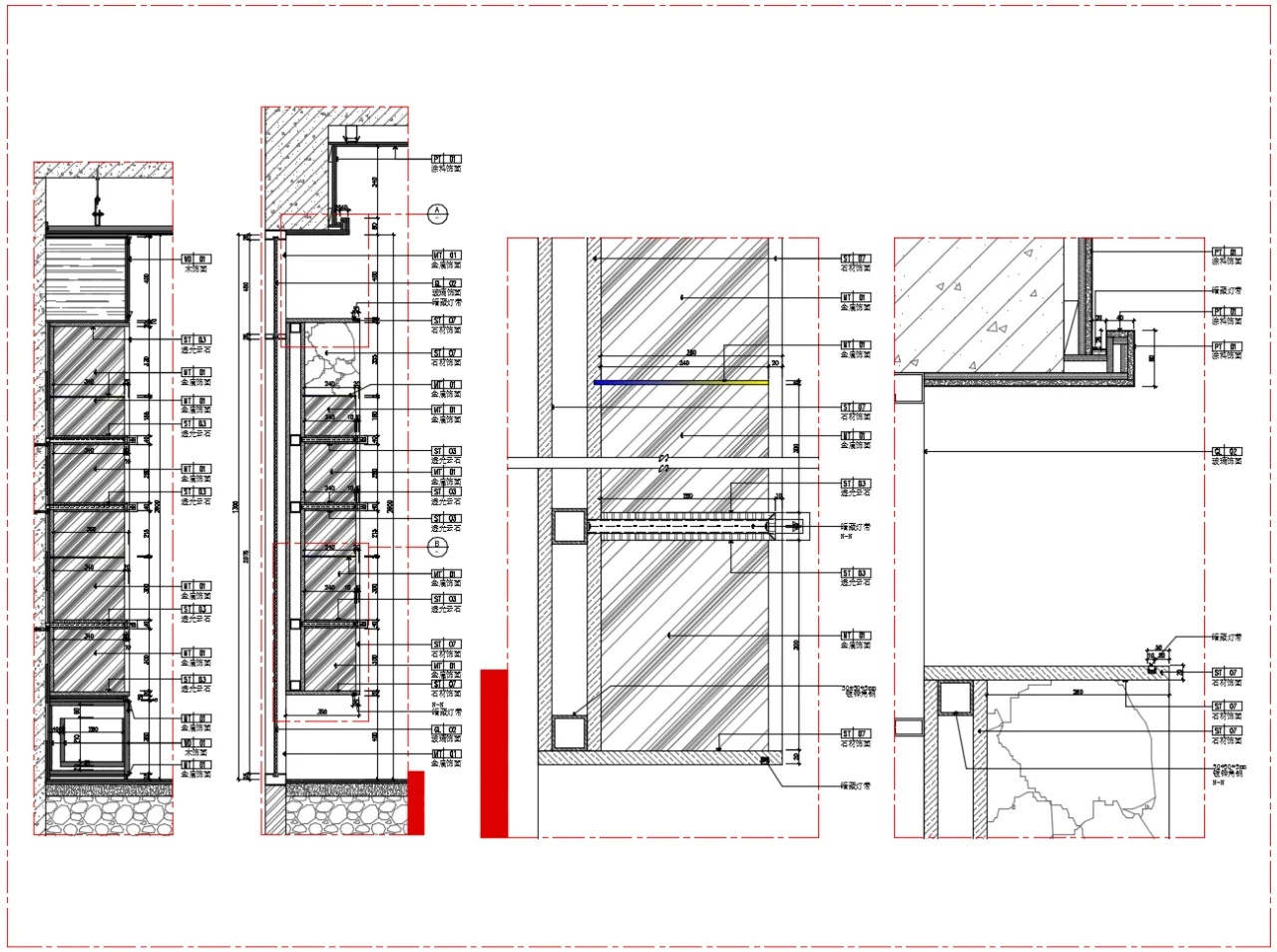
    #标准施工#

    CAD 天花节点(2)        

  • 小筑 / 设计师

    2023年05月22日 07:55:37

    + 关注
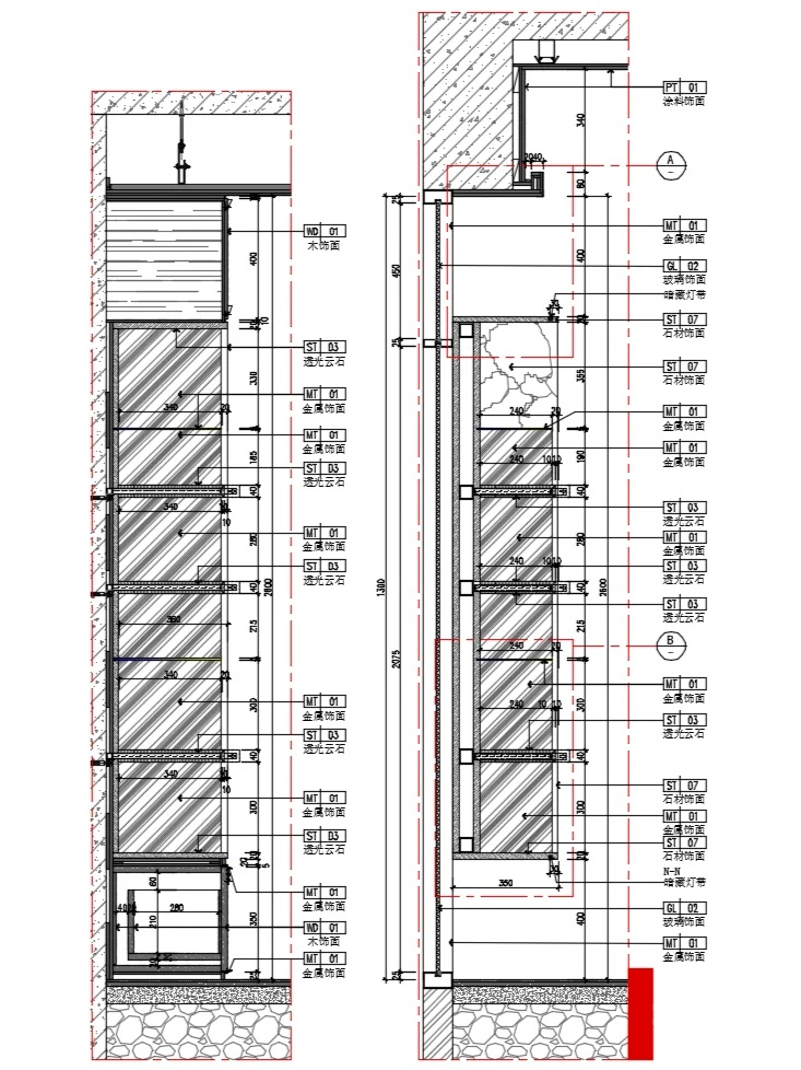
    #标准施工#

    透光云石背景墙节点        

  • 小筑 / 设计师

    2023年05月22日 06:58:17

    + 关注
    #标准施工#

    首先,我们来说一下悬浮吊顶灯槽的尺度。一般来说,悬浮吊顶灯槽的宽度应该与房间的宽度相当,这样可以让整个房间看起来更加协调。
    接下来,我们来说一下悬浮吊顶灯槽的安装方式。首先,需要在天花板上打好吊顶的位置,然后根据吊顶的尺寸来制作灯槽。制作好灯槽后,需要将灯槽固定在吊顶上,然后再安装灯具即可。
    最后,我们来看一下悬浮吊顶灯槽的效果图。通过悬浮吊顶灯槽的设计,可以让整个房间看起来更加高大上,同时也可以起到一定的装饰作用。而且,悬浮吊顶灯槽还可以隐藏灯具的线路,让整个房间看起来更加整洁。        

  • 小筑 / 设计师

    2023年05月21日 21:38:20

    + 关注
    #标准施工#

    床头软包节点                

  • 筑先生 / 客服

    2023年05月20日 11:55:58

    + 关注
    #标准施工# 楼梯节点

  • 小筑 / 设计师

    2023年05月20日 09:31:30

    + 关注
    #标准施工#

    木地板与地砖收口        

  • 小筑 / 设计师

    2023年05月20日 09:04:59

    + 关注
    #标准施工#

    五种常用线型灯        

  • 小筑 / 设计师

    2023年05月20日 09:02:23

    + 关注
    #标准施工#

    六款双眼皮吊顶(带尺寸)        

发布话题

公开