首页
设计圈
案例美图
装修案例
灵感美图
头条资讯
设计智造
找设计
找工长
看工地
服务
观点
提交设计需求
注册
登录
记住密码
找回密码
登录
还没有易住账号?
点击注册
使用第三方账号登录
获取验证码
我已阅读并同意
注册协议
注册
已有易住账号?
点击登录
当前位置:
首页
>
户型图分析
当前话题
更多话题
发布话题
#标准施工#
阅读 142283
|
粉丝 142283
小筑
/ 设计师
2023年06月05日 14:49:02
+ 关注
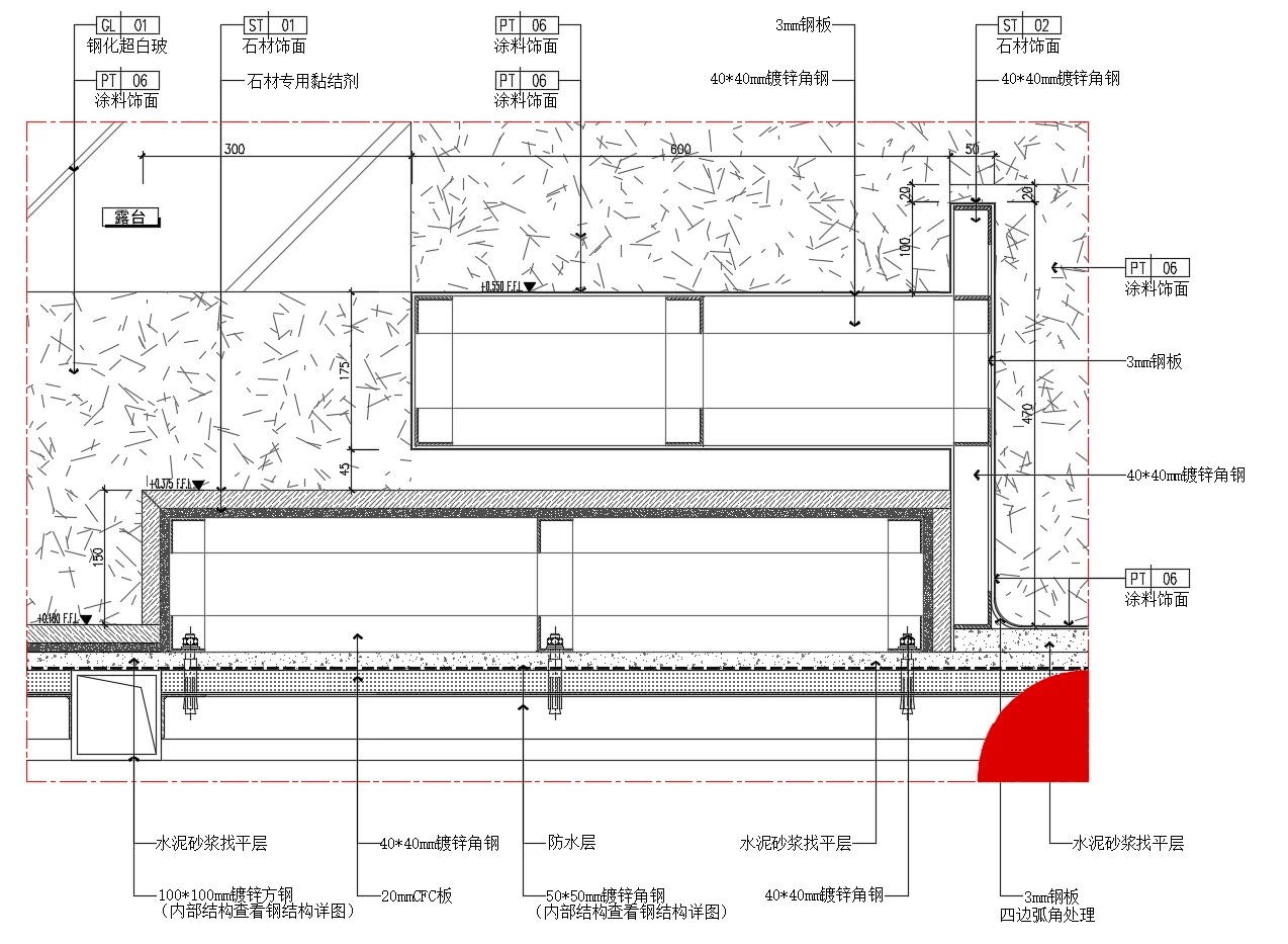
#标准施工#
石材术语(2)
0
0
0
发表
小筑
/ 设计师
2023年06月05日 14:48:05
+ 关注
#标准施工#
石材术语(3)
0
0
0
发表
小筑
/ 设计师
2023年06月04日 22:44:42
+ 关注
#标准施工#
极简地漏节点
0
0
0
发表
小筑
/ 设计师
2023年06月04日 14:49:11
+ 关注
#标准施工#
极简风口
0
0
0
发表
小筑
/ 设计师
2023年06月03日 09:08:32
+ 关注
#标准施工#
地台与踏步
0
0
0
发表
超哥
/ 设计师
2023年06月03日 09:02:39
+ 关注
#标准施工#
清凉周末
0
0
0
发表
小筑
/ 设计师
2023年06月02日 06:54:18
+ 关注
#标准施工#
庭院节点
0
0
0
发表
筑先生
/ 客服
2023年06月01日 06:58:22
+ 关注
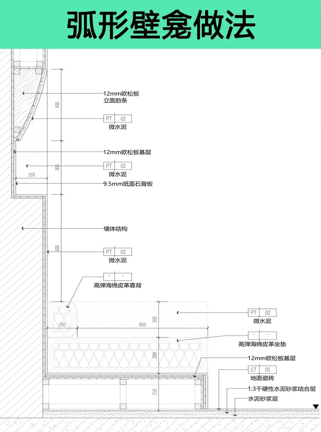
#标准施工#
弧形壁龛做法
0
0
0
发表
1...
<<
139
140
141
142
143
144
145
146
>>
254
玩转π币
过来人的装修经验
达人List
过来人的装修经验
直播达人
直播新人
小筑
2266
1578850
2303
毛均峰
1040
77413
1112
丽旻
640
26819
662
猪猪侠
459
21060
466
敏颜
440
21575
463
夏毅
435
27264
473
饶阳
678
55946
691
敏颜
440
21575
463
乌拉西
306
19050
315
杨梅酱
266
16727
272
Jason
235
18346
262
Bobo
207
27198
256
精选话题
#办公智造#
#标准施工#
#醉美庭院#
#餐饮美食#
#品牌全案#
#易筑展陈#
#易住美宅#
#商业空间#
发布话题
公开
请选择话题类型
办公智造
标准施工
醉美庭院
餐饮美食
品牌全案
易筑展陈
易住美宅
商业空间
确认发布